← Back to Lancaster City Council

Status

Decided New housing
Received
12 Nov 2024
New dwellings
1

Summary

Erection of a single dwelling with landscaping, access, parking and pond creation.

Full Proposal

Erection of a dwelling with associated landscaping, access, parking and creation of pond

Documents

Application form
Application Forms (p)
Not archived · Council Link
Application form
Application Forms (p)
Not archived · Council Link
Arboricultural impact assessment
Supporting Information (p)
Not archived · Council Link
Biodiversity condition assessments (pdf)
Supporting Information (p)
Not archived · Council Link
Biodiversity metric (pdf)
Supporting Information (p)
Not archived · Council Link
consultee response - arboricultural officer
Consultee Response (p)
Not archived · Council Link
consultee response - county highways
Consultee Response (p)
Not archived · Council Link
Consultee response - parish
Consultee Response (p)
Not archived · Council Link
Consultee response - united utilities
Consultee Response (p)
Not archived · Council Link
County highways response
Consultee Response (p)
Not archived · Council Link
Decision notice
Decision Notices (p)
Not archived · Council Link
Design & access statement
Supporting Information (p)
Not archived · Council Link
Design and access statement
Design and Access Statements (p)
Not archived · Council Link
Ecological appraisal
Supporting Information (p)
Not archived · Council Link
Ecological appraisal (inc. bng assessment)
Supporting Information (p)
Not archived · Council Link
Existing levels
Plans (p)
Not archived · Council Link
Existing levels
Plans (p)
Not archived · Council Link
Plans (p)
Archived · Council Link
Plans (p)
Archived · Council Link
Existing tree plan
Plans (p)
Not archived · Council Link
Heritage statement
Supporting Information (p)
Not archived · Council Link
Heritage statement
Supporting Information (p)
Not archived · Council Link
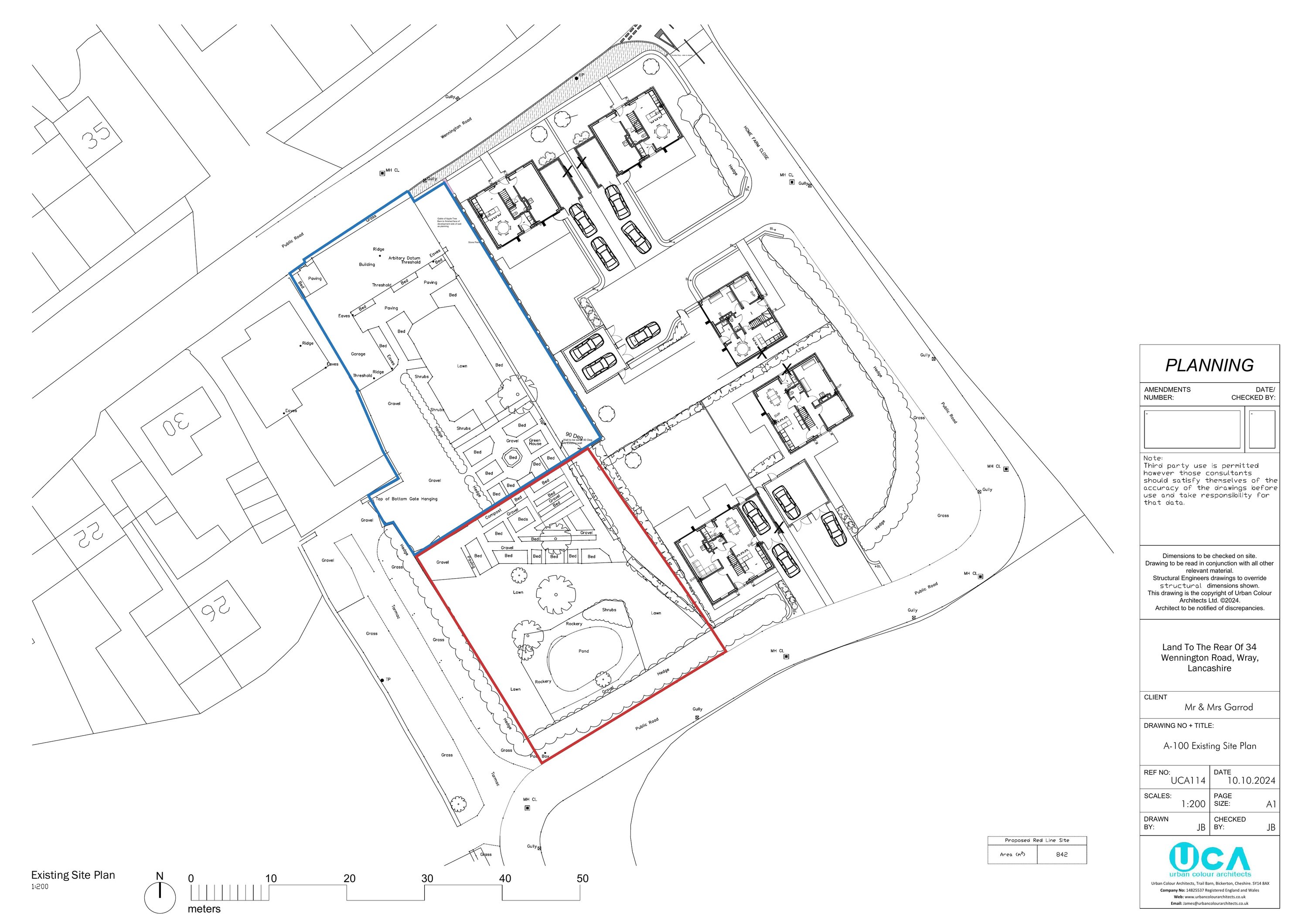
Location plan
Site Location Plans (p)
Not archived · Council Link
Officer report
Officer Report (p)
Not archived · Council Link
Proposed elevations
Application Amendments (p)
Not archived · Council Link
Proposed elevations
Plans (p)
Not archived · Council Link
Proposed elevations
Plans - Superseded (p)
Not archived · Council Link
Proposed elevations
Plans - Superseded (p)
Not archived · Council Link
Plans - Superseded (p)
Archived · Council Link
Plans - Superseded (p)
Archived · Council Link
Application Amendments (p)
Archived · Council Link
Plans (p)
Archived · Council Link
Proposed site and landscape plan
Plans (p)
Not archived · Council Link
Proposed site and landscape plan
Application Amendments (p)
Not archived · Council Link
Proposed site and landscape plan
Plans - Superseded (p)
Not archived · Council Link
Proposed site and landscape plan
Plans - Superseded (p)
Not archived · Council Link
Updated tree report/landscaping proposals
Supporting Information (p)
Not archived · Council Link

Take Action

Make your voice heard. Authorities need to hear from people who support new homes.

✉️ Write Email in Support View on Council Portal