← Back to Lancaster City Council
24/01405/FUL
Lancaster City Council · IDOX
Status
Decided
New housing
Received
19 Dec 2024
New dwellings
1
Summary
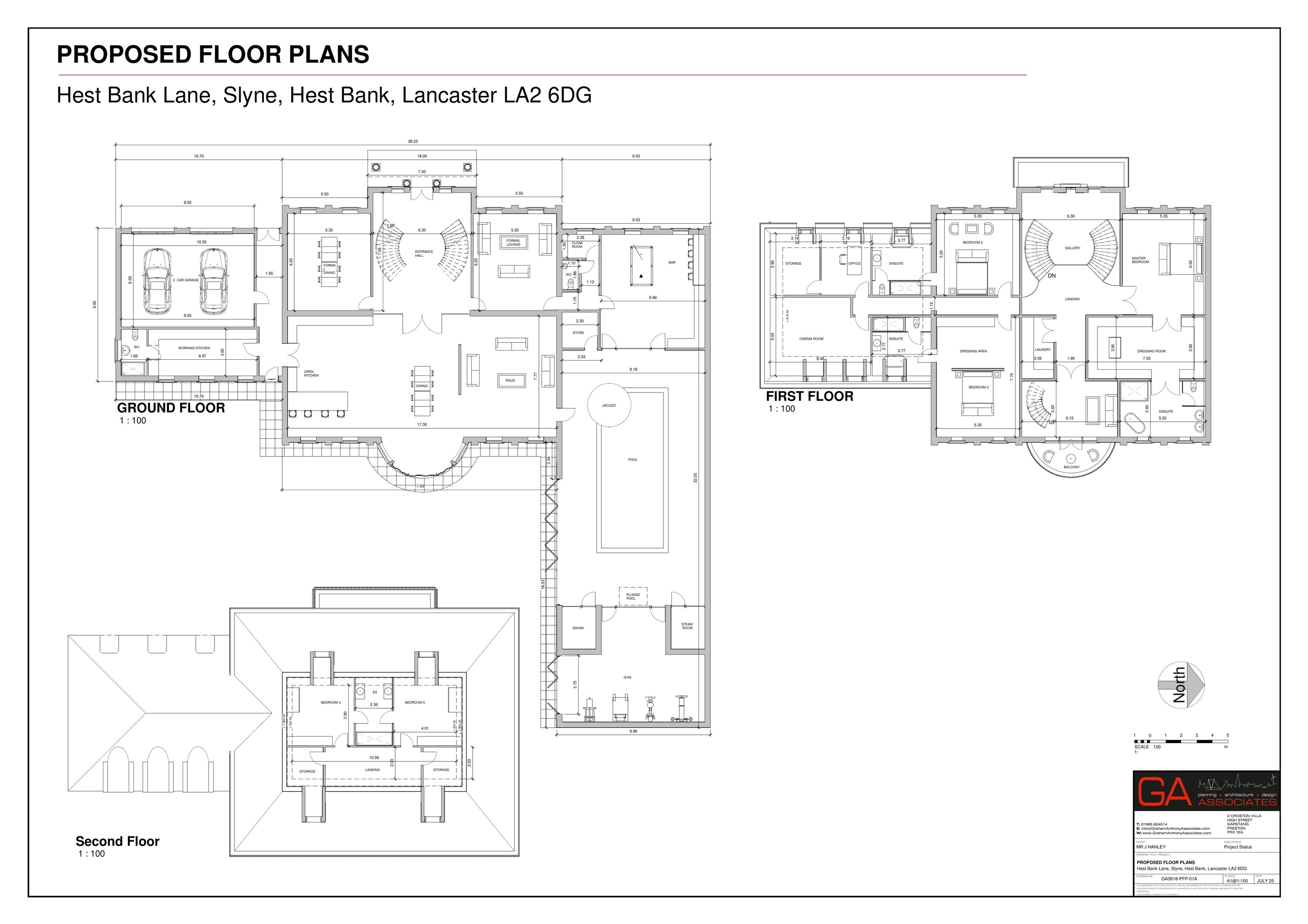
Demolition of existing dwelling and erection of replacement self-build dwelling.
Full Proposal
Demolition of existing dwelling and erection of new self-build dwelling
Documents
Aia appendix 1 ? tree survey data table 05/06/2025
Application Amendments (p)
Not archived
· Council Link
Arboricultural implication assessment 05/06/2025
Application Amendments (p)
Not archived
· Council Link
Take Action
Make your voice heard. Authorities need to hear from people who support new homes.