← Back to Lancaster City Council

Status

Decided Change of use
Received
27 Jan 2025
New dwellings
2

Summary

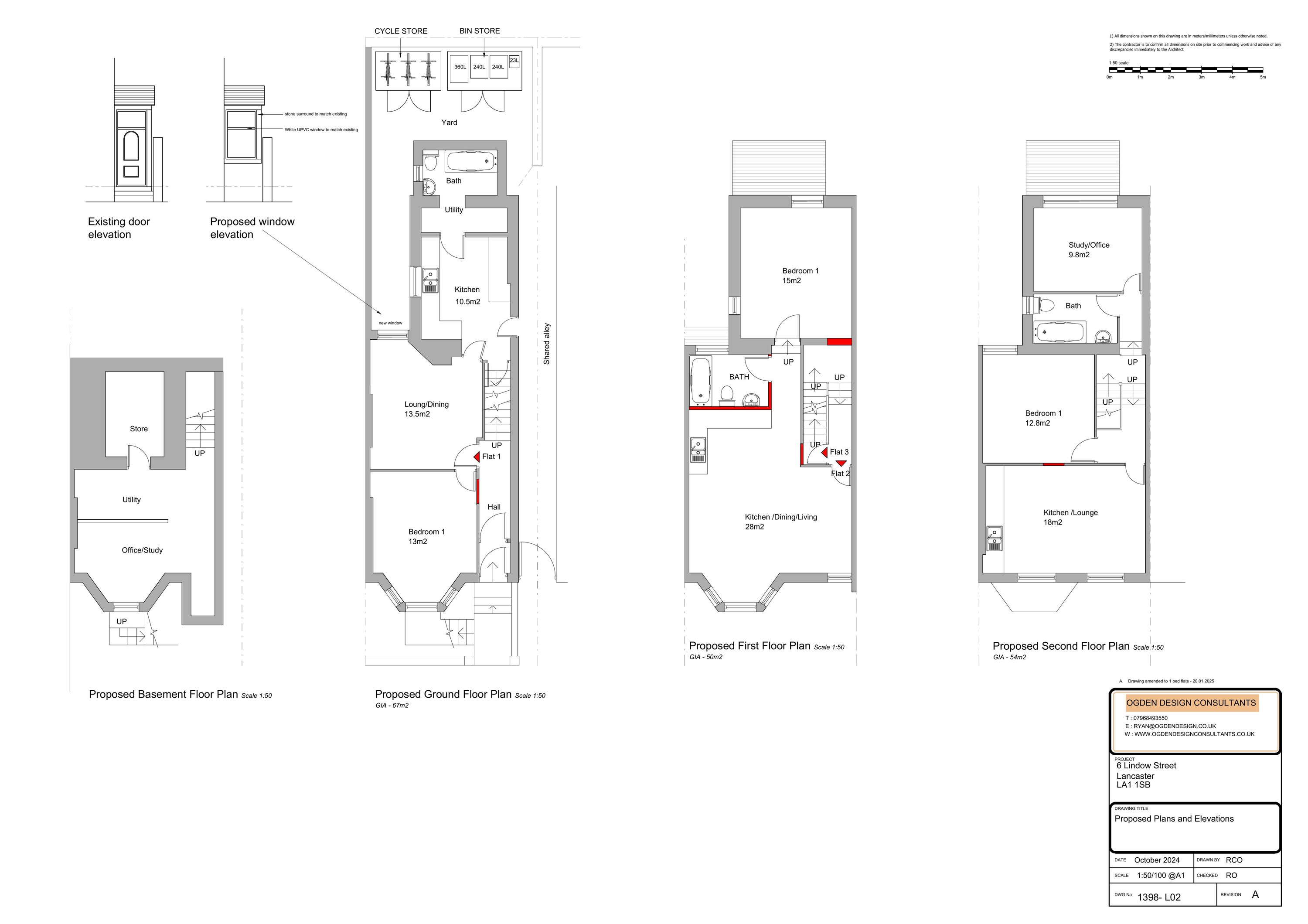
Change of use of dwelling to three apartments with rear window alteration.

Full Proposal

Change of use from a dwelling to 3 apartments, removal of door and installation of replacement window to the rear elevation

Documents

Application form
Application Forms (p)
Not archived · Council Link
Consultee response - county highways
Consultee Response (p)
Not archived · Council Link
Consultee response - natural england
Consultee Response (p)
Not archived · Council Link
Decision notice
Decision Notices (p)
Not archived · Council Link
Delegated report
Officer Report (p)
Not archived · Council Link
Design access & heritage statement
Supporting Information (p)
Not archived · Council Link
Existing floor plans
Plans (p)
Not archived · Council Link
Habitats regulations assessment and appropriate assessment
Application Amendments (p)
Not archived · Council Link
Plans (p)
Archived · Council Link
Site/location plans
Plans (p)
Not archived · Council Link

Take Action

Make your voice heard. Authorities need to hear from people who support new homes.

✉️ Write Email in Support View on Council Portal