← Back to Lancaster City Council

Status

Awaiting decision New housing
Received
07 May 2025
New dwellings
8

Summary

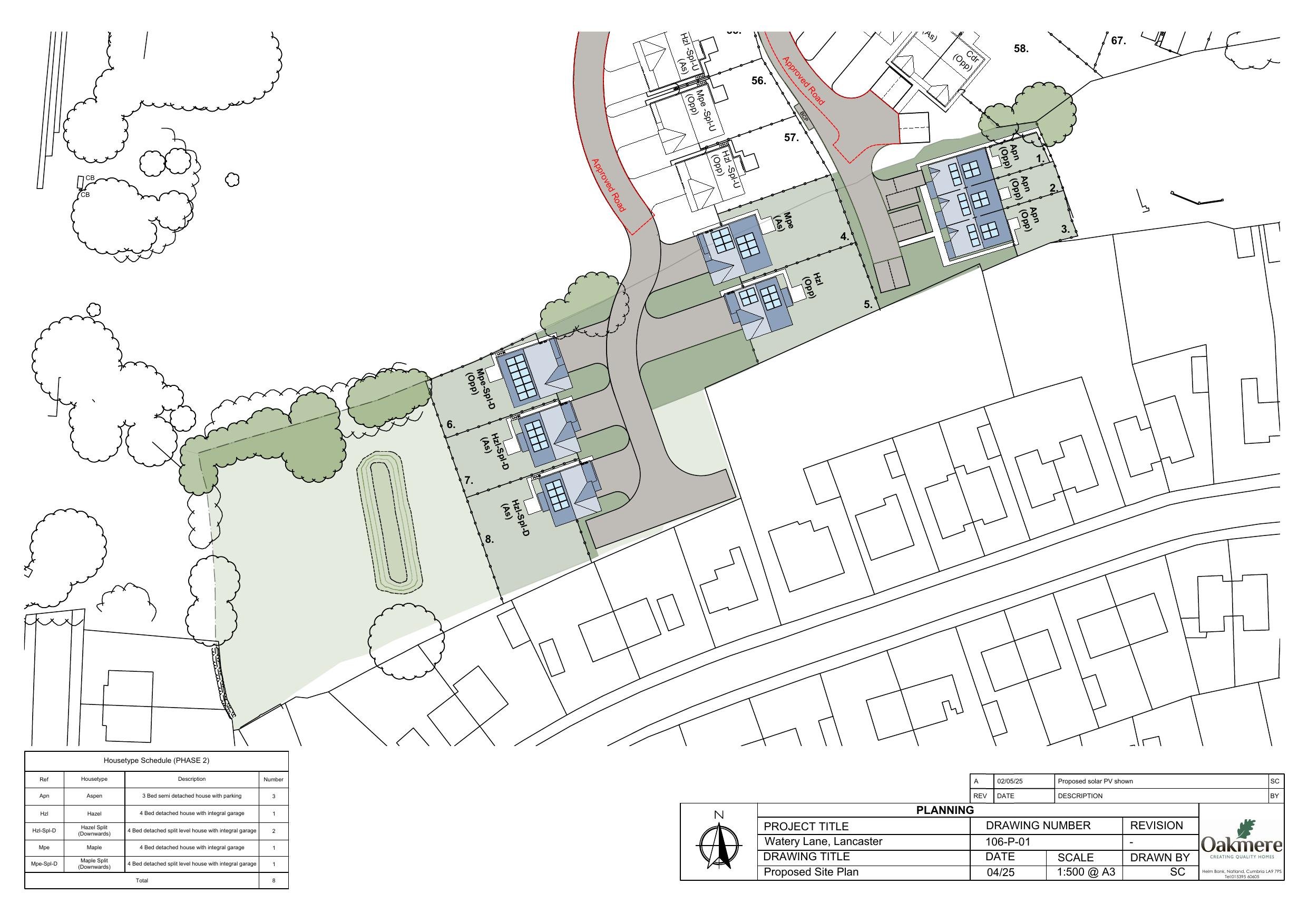
Erection of eight dwellings with associated access.

Full Proposal

Erection of 8 dwellings with associated access

Documents

Affordable housing statement
Supporting Information (p)
Not archived · Council Link
Air quality assessment
Supporting Information (p)
Not archived · Council Link
Application form
Application Forms (p)
Not archived · Council Link
Aspen house type - plans and elevations
Plans (p)
Not archived · Council Link
Biodiversity net gain
Application Amendments (p)
Not archived · Council Link
Biodiversity net gain
Application Amendments (p)
Not archived · Council Link
Biodiversity net gain
Application Amendments (p)
Not archived · Council Link
Biodiversity net gain metric
Application Amendments (p)
Not archived · Council Link
Biodiversity net gain metric
Application Amendments (p)
Not archived · Council Link
Biodiversity net gain statement
Supporting Information (p)
Not archived · Council Link
consultee response - bidiversity officer
Consultee Response (p)
Not archived · Council Link
consultee response - biodiversity officer
Consultee Response (p)
Not archived · Council Link
consultee response - bng officer
Consultee Response (p)
Not archived · Council Link
consultee response - county highways
Consultee Response (p)
Not archived · Council Link
consultee response - county highways
Consultee Response (p)
Not archived · Council Link
consultee response - county highways
Consultee Response (p)
Not archived · Council Link
consultee response - county highways
Consultee Response (p)
Not archived · Council Link
consultee response - fire safety officer
Consultee Response (p)
Not archived · Council Link
consultee response - natural england
Consultee Response (p)
Not archived · Council Link
consultee response - natural england
Consultee Response (p)
Not archived · Council Link
consultee response - natural england
Consultee Response (p)
Not archived · Council Link
consultee response - united utilities
Consultee Response (p)
Not archived · Council Link
Cover letter
Application Amendments (p)
Not archived · Council Link
Drainage details
Plans (p)
Not archived · Council Link
Drainage layout
Plans (p)
Not archived · Council Link
Drainage longitudinals (1)
Plans (p)
Not archived · Council Link
Drainage longitudinals (2)
Plans (p)
Not archived · Council Link
Ecological appraisal
Supporting Information (p)
Not archived · Council Link
ecological appraisal
Application Amendments (p)
Not archived · Council Link
Ev charger specification
Supporting Information (p)
Not archived · Council Link
Exceedance route
Plans (p)
Not archived · Council Link
External levels
Plans (p)
Not archived · Council Link
Flood risk assessment and drainage strategy p01
Supporting Information (p)
Not archived · Council Link
Hazel spilt down house type - plans and elevations
Plans (p)
Not archived · Council Link
Highway details
Plans (p)
Not archived · Council Link
Highway levels
Plans (p)
Not archived · Council Link
Highway longitudinals
Plans (p)
Not archived · Council Link
Homeowner pack
Supporting Information (p)
Not archived · Council Link
Impermeable areas plan
Plans (p)
Not archived · Council Link
Manhole schedules
Plans (p)
Not archived · Council Link
Maple house type - plans and elevations
Plans (p)
Not archived · Council Link
Maple split down house type - plans and elevations
Plans (p)
Not archived · Council Link
Noise assessment
Supporting Information (p)
Not archived · Council Link
Opposite hazel house type - plans and elevations
Plans (p)
Not archived · Council Link
Outline landscape proposals
Application Amendments (p)
Not archived · Council Link
Outline landscape proposals
Plans (p)
Not archived · Council Link
Outline landscape proposals
Application Amendments (p)
Not archived · Council Link
Phase 1 ? preliminary risk assessment
Supporting Information (p)
Not archived · Council Link
Phase 2 amenities layout
Application Amendments (p)
Not archived · Council Link
Planning response from gadsen consulting
Supporting Information (p)
Not archived · Council Link
Planning, design and access statement
Supporting Information (p)
Not archived · Council Link
Proposed amenities plan
Plans (p)
Not archived · Council Link
Proposed boundary treatments plan
Plans (p)
Not archived · Council Link
Proposed material finishes plan
Plans (p)
Not archived · Council Link
Application Amendments (p)
Archived · Council Link
Plans (p)
Archived · Council Link
Proposed site sections
Plans (p)
Not archived · Council Link
Proposed site sections 02
Application Amendments (p)
Not archived · Council Link
Proposed streetscene
Plans (p)
Not archived · Council Link
Proposed surface treatment plan
Plans (p)
Not archived · Council Link
Shadow habitat regulations assessment
Application Amendments (p)
Not archived · Council Link
Site layout
Application Amendments (p)
Not archived · Council Link
Site Location Plans (p)
Archived · Council Link
Solar specification
Supporting Information (p)
Not archived · Council Link
Statutory biodiversity metric watery lane r2
Application Amendments (p)
Not archived · Council Link
Survey of existing trees
Plans (p)
Not archived · Council Link
Sustainable design statement
Supporting Information (p)
Not archived · Council Link
Topographical survey -sheet 1
Plans (p)
Not archived · Council Link
Topographical survey -sheet 2
Plans (p)
Not archived · Council Link
Topographical survey -sheet 3
Plans (p)
Not archived · Council Link
Tree survey report rev c
Supporting Information (p)
Not archived · Council Link
Vehicle tracking plan
Application Amendments (p)
Not archived · Council Link

Take Action

Make your voice heard. Authorities need to hear from people who support new homes.

✉️ Write Email in Support View on Council Portal