← Back to Lancaster City Council

Status

Decided New housing
Received
03 Jun 2025
New dwellings
1

Summary

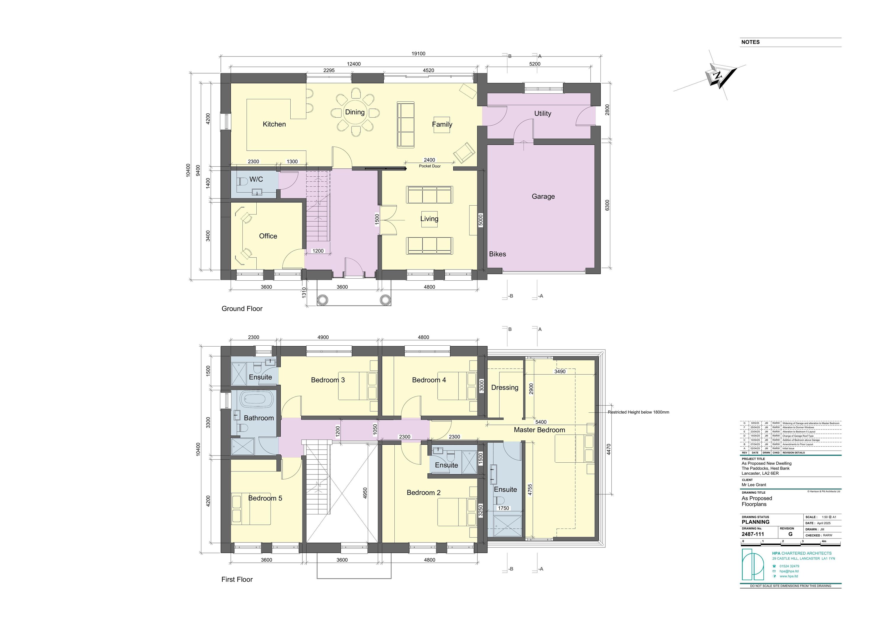
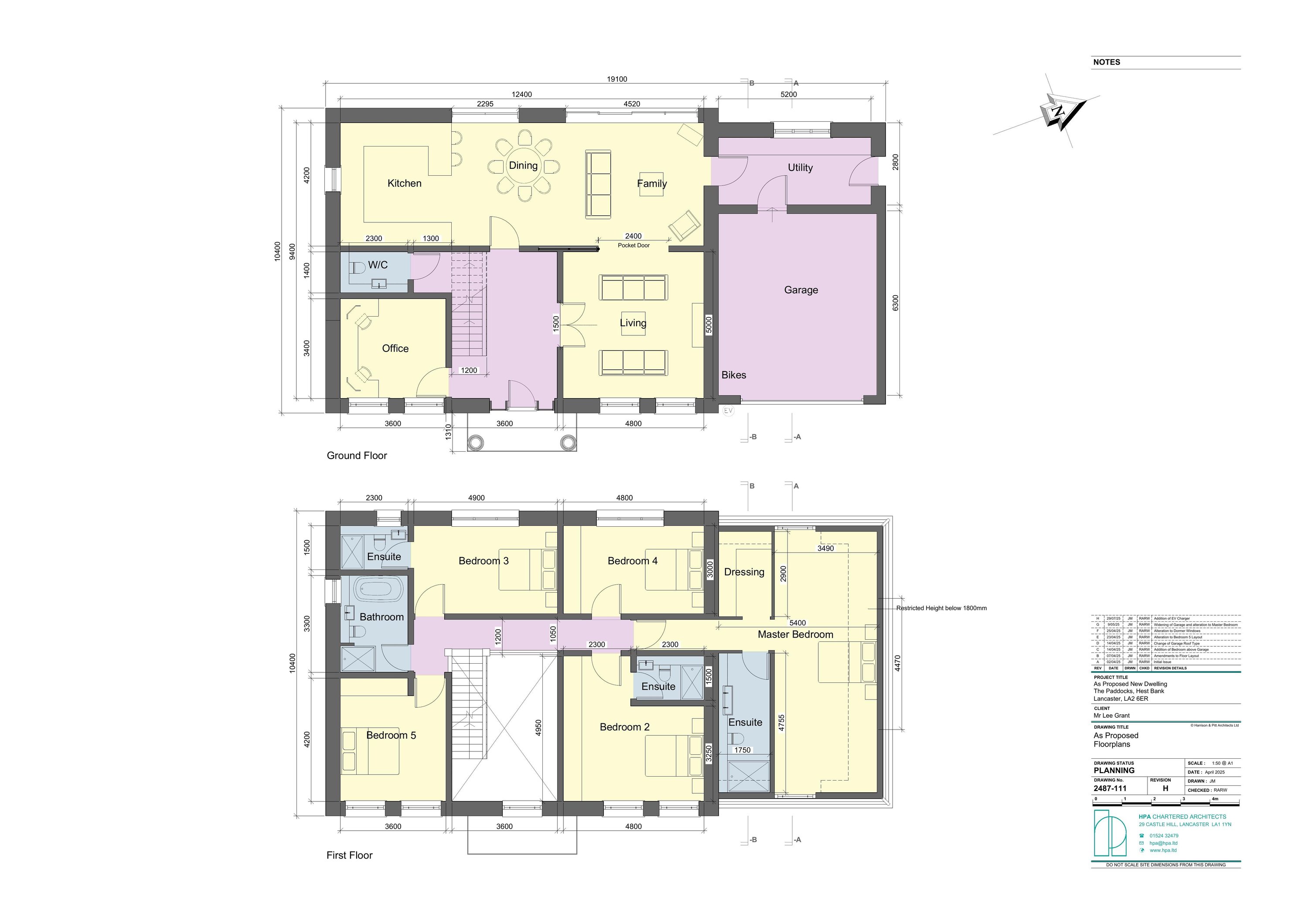
Erection of one dwelling.

Full Proposal

Erection of a dwelling

Documents

(ss) proposed elevations and sections
Plans - Superseded (p)
Not archived · Council Link
Plans - Superseded (p)
Archived · Council Link
(ss)proposed elevations
Plans - Superseded (p)
Not archived · Council Link
Plans - Superseded (p)
Archived · Council Link
Application form
Application Forms (p)
Not archived · Council Link
As proposed elevations
Plans - Superseded (p)
Not archived · Council Link
As proposed elevations and sections
Plans - Superseded (p)
Not archived · Council Link
Plans - Superseded (p)
Archived · Council Link
Application Amendments (p)
Archived · Council Link
Application Amendments (p)
Archived · Council Link
Bng metric (excel)
Supporting Information (p)
Not archived · Council Link
consultee response - biodiversity officer
Consultee Response (p)
Not archived · Council Link
consultee response - cadent gas
Consultee Response (p)
Not archived · Council Link
consultee response - canal and river trust
Consultee Response (p)
Not archived · Council Link
consultee response - county highways
Consultee Response (p)
Not archived · Council Link
consultee response - engineering team
Consultee Response (p)
Not archived · Council Link
consultee response - engineers
Consultee Response (p)
Not archived · Council Link
consultee response - natural england
Consultee Response (p)
Not archived · Council Link
consultee response - natural england
Consultee Response (p)
Not archived · Council Link
Consultee response - parish
Consultee Response (p)
Not archived · Council Link
consultee response - parish council
Consultee Response (p)
Not archived · Council Link
consultee response - united utilities
Consultee Response (p)
Not archived · Council Link
consultee response - united utilities
Consultee Response (p)
Not archived · Council Link
consultee response - united utilities
Consultee Response (p)
Not archived · Council Link
Copy of parish council response to 20/00160/dis 14/01/2021
Supporting Information (p)
Not archived · Council Link
Decision notice
Decision Notices (p)
Not archived · Council Link
design and access statement
Design and Access Statements (p)
Not archived · Council Link
Design and access statement
Design and Access Statements (p)
Not archived · Council Link
Design and access statement rev a
Design and Access Statements - Superseded (p)
Not archived · Council Link
Drainage assessment
Supporting Information (p)
Not archived · Council Link
Drainage assessment
Supporting Information (p)
Not archived · Council Link
Drainage report plots 1 and 2
Supporting Information (p)
Not archived · Council Link
Ecological survey and assessment
Supporting Information (p)
Not archived · Council Link
engineers response
Supporting Information (p)
Not archived · Council Link
existing drainage layout
Plans (p)
Not archived · Council Link
Existing drainage layout
Plans (p)
Not archived · Council Link
Plans (p)
Archived · Council Link
Gsa flood risk assessment and drainage strategy dated 22/7/21 (approved in 20/00
Supporting Information (p)
Not archived · Council Link
Gsa management and maintenance strategy 22/7/21 (approved in 20/00160/dis)
Supporting Information (p)
Not archived · Council Link
Letter from agent - response to uu and parish council comments
Supporting Information (p)
Not archived · Council Link
Location plan
Site Location Plans (p)
Not archived · Council Link
Officer report
Officer Report (p)
Not archived · Council Link
Photo showing crate attenuation system being installed on the paddocks
Supporting Information (p)
Not archived · Council Link
Preliminary assessment of biodiversity net gain
Supporting Information (p)
Not archived · Council Link
Proposed drainage layout
Plans (p)
Not archived · Council Link
Proposed drainage report
Supporting Information (p)
Not archived · Council Link
Proposed elevations with dormer
Application Amendments (p)
Not archived · Council Link
Application Amendments (p)
Archived · Council Link
Plans (p)
Archived · Council Link
Plans (p)
Archived · Council Link
Plans - Superseded (p)
Archived · Council Link
Propsoed elevations and section with dormer
Application Amendments (p)
Not archived · Council Link
response to consultees
Supporting Information (p)
Not archived · Council Link
Root and hedge protection drawing
Application Amendments (p)
Not archived · Council Link
Root and hedge protection drawing
Application Amendments (p)
Not archived · Council Link
Superseded - proposed drainage layout
Plans - Superseded (p)
Not archived · Council Link
Surface water management & maintenance plan
Application Amendments (p)
Not archived · Council Link
tree root protection zones
Plans (p)
Not archived · Council Link
united utilities letter with plans
Supporting Information (p)
Not archived · Council Link

Take Action

Make your voice heard. Authorities need to hear from people who support new homes.

✉️ Write Email in Support View on Council Portal