← Back to Lancaster City Council
Status
Decided
Demolition
Full Proposal
Part retrospective application for the demolition of existing dwelling and erection of a replacement dwelling with associated works
Documents
Air / water heat pump technical data
Application Amendments (p)
Applicationformredacted
Application Forms (p)
Bat survey
Supporting Information (p)
Concise flood risk assessment
Application Amendments (p)
construction method statement
Supporting Information (p)
Consultee response - arnsil
Consultee Response (p)
consultee response - county highways
Consultee Response (p)
Consultee response - county highways
Consultee Response (p)
Consultee response - parish
Consultee Response (p)
Consultee response - united utilities
Consultee Response (p)
Decision notice
Decision Notices (p)
Design and access statement
Design and Access Statements (p)
Drainage survey
Application Amendments (p)
Energy statement
Application Amendments (p)
Energy statement
Application Amendments (p)
Existing elevations
Plans (p)
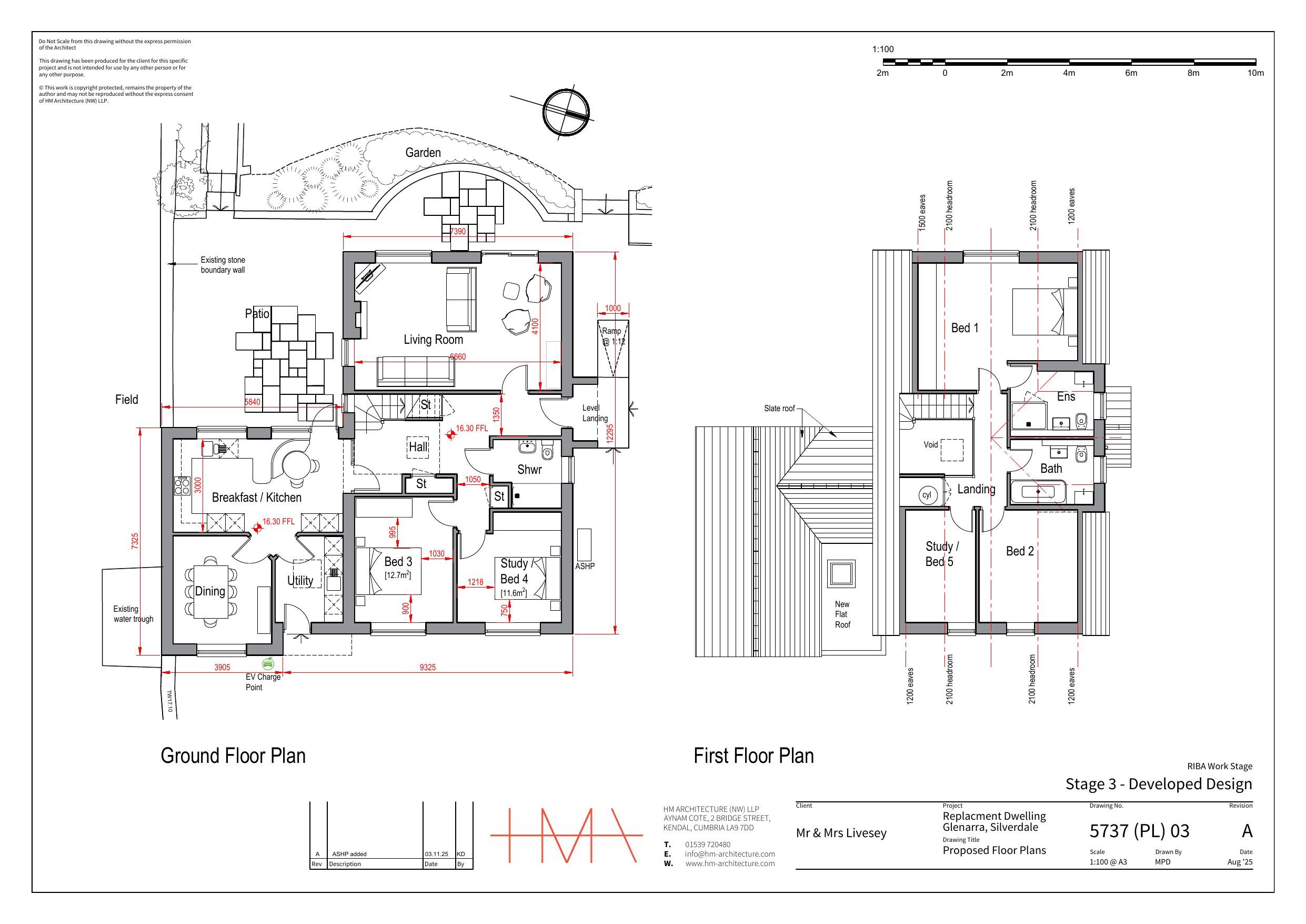
Existing floor plan
Plans (p)
J1697 soakaway design spreadsheet
Application Amendments (p)
Location plan
Site Location Plans (p)
officer report
Officer Report (p)
Parish response
Consultee Response (p)
Percolation tests
Application Amendments (p)
Proposed elevations
Plans (p)
Proposed elevations
Application Amendments (p)
Proposed hard and soft landscaping
Application Amendments (p)
Application Amendments (p)
Proposed roof plan
Plans (p)
Application Amendments (p)
Application Amendments (p)
Ravendale slate sheet
Application Amendments (p)
Sewage treatment plant specification
Application Amendments (p)
Take Action
Make your voice heard. Authorities need to hear from people who support new homes.