← Back to Lancaster City Council

Status

Decided Change of use
Received
14 Oct 2025
New dwellings
2

Summary

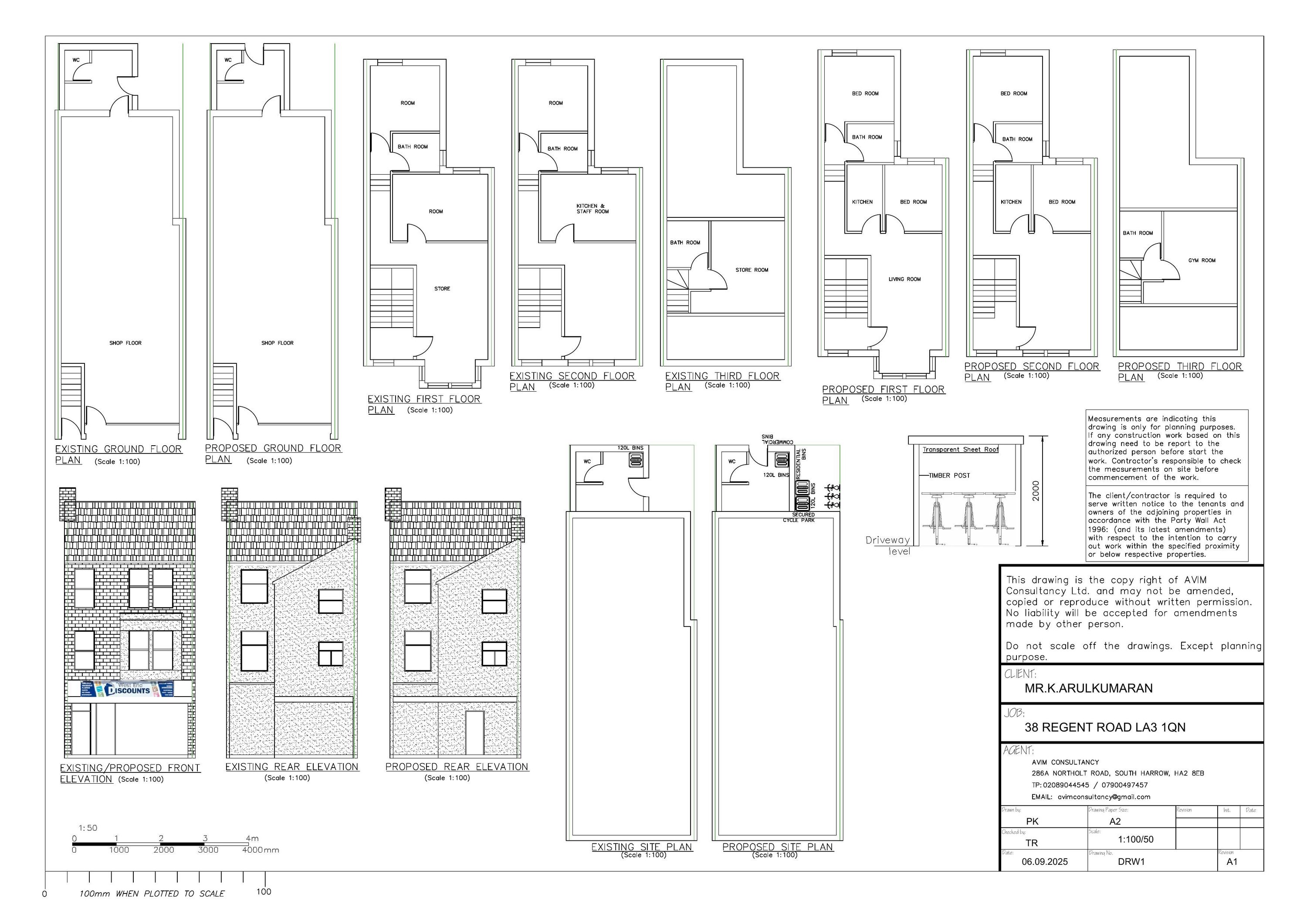
Convert first and second floors of shop into two flats with new rear doorway.

Full Proposal

Change of use of first and second floors of existing shop into 2 flats and insertion of a new doorway to the rear

Documents

Application form
Application Forms (p)
Not archived · Council Link
Consultation response - highways
Consultee Response (p)
Not archived · Council Link
Decision notice
Decision Notices (p)
Not archived · Council Link
Delegated report
Officer Report (p)
Not archived · Council Link
Design access and heritage statement
Supporting Information (p)
Not archived · Council Link
Application Amendments (p)
Archived · Council Link
Application Amendments (p)
Archived · Council Link
Flood risk assessment
Supporting Information (p)
Not archived · Council Link
Noise report
Supporting Information (p)
Not archived · Council Link
Site Location Plans (p)
Archived · Council Link

Take Action

Make your voice heard. Authorities need to hear from people who support new homes.

✉️ Write Email in Support View on Council Portal