← Back to Leeds City Council

Status

Current Change of use
Received
n/a
New dwellings
5

Summary

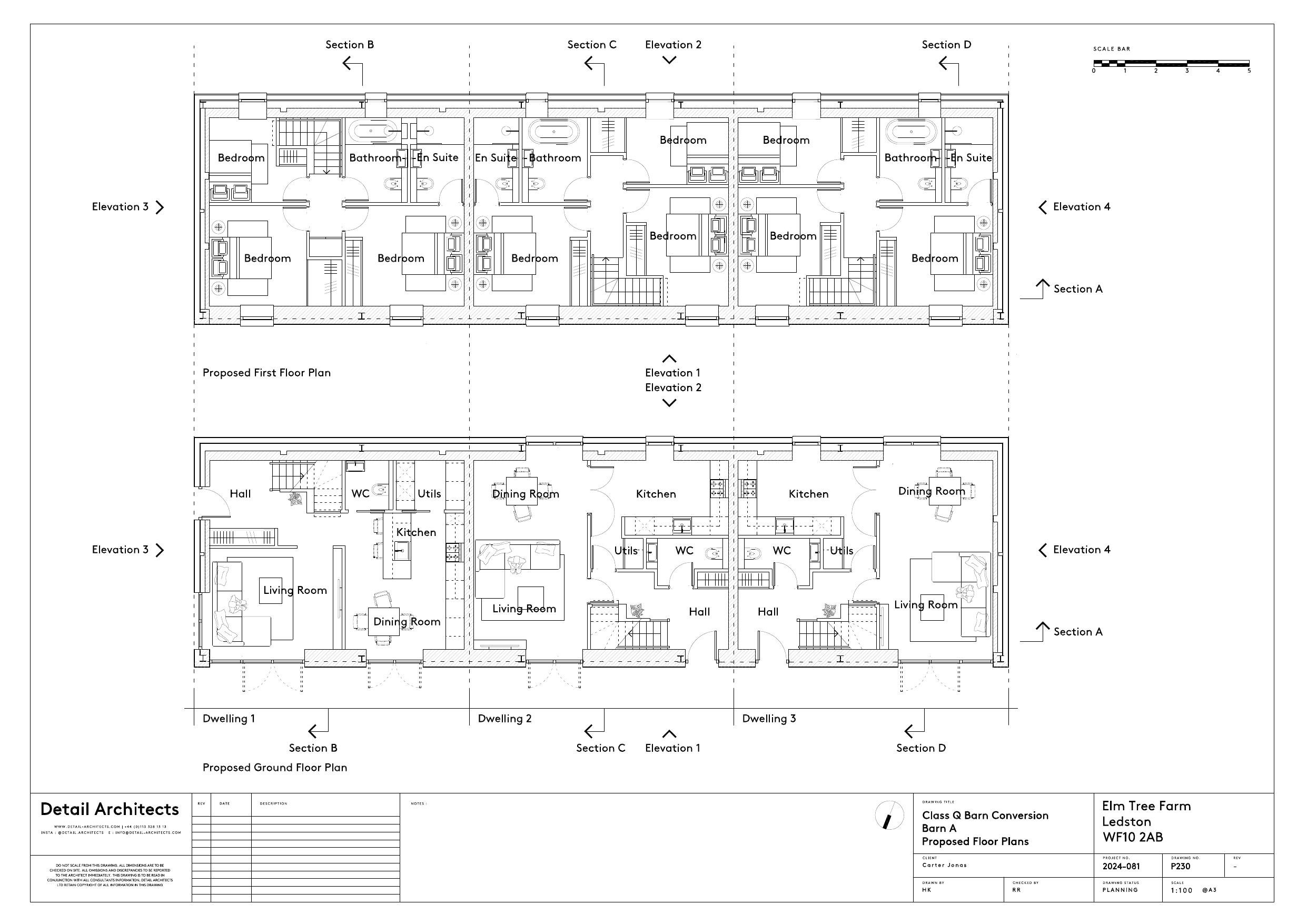
Conversion of two agricultural buildings into five dwellings with associated building works.

Full Proposal

Determination for Change of Use of two Agricultural Buildings to five Dwellinghouses (Class C3), including building operations necessary for the conversion

Documents

- CONTAMINATED LAND TEAM
Consultee
Not archived · Council Link
- FLOOD RISK MANAGEMENT
Consultee
Not archived · Council Link
- FLOOD RISK MANAGEMENT
Consultee
Not archived · Council Link
- HIGHWAYS TEAM
Consultee
Not archived · Council Link
- HIGHWAYS TEAM
Consultee
Not archived · Council Link
ADD. FLOW RATES
BackGround Papers
Not archived · Council Link
BARN A EXISTING ELEVATION 1 & 2
Drawing
Not archived · Council Link
BARN A EXISTING ELEVATIONS 3 & 4
Drawing
Not archived · Council Link
BARN A EXISTING GROUND FLOOR PLAN
Drawing
Not archived · Council Link
BARN A EXISTING SECTION A & B
Drawing
Not archived · Council Link
BARN A EXISTING SECTION C & D
Drawing
Not archived · Council Link
BARN A PROPOSED ELEVATION 1 & 2
Drawing
Not archived · Council Link
BARN A PROPOSED ELEVATION 1 & 2
Drawing
Not archived · Council Link
BARN A PROPOSED ELEVATIONS 3 & 4
Drawing
Not archived · Council Link
BARN A PROPOSED SECTION A & B
Drawing
Not archived · Council Link
BARN A PROPOSED SECTION C & D
Drawing
Not archived · Council Link
BARN B EXISTING ELEVATIONS 1 & 3
Drawing
Not archived · Council Link
BARN B EXISTING ELEVATIONS 2 & 4
Drawing
Not archived · Council Link
BARN B EXISTING GROUND FLOOR PLAN
Drawing
Not archived · Council Link
BARN B EXISTING SECTION A & B
Drawing
Not archived · Council Link
BARN B EXISTING SECTION C
Drawing
Not archived · Council Link
BARN B PROPOSED ELEVATIONS 1 & 3
Drawing
Not archived · Council Link
BARN B PROPOSED ELEVATIONS 1 & 4
Drawing
Not archived · Council Link
BARN B PROPOSED ELEVATIONS 2 & 4
Drawing
Not archived · Council Link
BARN B PROPOSED SECTION A & B
Drawing
Not archived · Council Link
BARN B PROPOSED SECTION C
Drawing
Not archived · Council Link
BUILDING CONDITION REPORT
BackGround Papers
Not archived · Council Link
DRAINAGE STRATEGY
Superseded Background Papers
Not archived · Council Link
Drawing
Archived · Council Link
GREENFIELD RUNOFF RATE ESTIMATION FOR SITES
BackGround Papers
Not archived · Council Link
PERCOLATION REPORT
BackGround Papers
Not archived · Council Link
PLANNING APPLICATION FORM
Application Form
Not archived · Council Link
PRELIMINARY ECOLOGICAL APPRAISAL
BackGround Papers
Not archived · Council Link
PRIVATE SECTOR HOUSING
Consultee
Not archived · Council Link
REV. DRAINAGE STRATEGY
BackGround Papers
Not archived · Council Link
REV. SURFACE WATER DRAINAGE MAINTENANCE AND MANAGEMENT SCHEDULE
BackGround Papers
Not archived · Council Link
Drawing
Archived · Council Link
SURFACE WATER DRAINAGE MAINTENANCE AND MANAGEMENT SCHEDULE
Superseded Background Papers
Not archived · Council Link
TRANSPORT STATEMENT - BARN A
BackGround Papers
Not archived · Council Link
TRANSPORT STATEMENT - BARN B
BackGround Papers
Not archived · Council Link

Take Action

Make your voice heard. Authorities need to hear from people who support new homes.

✉️ Write Email in Support View on Council Portal