25/05908/FU
Leeds City Council · IDOX
Status
Decided
Change of use
Received
n/a
New dwellings
0
Summary
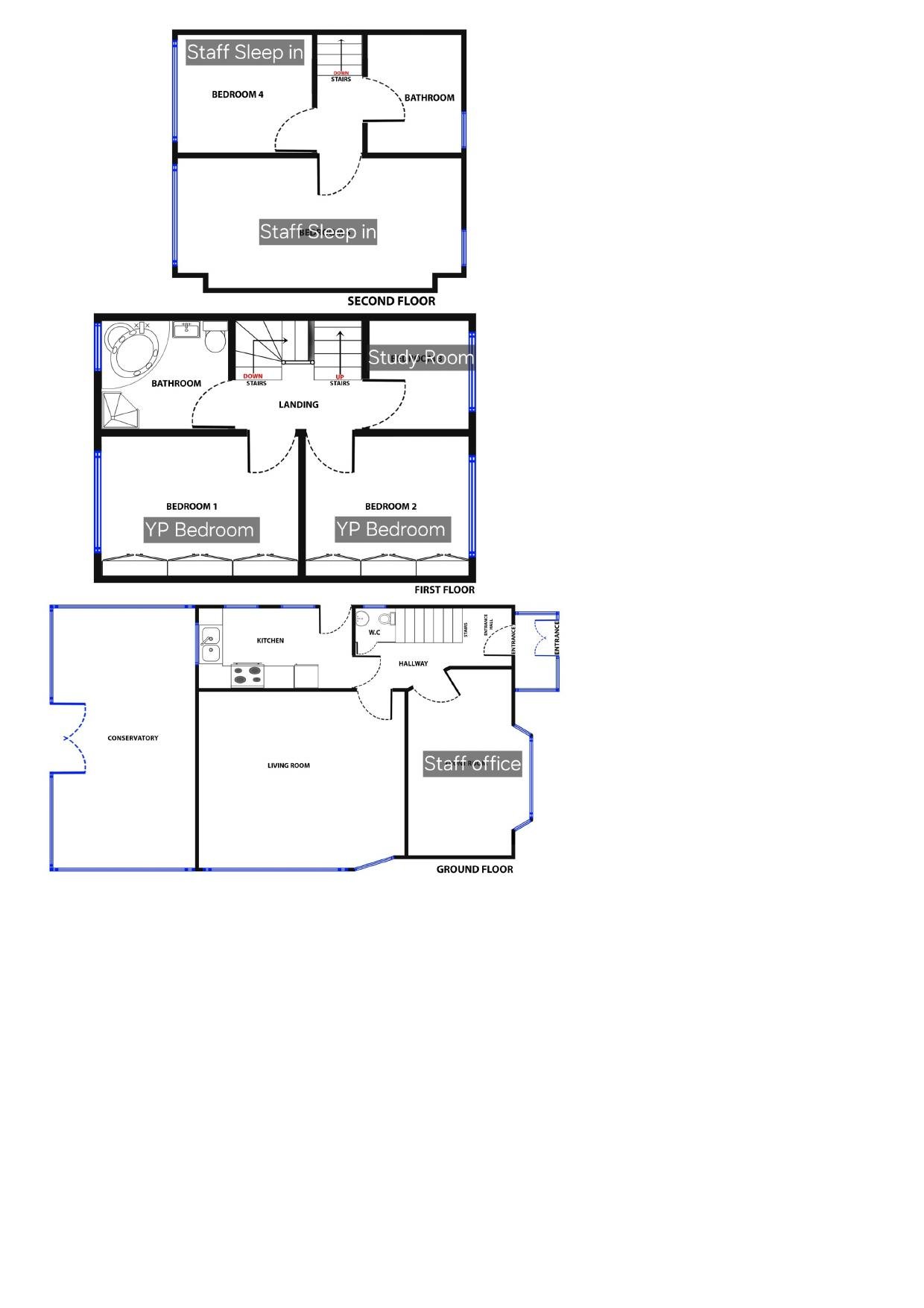
Change of use from C3 dwelling to C2 residential children's home.
Full Proposal
Change of use of C3 Residential dwelling to C2 Residential Children's Home
Documents
Take Action
Make your voice heard. Authorities need to hear from people who support new homes.