← Back to Leeds City Council

Status

Decided Change of use
Received
n/a
New dwellings
2

Summary

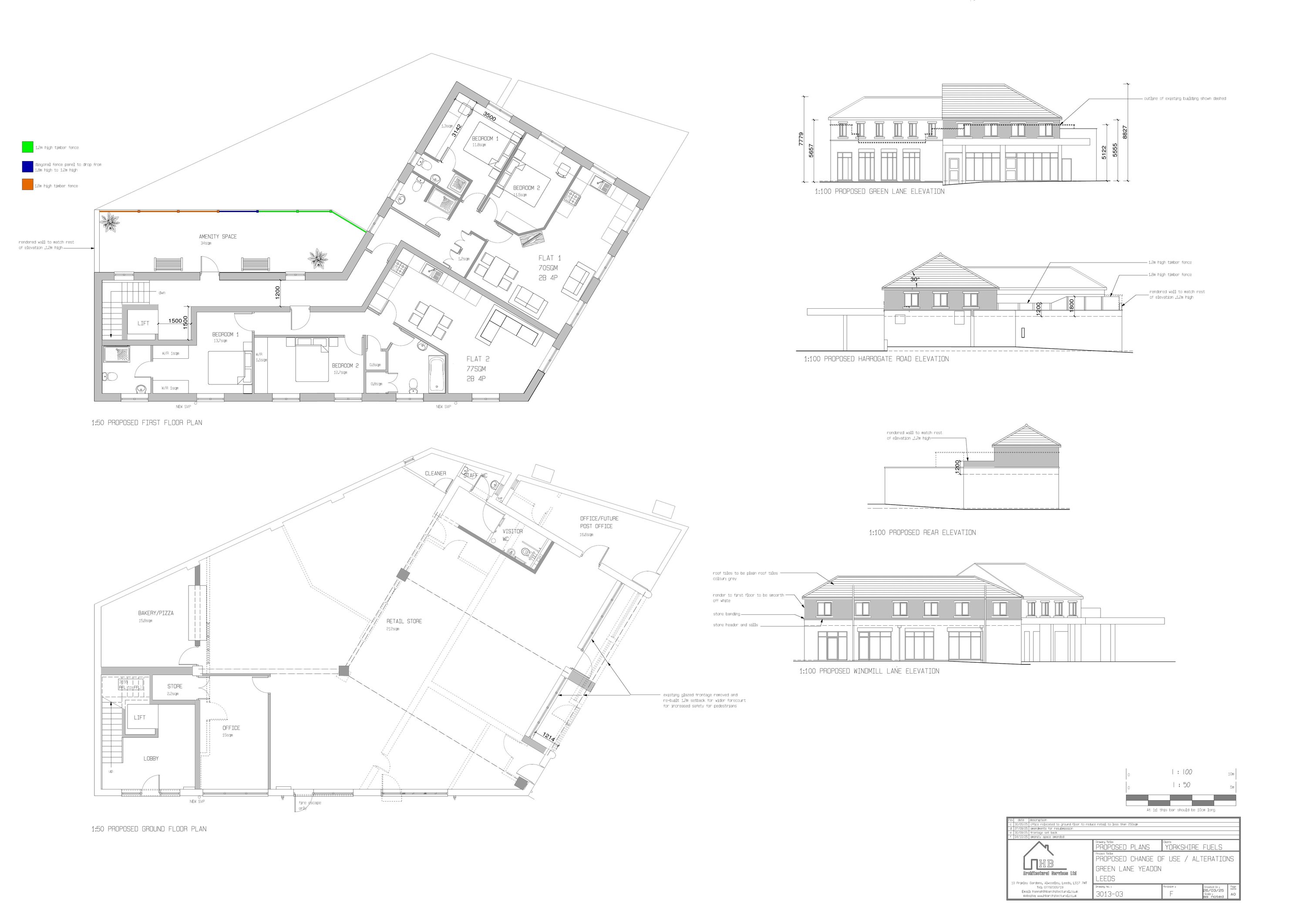
Change of use and alterations including first-floor extension to create two flats and enlarged retail unit.

Full Proposal

Change of use and alterations including a first floor extension to create two flats and new windows and doors to existing retail unit, offices and workshop to form an enlarged retail unit with associated bin and cycle storage and parking

Documents

- ACCESS OFFICER
Consultee
Not archived · Council Link
- CONTAMINATED LAND TEAM
Consultee
Not archived · Council Link
- ENVIRONMENT AND DESIGN GROUP ACOUSTICS
Consultee
Not archived · Council Link
- ENVIRONMENTAL STUDIES TRANSPORT STRATEGY TEAM
Consultee
Not archived · Council Link
- FLOOD RISK MANAGEMENT
Consultee
Not archived · Council Link
- HIGHWAYS TEAM
Consultee
Not archived · Council Link
APPLICATION FORM - WITHOUT PERSONAL DATA
Application Form
Not archived · Council Link
COAL MINING RISK ASSESSMENT
BackGround Papers
Not archived · Council Link
DESIGN AND ACCESS STATEMENT
BackGround Papers
Not archived · Council Link
LAND CONTAMINATION ASSESSMENT
BackGround Papers
Not archived · Council Link
Drawing
Archived · Council Link
NOISE IMPACT ASSESSMENT
BackGround Papers
Not archived · Council Link
PLANNING STATEMENT
BackGround Papers
Not archived · Council Link
Drawing
Archived · Council Link
Drawing
Archived · Council Link
SURVEY DRAWING
Drawing
Not archived · Council Link
WITHDRAWN DECISION
Decision
Not archived · Council Link

Take Action

Make your voice heard. Authorities need to hear from people who support new homes.

✉️ Write Email in Support View on Council Portal