← Back to Leeds City Council

Status

Current Change of use
Received
n/a
New dwellings
0

Summary

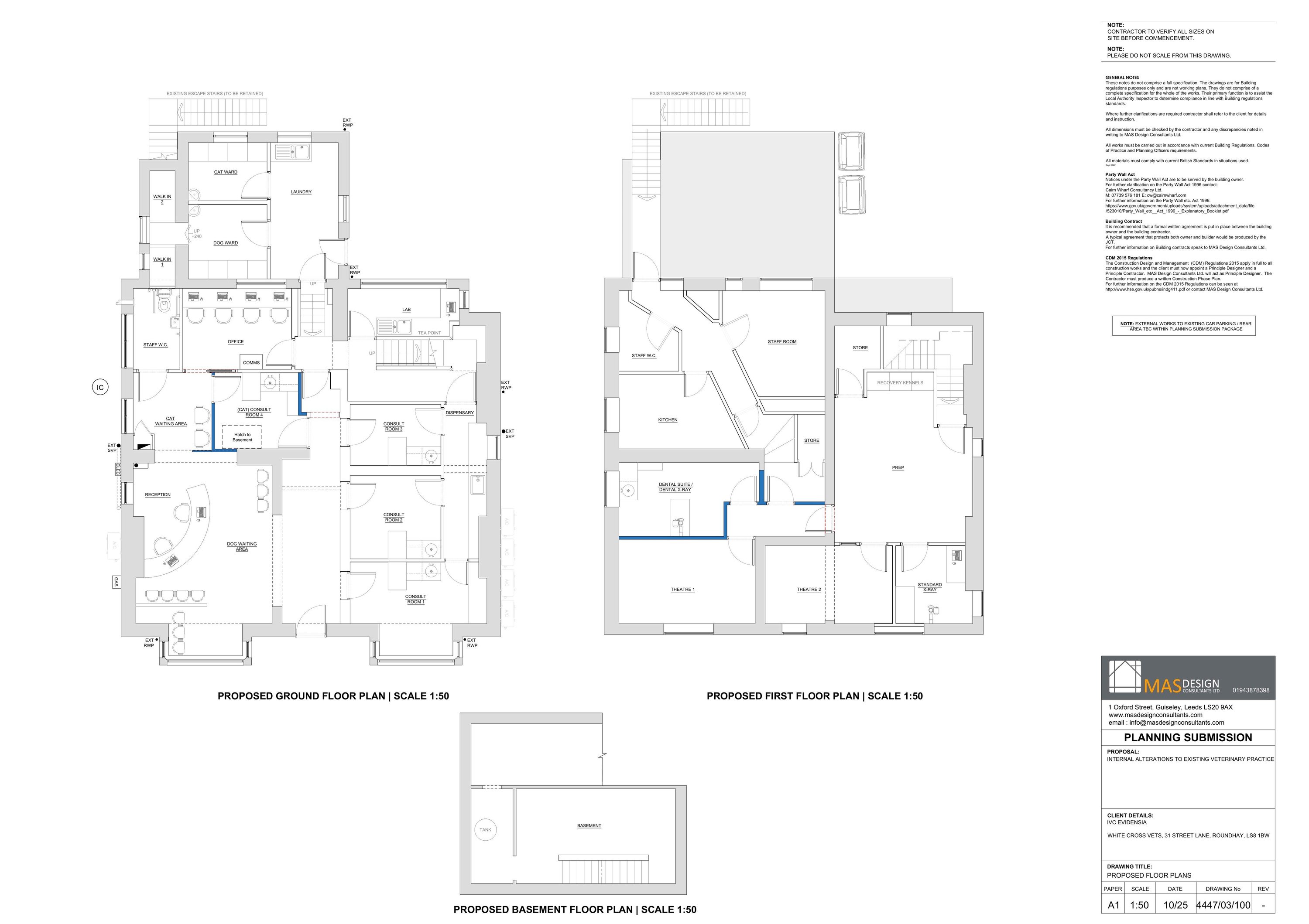
Part change of use to veterinary practice, removing residential flat.

Full Proposal

Part change of use from mixed use residential flat (Use Class C3) and veterinary practice (Use Class E(e)) to vets practice (E(e))

Documents

- ACCESS OFFICER
Consultee
Not archived · Council Link
- HIGHWAYS TEAM
Consultee
Not archived · Council Link
APPLICATION FORM - WITHOUT PERSONAL DATA
Application Form
Not archived · Council Link
DESIGN AND ACCESS STATEMENT
BackGround Papers
Not archived · Council Link
EXISTING FLOOR PLANS
Drawing
Not archived · Council Link
LOCATION PLAN
Drawing
Not archived · Council Link
Drawing
Archived · Council Link
Drawing
Archived · Council Link
Drawing
Archived · Council Link
SUPPORTING STATEMENT
BackGround Papers
Not archived · Council Link

Take Action

Make your voice heard. Authorities need to hear from people who support new homes.

✉️ Write Email in Support View on Council Portal