← Back to Leeds City Council

Status

Current Change of use
Received
n/a
New dwellings
2

Summary

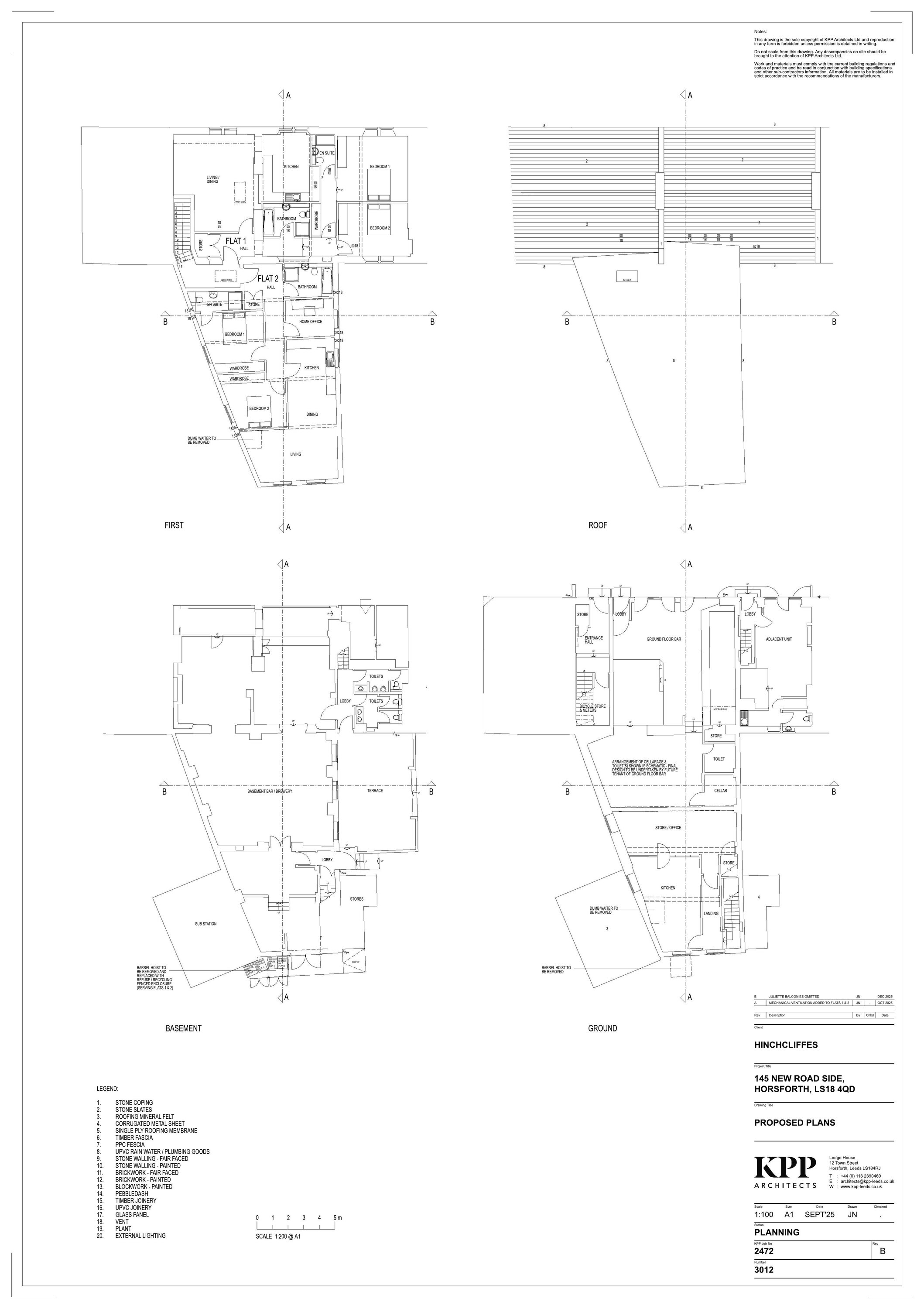
Convert first floor to two two-bedroom flats; reconfigure ground-floor bar; add cycle and bin storage.

Full Proposal

Change of use for first floor conversion and alterations to form 2 no. two bedroom flats; secure cycle and bin storage; reconfiguration of ground floor bar with wc store and office and kitchen for use in association with the basement use

Documents

- ENVIRONMENT AND DESIGN GROUP ACOUSTICS
Consultee
Not archived · Council Link
- FLOOD RISK MANAGEMENT
Consultee
Not archived · Council Link
- HIGHWAYS TEAM
Consultee
Not archived · Council Link
- HIGHWAYS TEAM
Consultee
Not archived · Council Link
EXISTING ELEVATIONS
Drawing
Not archived · Council Link
EXISTING FLOOR PLANS
Drawing
Not archived · Council Link
PLANNING APPLICATION FORM
Application Form
Not archived · Council Link
PLANNING, DESIGN AND ACCESS STATEMENT
BackGround Papers
Not archived · Council Link
RESIDENTIAL NOISE ASSESSMENT
BackGround Papers
Not archived · Council Link
REV . A PROPOSED SITE LAYOUT
Drawing
Not archived · Council Link
REV . C PROPOSED ELEVATIONS
Drawing
Not archived · Council Link
Drawing
Archived · Council Link

Take Action

Make your voice heard. Authorities need to hear from people who support new homes.

✉️ Write Email in Support View on Council Portal