← Back to Leeds City Council

Status

Current New housing
Received
n/a
New dwellings
2

Full Proposal

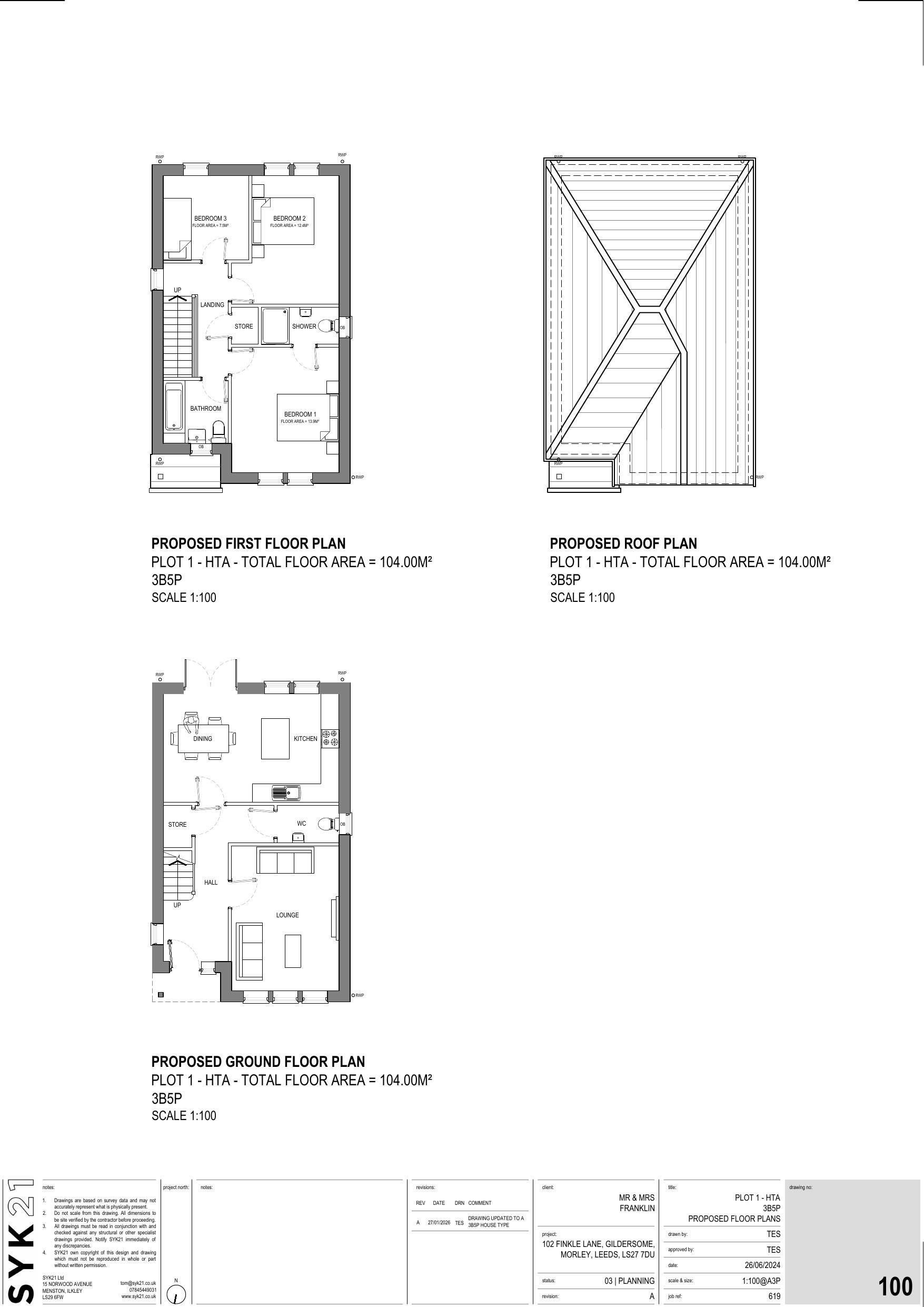
Two new detached dwellinghouses with associated access road and surface parking within the garden of the existing property at 102 Finkle Lane

Documents

- CONTAMINATED LAND TEAM
Consultee
Not archived · Council Link
- ENVIRONMENTAL STUDIES TRANSPORT STRATEGY TEAM
Consultee
Not archived · Council Link
- FLOOD RISK MANAGEMENT
Consultee
Not archived · Council Link
- FLOOD RISK MANAGEMENT
Consultee
Not archived · Council Link
- HIGHWAYS TEAM
Consultee
Not archived · Council Link
- THE COAL AUTHORITY
Consultee
Not archived · Council Link
ADD . COAL MINING RISK ASSESSMENT
BackGround Papers
Not archived · Council Link
ADD . DRAINAGE STRATEGY
Drawing
Not archived · Council Link
ADD . FLOW CALCULATIONS
BackGround Papers
Not archived · Council Link
ADD . PERCOLATION REPORT
BackGround Papers
Not archived · Council Link
ADD . SURFACE WATER DRAINAGE MAINTENANCE AND MANAGEMENT SCHEDULE
BackGround Papers
Not archived · Council Link
ARBORICULTURAL REPORT
BackGround Papers
Not archived · Council Link
BIODIVERSITY NET GAIN ASSESSMENT
BackGround Papers
Not archived · Council Link
CMRAR AND PHASE 1 DESK TOP STUDY
BackGround Papers
Not archived · Council Link
DESIGN AND ACCESS STATEMENT
BackGround Papers
Not archived · Council Link
Drawing
Archived · Council Link
LOCATION PLAN
Drawing
Not archived · Council Link
PLANNING APPLICATION FORM
Application Form
Not archived · Council Link
REV . EXISTING AND PROPOSED SECTIONS
Drawing
Not archived · Council Link
REV . PROPOSED ELEVATIONS - PLOT 1
Drawing
Not archived · Council Link
REV . PROPOSED ELEVATIONS - PLOT 2
Drawing
Not archived · Council Link
STATUTORY BIODIVERSITY METRIC
BackGround Papers
Not archived · Council Link
THE COAL AUTHORITY
Consultee
Not archived · Council Link
VEHICLE TRACKING
Drawing
Not archived · Council Link

Take Action

Make your voice heard. Authorities need to hear from people who support new homes.

✉️ Write Email in Support View on Council Portal