← Back to Leeds City Council

Status

Current Change of use
Received
n/a
New dwellings
3

Full Proposal

Determination for conversion of existing agricultural buildings to three dwellinghouses with associated operational development including alterations to existing roof, windows and doors, insertion new windows and doors, partial demolition of buildings

Documents

- CONTAMINATED LAND TEAM
Consultee
Not archived · Council Link
- CONTAMINATED LAND TEAM
Consultee
Not archived · Council Link
- FLOOD RISK MANAGEMENT
Consultee
Not archived · Council Link
- HIGHWAYS TEAM
Consultee
Not archived · Council Link
ADD . ANIMAL HEALTH REGISTRATION APRIL 2012
BackGround Papers
Not archived · Council Link
ADD . APPLICANT STATEMENT RE AGRICULTURAL UNIT
BackGround Papers
Not archived · Council Link
ADD . COWS IN BARNS
BackGround Papers
Not archived · Council Link
ADD . COWS IN BARNS, FIELDS
BackGround Papers
Not archived · Council Link
ADD . FARM PHOTOS 1999
BackGround Papers
Not archived · Council Link
ADD . PHASE 1 DESK TOP STUDY
BackGround Papers
Not archived · Council Link
ADD . PLAN EXTENT OF AGRI UNIT 2
BackGround Papers
Not archived · Council Link
ADD . PLAN OF AGRICULTURAL UNIT
BackGround Papers
Not archived · Council Link
ADD . SIGNED CONFIRMATION FROM TENANT
BackGround Papers
Not archived · Council Link
ADD . TITLE HOLDING PLAN
BackGround Papers
Not archived · Council Link
COVERING LETTER
BackGround Papers
Not archived · Council Link
EXISTING ELEVATIONS SHEET 1 OF 2 AGRICULTURAL BUILDING 03
Drawing
Not archived · Council Link
EXISTING ELEVATIONS SHEET 1 OF 4 AGRICULTURAL BUILDING 02
Drawing
Not archived · Council Link
EXISTING ELEVATIONS SHEET 2 OF 2 AGRICULTURAL BUILDING 02
Drawing
Not archived · Council Link
EXISTING ELEVATIONS SHEET 2 OF 4 AGRICULTURAL BUILDING 02
Drawing
Not archived · Council Link
EXISTING ELEVATIONS SHEET 3 OF 4 AGRICULTURAL BUILDING 02
Drawing
Not archived · Council Link
EXISTING ELEVATIONS SHEET 4 OF 4 AGRICULTURAL BUILDING 02
Drawing
Not archived · Council Link
EXISTING FIRST FLOOR PLAN AGRICULTURAL BUILDING 02
Drawing
Not archived · Council Link
EXISTING GROUND FLOOR PLAN AGRICULTURAL BUILDING 02
Drawing
Not archived · Council Link
EXISTING GROUND FLOOR PLAN AGRICULTURAL BUILDING 03
Drawing
Not archived · Council Link
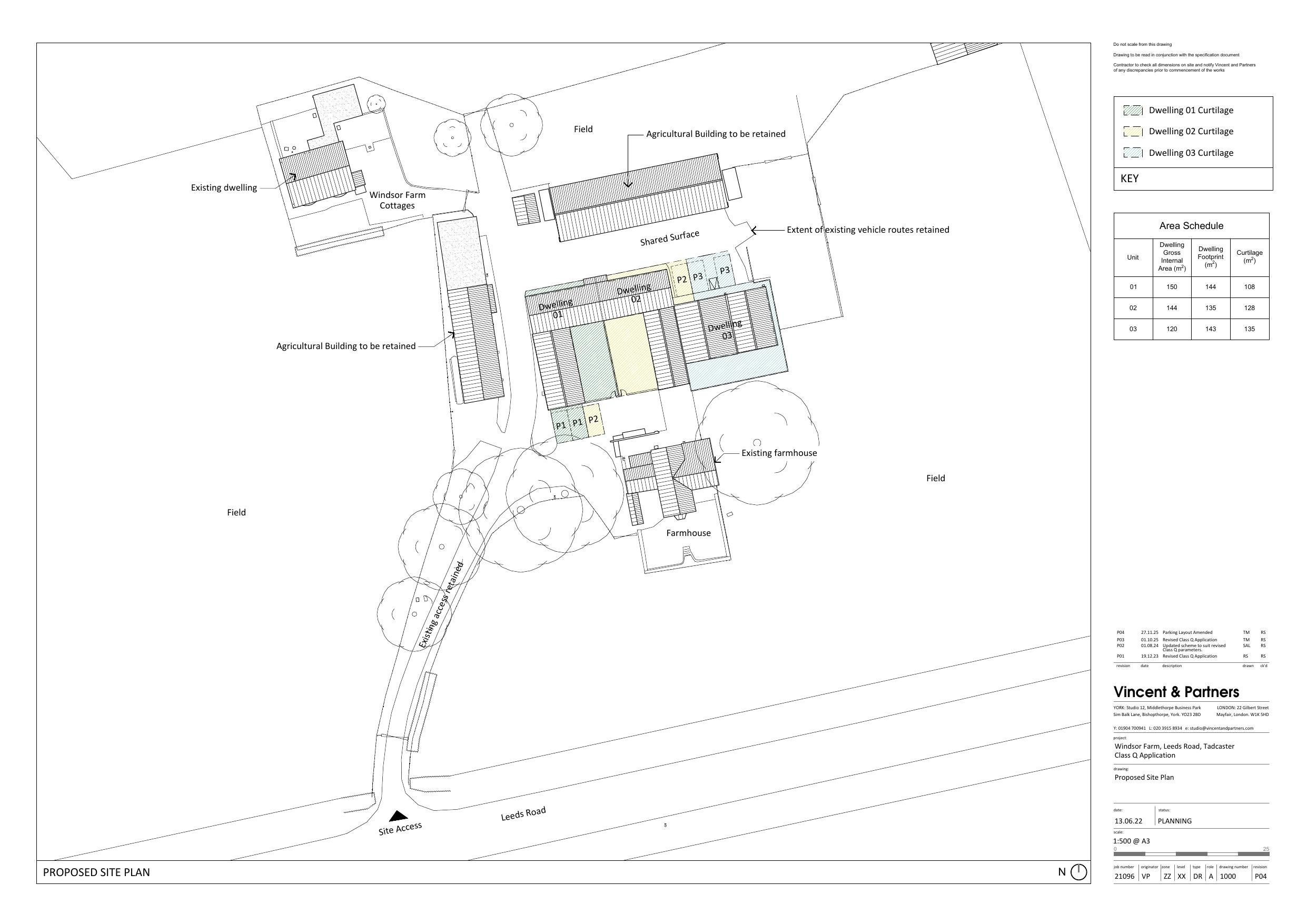
Drawing
Archived · Council Link
LOCATION PLAN
Drawing
Not archived · Council Link
PLANNING APPLICATION FORM
Application Form
Not archived · Council Link
PROPOSED ELEVATIONS SHEET 1 OF 2 AGRICULTURAL BUILDING 03
Drawing
Not archived · Council Link
PROPOSED ELEVATIONS SHEET 1 OF 4 AGRICULTURAL BUILDING 02
Drawing
Not archived · Council Link
PROPOSED ELEVATIONS SHEET 2 OF 2 AGRICULTURAL BUILDING 03
Drawing
Not archived · Council Link
PROPOSED ELEVATIONS SHEET 2 OF 4 AGRICULTURAL BUILDING 02
Drawing
Not archived · Council Link
PROPOSED ELEVATIONS SHEET 3 OF 4 AGRICULTURAL BUILDING 02
Drawing
Not archived · Council Link
PROPOSED ELEVATIONS SHEET 4 OF 4 AGRICULTURAL BUILDING 02
Drawing
Not archived · Council Link
PROPOSED FIRST FLOOR PLAN AGRICULTURAL BUILDING 02
Drawing
Not archived · Council Link
PROPOSED GROUND FLOOR PLAN AGRICULTURAL BUILDING 02
Drawing
Not archived · Council Link
PROPOSED GROUND FLOOR PLAN AGRICULTURAL BUILDING 03
Drawing
Not archived · Council Link
Drawing
Archived · Council Link
STRUCTURAL REPORT
BackGround Papers
Not archived · Council Link

Take Action

Make your voice heard. Authorities need to hear from people who support new homes.

✉️ Write Email in Support View on Council Portal