← Back to Leeds City Council

Status

Current Change of use
Received
n/a
New dwellings
2

Summary

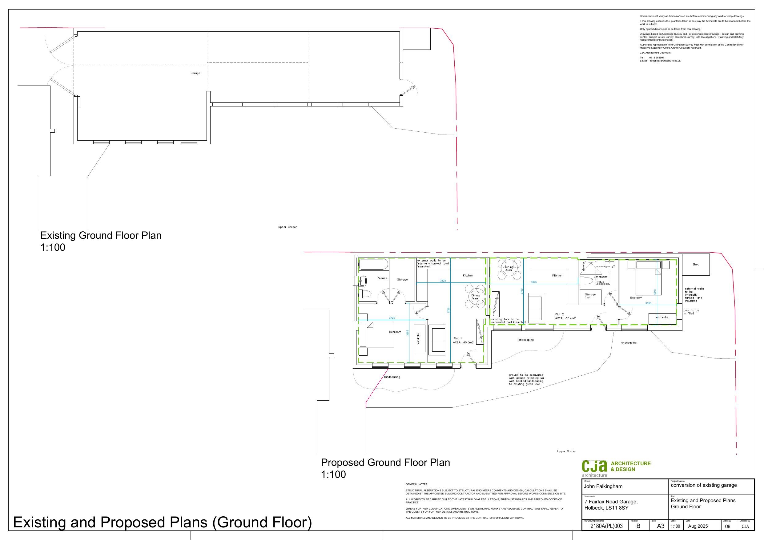
Convert existing garage into two flats with fenestration and landscaping works.

Full Proposal

Conversion of existing garage into two flats; alterations to fenestration including replacement of garage door with window; new access doors; associated landscaping

Documents

DESIGN AND ACCESS STATEMENT
BackGround Papers
Not archived · Council Link
ECO SLATE DETAILS
BackGround Papers
Not archived · Council Link
EXISTING AND PROPOSED ELEVATIONS 1
Drawing
Not archived · Council Link
EXISTING AND PROPOSED ELEVATIONS 2
Drawing
Not archived · Council Link
PLANNING APPLICATION FORM
Application Form
Not archived · Council Link
PROPOSED GROUND FLOOR EXTRACT
Drawing
Not archived · Council Link
PROPOSED INTERNAL FLOOR AREAS
Drawing
Not archived · Council Link

Take Action

Make your voice heard. Authorities need to hear from people who support new homes.

✉️ Write Email in Support View on Council Portal