← Back to Leeds City Council
Status
Current
Change of use
Full Proposal
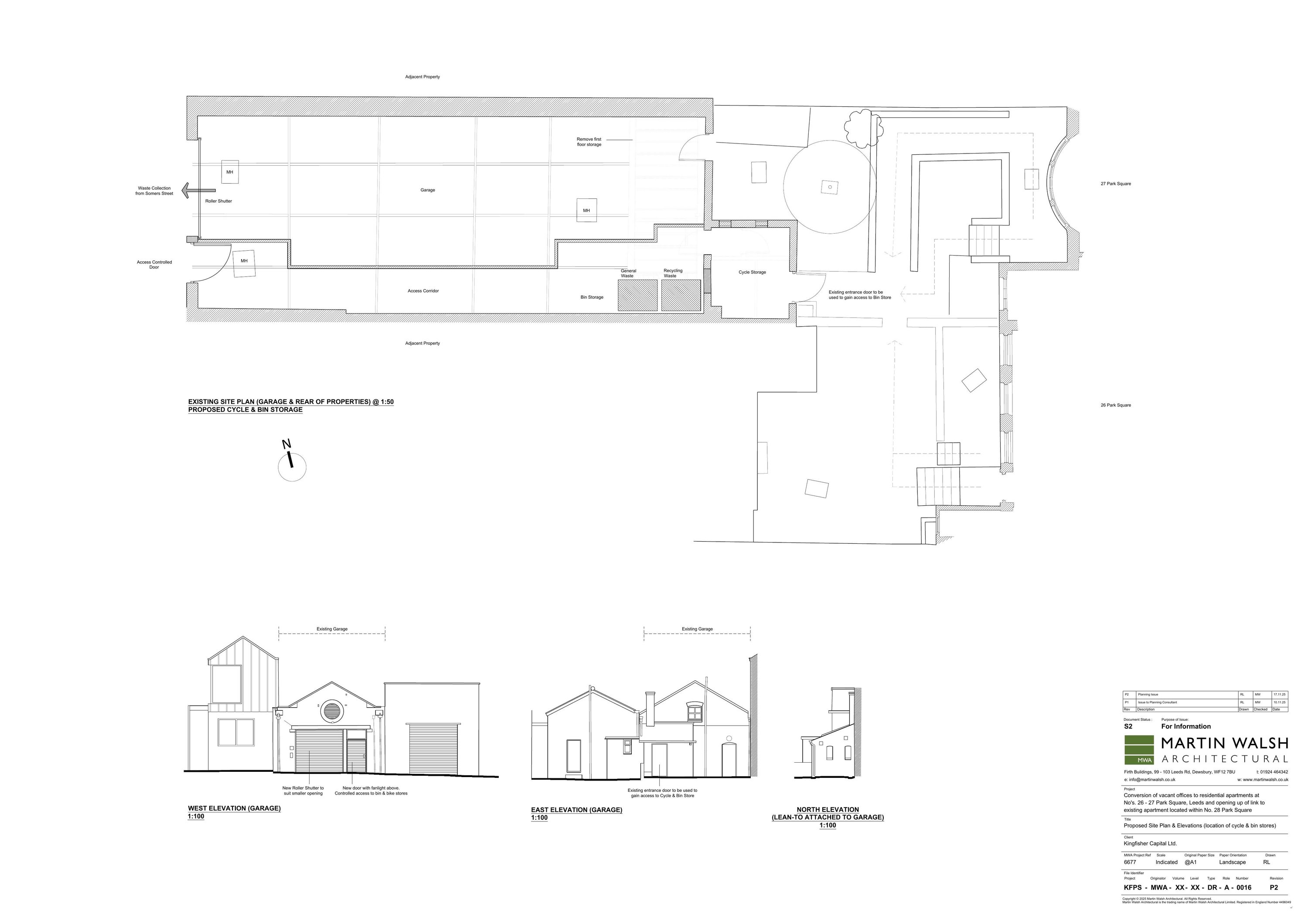
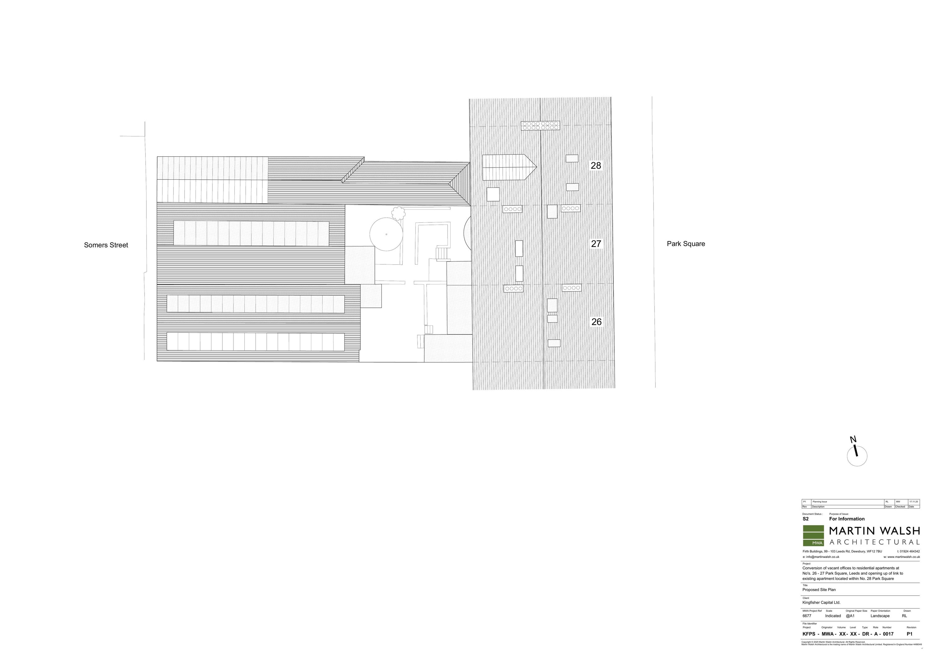
Change of use of vacant office properties to form 9no. residential apartments at 26-27 Park Square West, and create opening at second floor level to form link to existing apartment sited at upper floors of No. 28 Park Square West. Formation of bin and cycle stores within existing garage to rear with new access door
Documents
- CONTAMINATED LAND TEAM
Consultee
- ENVIRONMENT AND DESIGN GROUP ACOUSTICS
Consultee
- FLOOD RISK MANAGEMENT
Consultee
- HIGHWAYS TEAM
Consultee
- REFUSE COLLECTION SERVICES
Consultee
DESIGN AND ACCESS STATEMENT
BackGround Papers
EXISTING FRONT AND REAR ELEVATIONS (26, 27 AND 28 PARK SQUARE)
Drawing
FIRST FLOOR - EXISTING
Drawing
FIRST FLOOR - PROPOSED
Drawing
HERITAGE STATEMENT
BackGround Papers
LOWER GROUND FLOOR - EXISTING
Drawing
LOWER GROUND FLOOR - PROPOSED
Drawing
PLANNING APPLICATION FORM
Application Form
PLANNING POLICY STATEMENT
BackGround Papers
PROPOSED FRONT AND REAR ELEVATIONS (26, 27 AND 28 PARK SQUARE)
Drawing
SECOND FLOOR - EXISTING
Drawing
SECOND FLOOR - PROPOSED
Drawing
SITE NOTICE
Site Notice and Advert
THIRD FLOOR - EXISTING
Drawing
THIRD FLOOR - PROPOSED
Drawing
UPPER GROUND FLOOR - EXISTING
Drawing
UPPER GROUND FLOOR - PROPOSED
Drawing
Take Action
Make your voice heard. Authorities need to hear from people who support new homes.