← Back to Leeds City Council

Status

Current Listed building
Received
n/a
New dwellings
9

Full Proposal

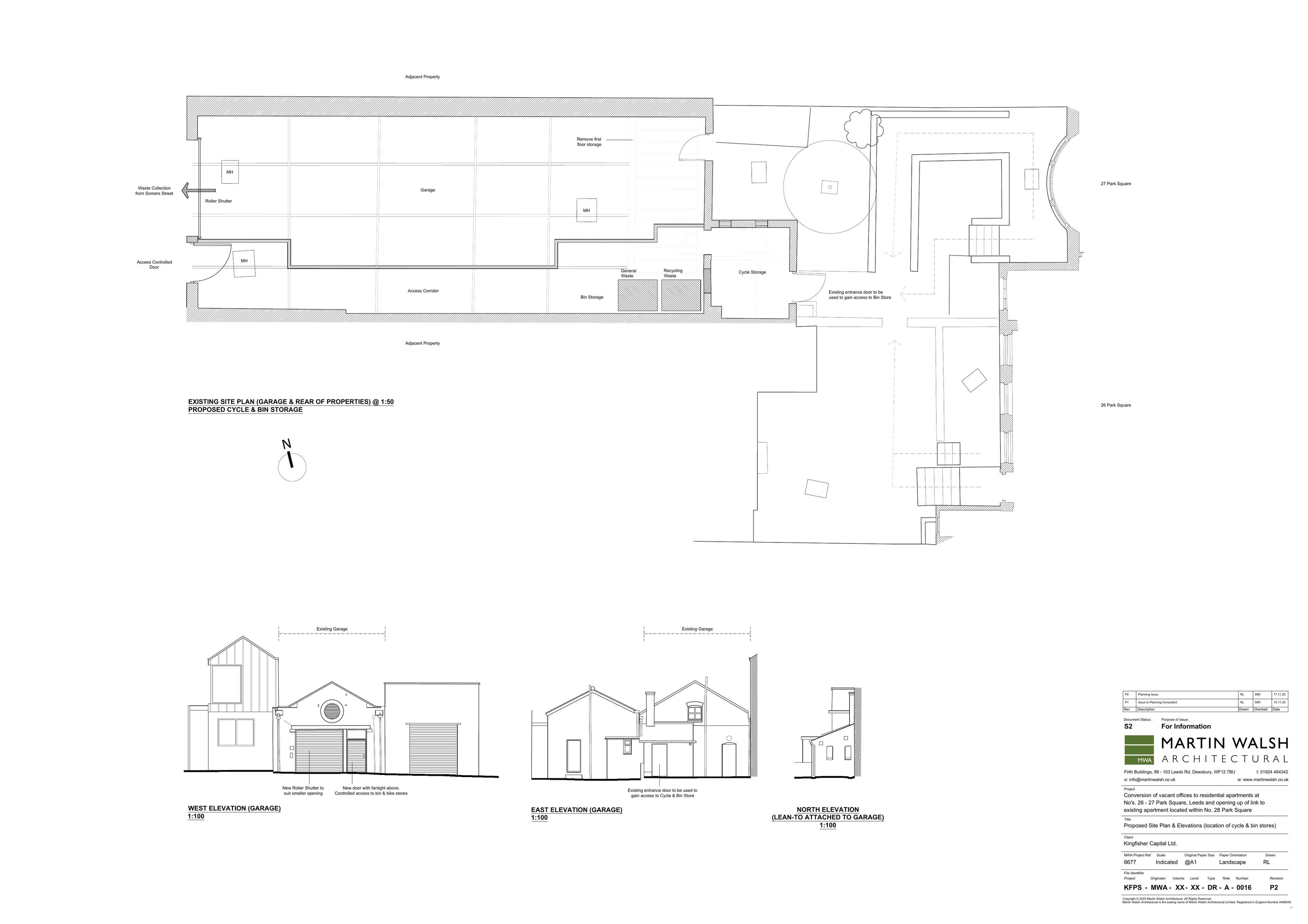
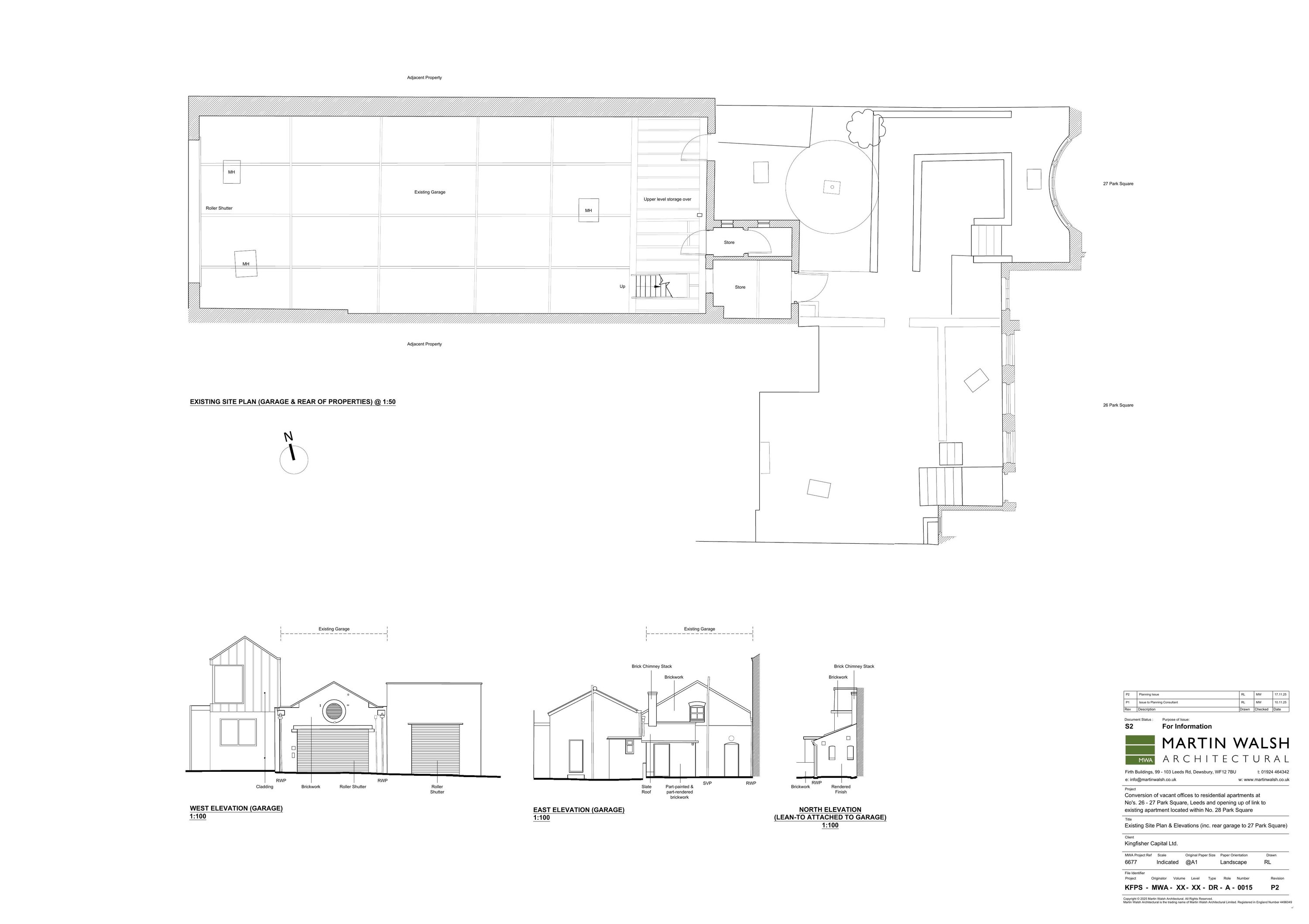
Listed building application for change of use of vacant offices to form 9no. residential apartments at 26-27 Park Square West, and create opening at second floor level to form link to existing apartment sited at upper floors of No. 28 Park Square West. Formation of bin and cycle stores within existing garage to rear with new access door

Documents

- CONSERVATION TEAM
Consultee
Not archived · Council Link
- CONSERVATION TEAM
Consultee
Not archived · Council Link
DESIGN AND ACCESS STATEMENT
BackGround Papers
Not archived · Council Link
ELEVATIONS
Drawing
Not archived · Council Link
EXISTING FRONT AND REAR ELEVATIONS (26, 27 AND 28 PARK SQUARE)
Drawing
Not archived · Council Link
Drawing
Archived · Council Link
FIRST FLOOR - EXISTING
Drawing
Not archived · Council Link
FIRST FLOOR - PROPOSED
Drawing
Not archived · Council Link
HERITAGE STATEMENT
BackGround Papers
Not archived · Council Link
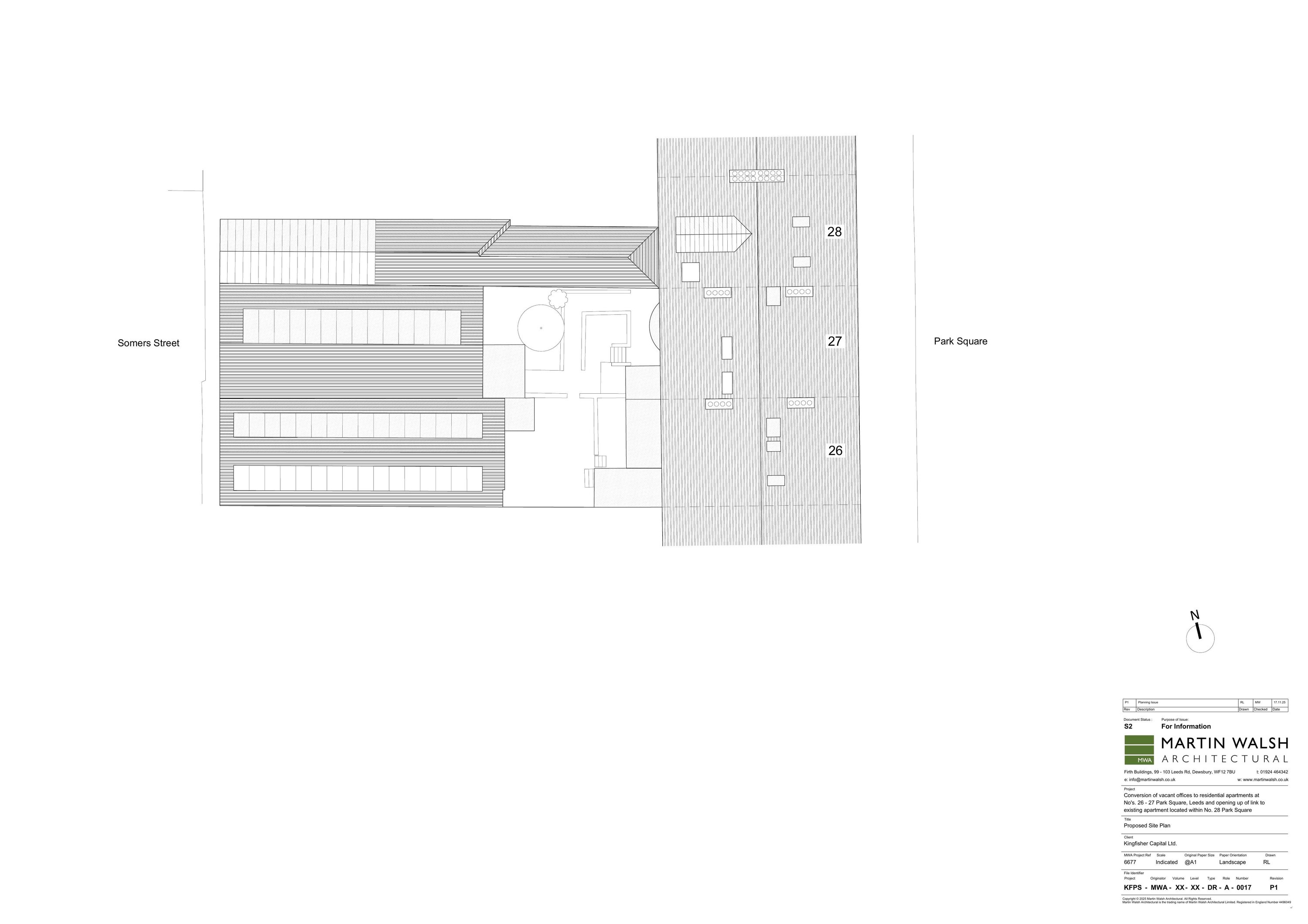
LOCATION PLAN
Drawing
Not archived · Council Link
LOWER GROUND FLOOR - EXISTING
Drawing
Not archived · Council Link
LOWER GROUND FLOOR - PROPOSED
Drawing
Not archived · Council Link
PLANNING APPLICATION FORM
Application Form
Not archived · Council Link
PLANNING POLICY STATEMENT
BackGround Papers
Not archived · Council Link
PROPOSED FRONT AND REAR ELEVATIONS (26, 27 AND 28 PARK SQUARE)
Drawing
Not archived · Council Link
Drawing
Archived · Council Link
SECOND FLOOR - EXISTING
Drawing
Not archived · Council Link
SECOND FLOOR - PROPOSED
Drawing
Not archived · Council Link
SITE NOTICE
Site Notice and Advert
Not archived · Council Link
THIRD FLOOR - EXISTING
Drawing
Not archived · Council Link
THIRD FLOOR - PROPOSED
Drawing
Not archived · Council Link
UPPER GROUND FLOOR - EXISTING
Drawing
Not archived · Council Link
UPPER GROUND FLOOR - PROPOSED
Drawing
Not archived · Council Link

Take Action

Make your voice heard. Authorities need to hear from people who support new homes.

✉️ Write Email in Support View on Council Portal