26/00540/FU
Leeds City Council · IDOX
Status
Current
Change of use
Received
n/a
New dwellings
0
Full Proposal
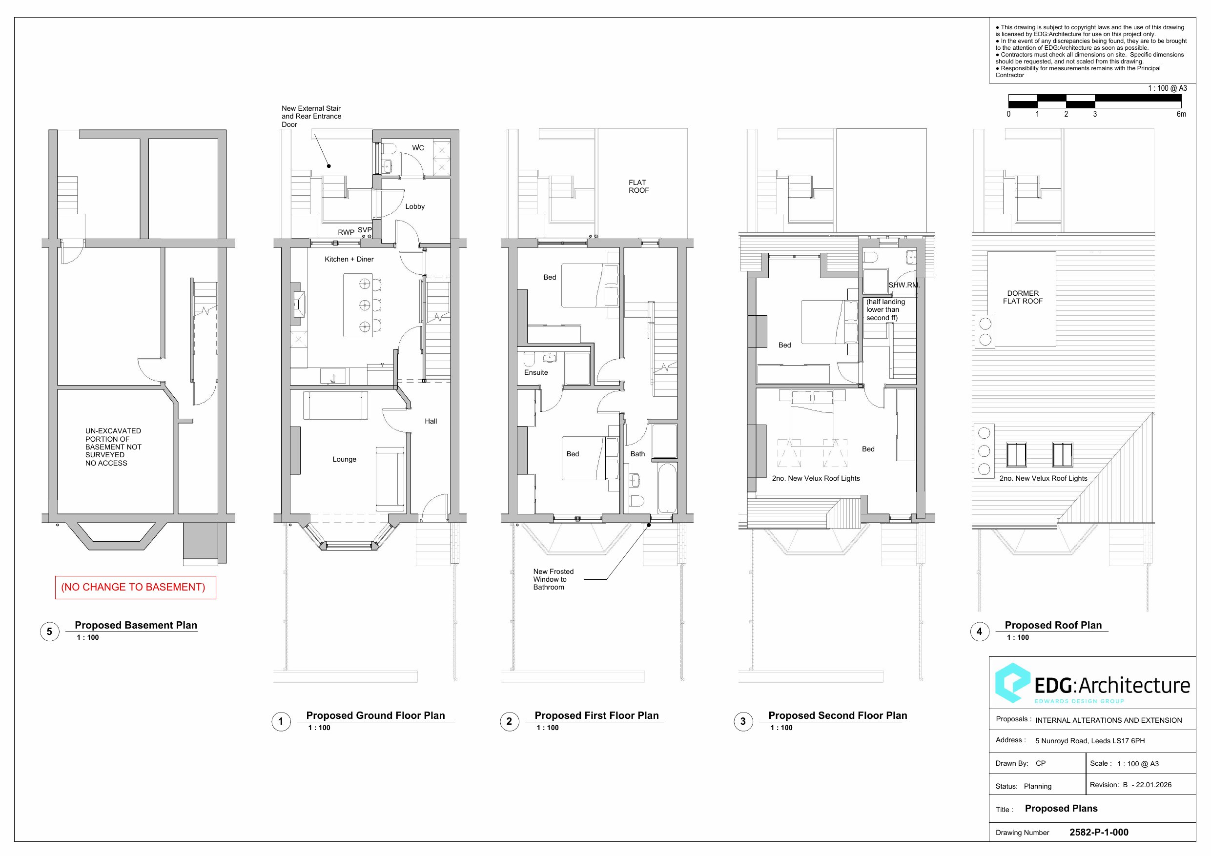
Conversion of two apartments to form one single dwelling with alterations including internal layout, replacement windows and insertion of one new window to first floor front, new external stairs and rear entrance door and replacement roof lights to front
Documents
Take Action
Make your voice heard. Authorities need to hear from people who support new homes.