← Back to Lewisham

Status

Registered New housing
Received
21 Oct 2024
New dwellings
2

Full Proposal

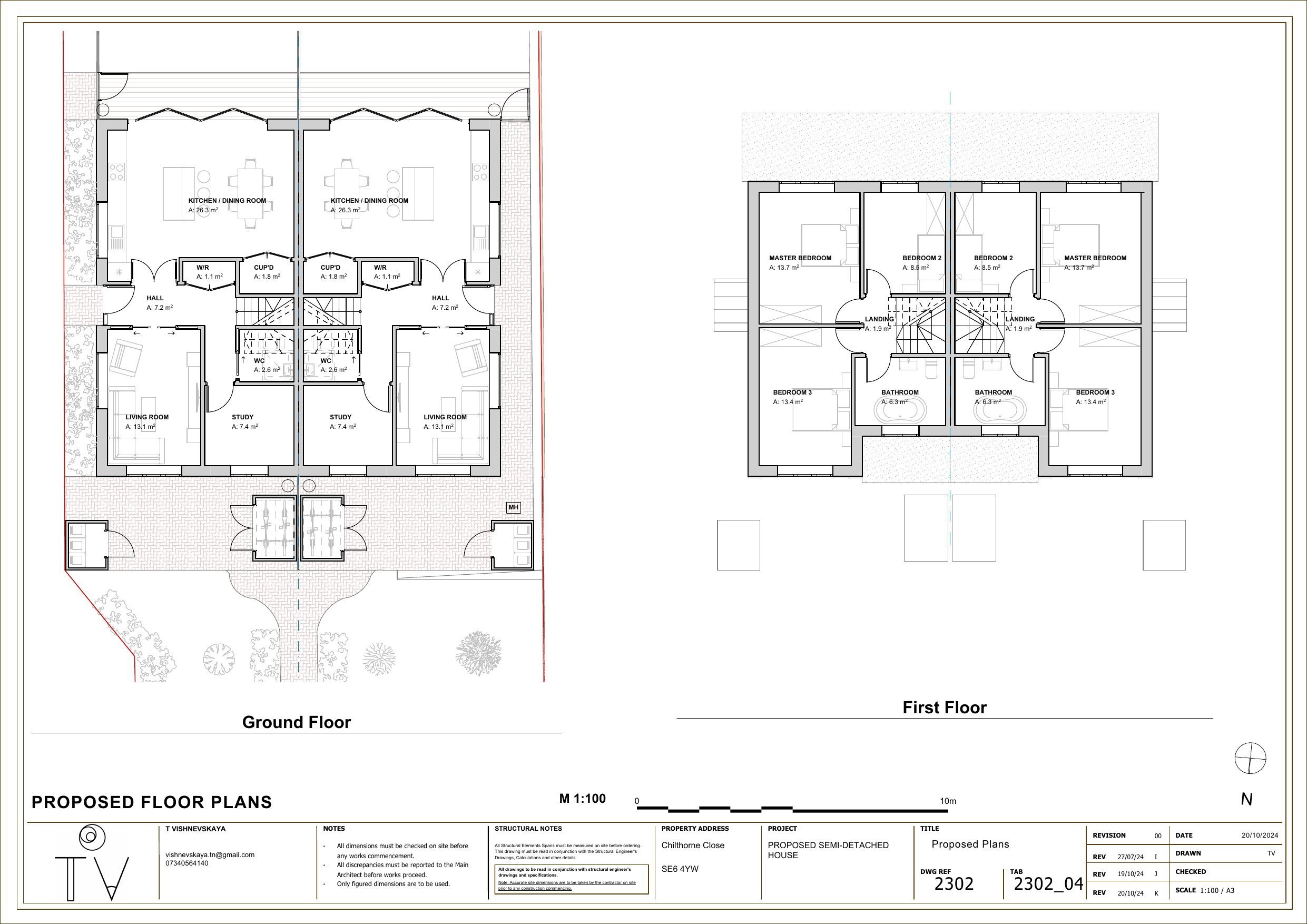
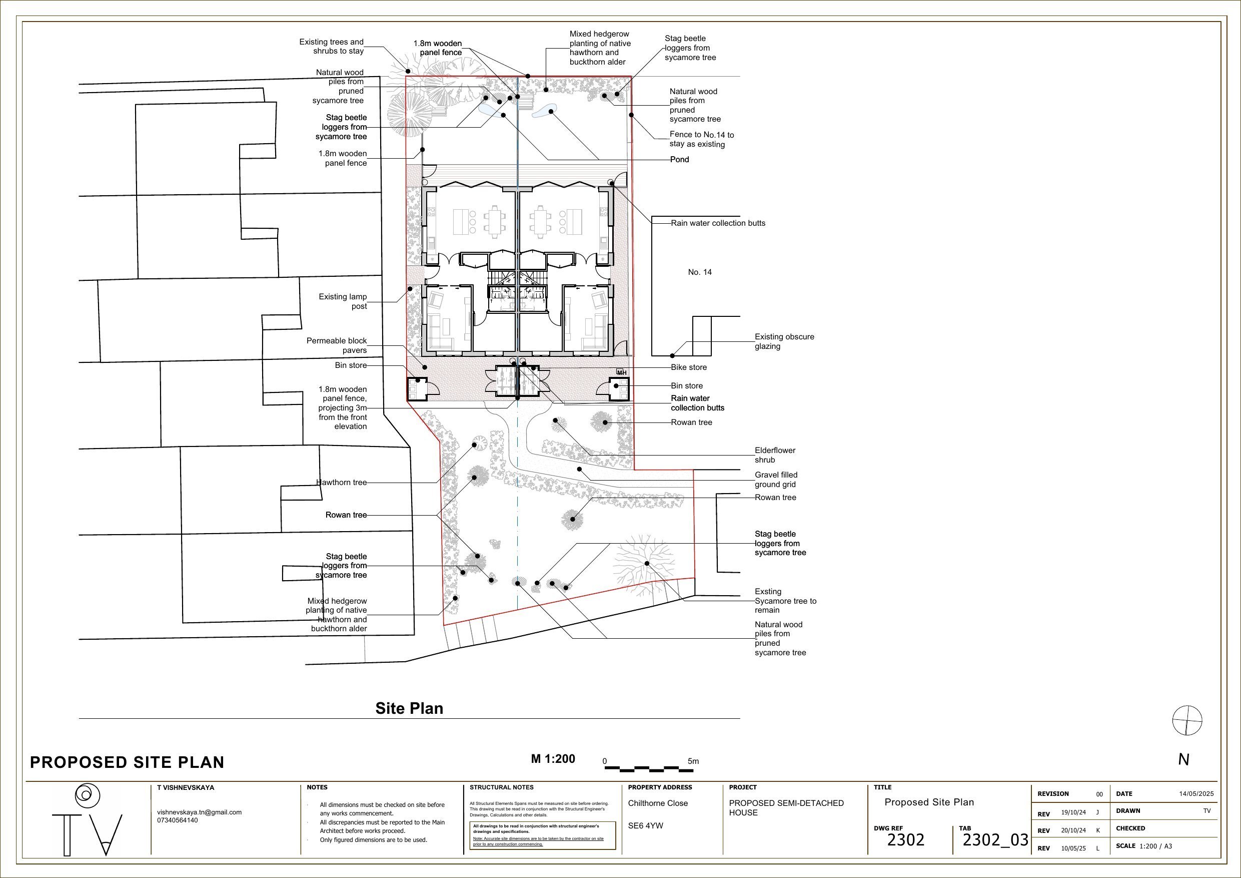
Construction of 2, two-storey semi-detached houses on land east of 14 Chilthorne Close SE6, fronting onto Chilthorne Close.

Documents

Air quality impact assessment
Case Copy Documents
Not archived · Council Link
Application form
Application Form
Not archived · Council Link
Block plan
Case Copy Drawings
Not archived · Council Link
Bng metric
Case Copy Drawings
Not archived · Council Link
Construction environmental management plan
Case Copy Documents
Not archived · Council Link
Design & access statement
Case Copy Documents
Not archived · Council Link
Ecological impact & bng assessments
Case Copy Documents
Not archived · Council Link
Ecology report
Case Copy Drawings
Not archived · Council Link
Location plan
Case Copy Drawings
Not archived · Council Link
Photomontage
Case Copy Drawings
Not archived · Council Link
Proposed 3d views
Case Copy Drawings
Not archived · Council Link
Proposed front & rear elevations
Case Copy Drawings
Not archived · Council Link
Case Copy Drawings
Archived · Council Link
Proposed sections & plans
Case Copy Drawings
Not archived · Council Link
Proposed side elevations
Case Copy Drawings
Not archived · Council Link
Superseded Document
Archived · Council Link
Superseded Document
Archived · Council Link
Case Copy Drawings
Archived · Council Link
Case Copy Drawings
Archived · Council Link
Tpo letter from legal services
Case Copy Drawings
Not archived · Council Link
Tpo letter from legal services
Case Copy Drawings
Not archived · Council Link
Unilateral undertaking
Case Copy Drawings
Not archived · Council Link
Uu site location plan
Case Copy Drawings
Not archived · Council Link

Take Action

Make your voice heard. Authorities need to hear from people who support new homes.

✉️ Write Email in Support View on Council Portal