← Back to Lewisham

Status

Decided Change of use
Received
02 May 2025
New dwellings
0

Summary

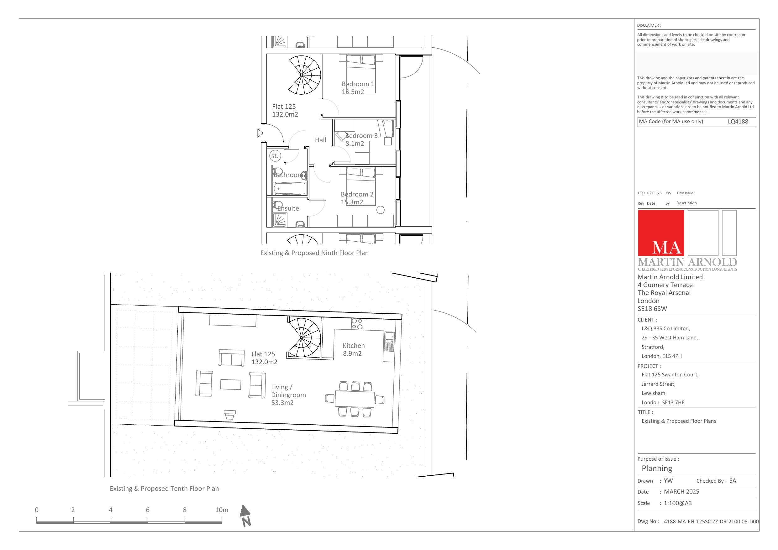
Change of use from a C3 dwelling to a small HMO (C4) for up to six residents.

Full Proposal

Change of use from a self-contained residential dwelling (Use Class C3) to a small house in multiple occupation for no more than 6 residents (Use Class C4) at Flat 125, Swanton Court, Jerrard Street, SE13.

Documents

Application form redacted
Application Form
Not archived · Council Link
Decision notice
Decision
Not archived · Council Link
Delegated report
Officer Report
Not archived · Council Link
Existing and proposed elevations
Case Copy Drawings
Not archived · Council Link
Case Copy Drawings
Archived · Council Link
Flood map
Case Copy Drawings
Not archived · Council Link
Planning statement
Case Copy Documents
Not archived · Council Link
Site Location Plan
Archived · Council Link
Swanton court ninth floor plan
Case Copy Drawings
Not archived · Council Link
Swanton court tenth floor plan
Case Copy Drawings
Not archived · Council Link

Take Action

Make your voice heard. Authorities need to hear from people who support new homes.

✉️ Write Email in Support View on Council Portal