← Back to Lewisham

Status

Decided House extension
Received
13 Aug 2025
New dwellings
0

Summary

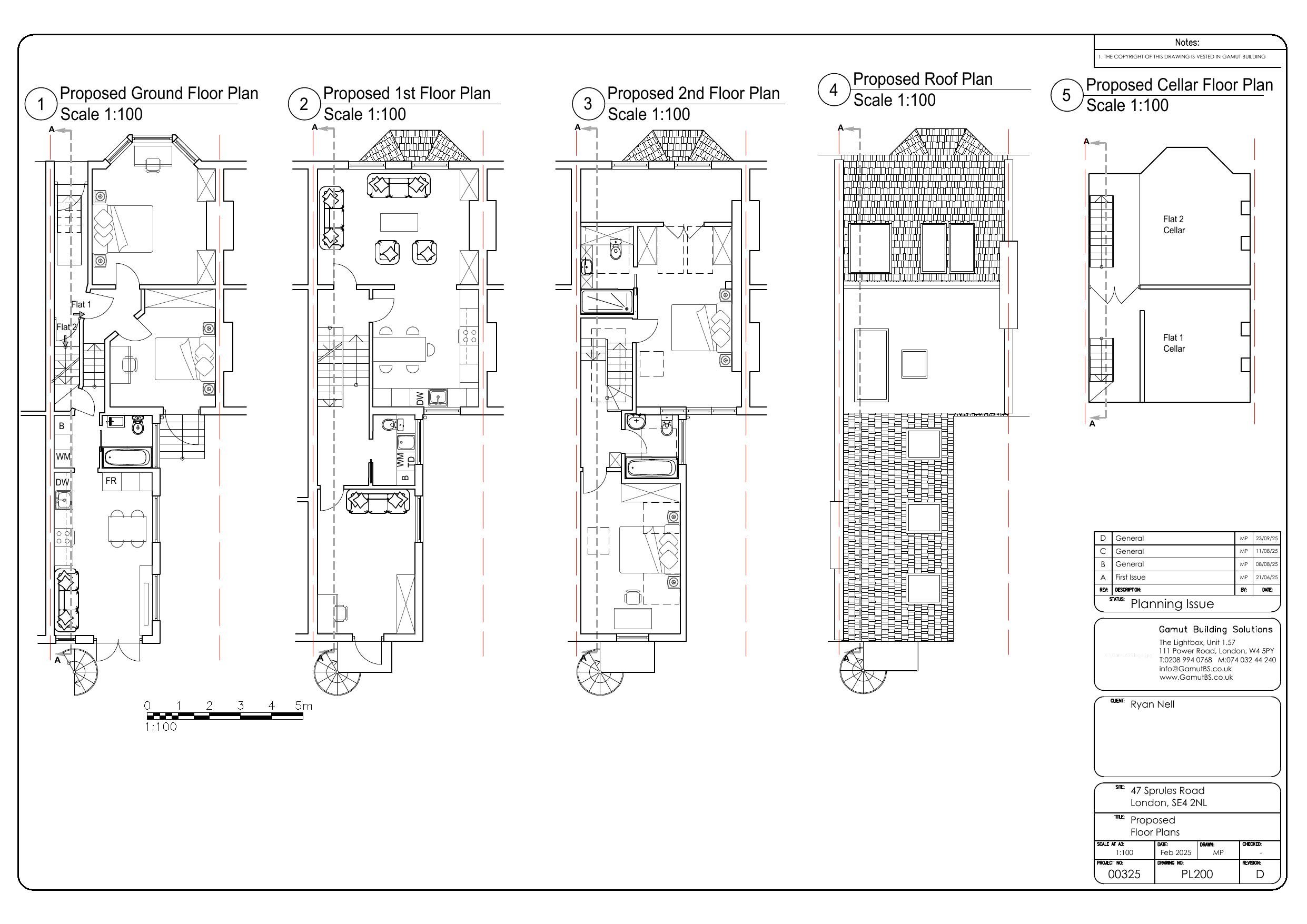
Roof extension, replacement staircase, windows, rooflights and rear openings at two flats; associated works.

Full Proposal

Construction of roof extension to rear roof slope, replacement external metal staircase to first floor level at the rear, installation of roof lights to front and side roof slopes, replacement timber sash windows to front, aluminium and timber sash windows to rear, new windows and door opening at the rear and all associated works at Ground Floor & First Floor Flats, 47 Sprules Road SE4.

Documents

Application form
Application Form
Not archived · Council Link
Decision notice
Decision
Not archived · Council Link
Delegated report
Officer Report
Not archived · Council Link
Existing & proposed block plans
Case Copy Drawings
Not archived · Council Link
Existing elevations
Revised Document
Not archived · Council Link
Existing floor plans
Case Copy Drawings
Not archived · Council Link
Existing sections
Revised Document
Not archived · Council Link
Fire safety assessment
Case Copy Documents
Not archived · Council Link
Case Copy Drawings
Archived · Council Link
Proposed elevations
Revised Document
Not archived · Council Link
Revised Document
Archived · Council Link
Proposed sections
Revised Document
Not archived · Council Link

Take Action

Make your voice heard. Authorities need to hear from people who support new homes.

✉️ Write Email in Support View on Council Portal