← Back to Lewisham

Status

Decided Change of use
Received
30 Sep 2025
New dwellings
1

Summary

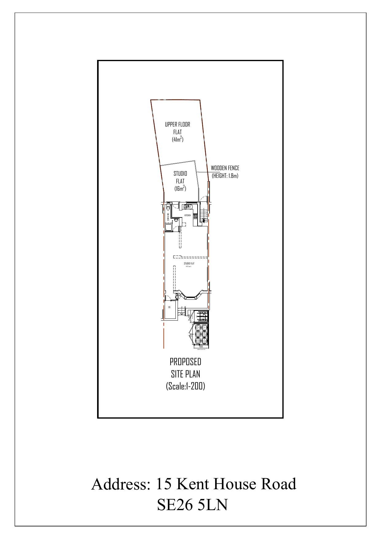
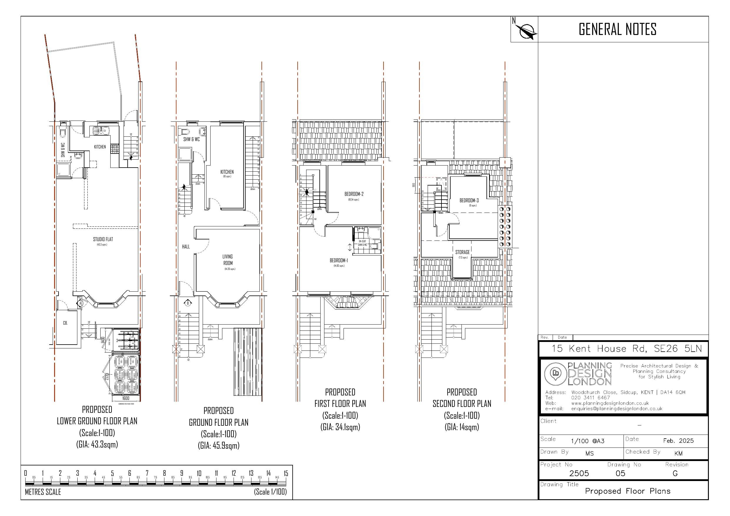
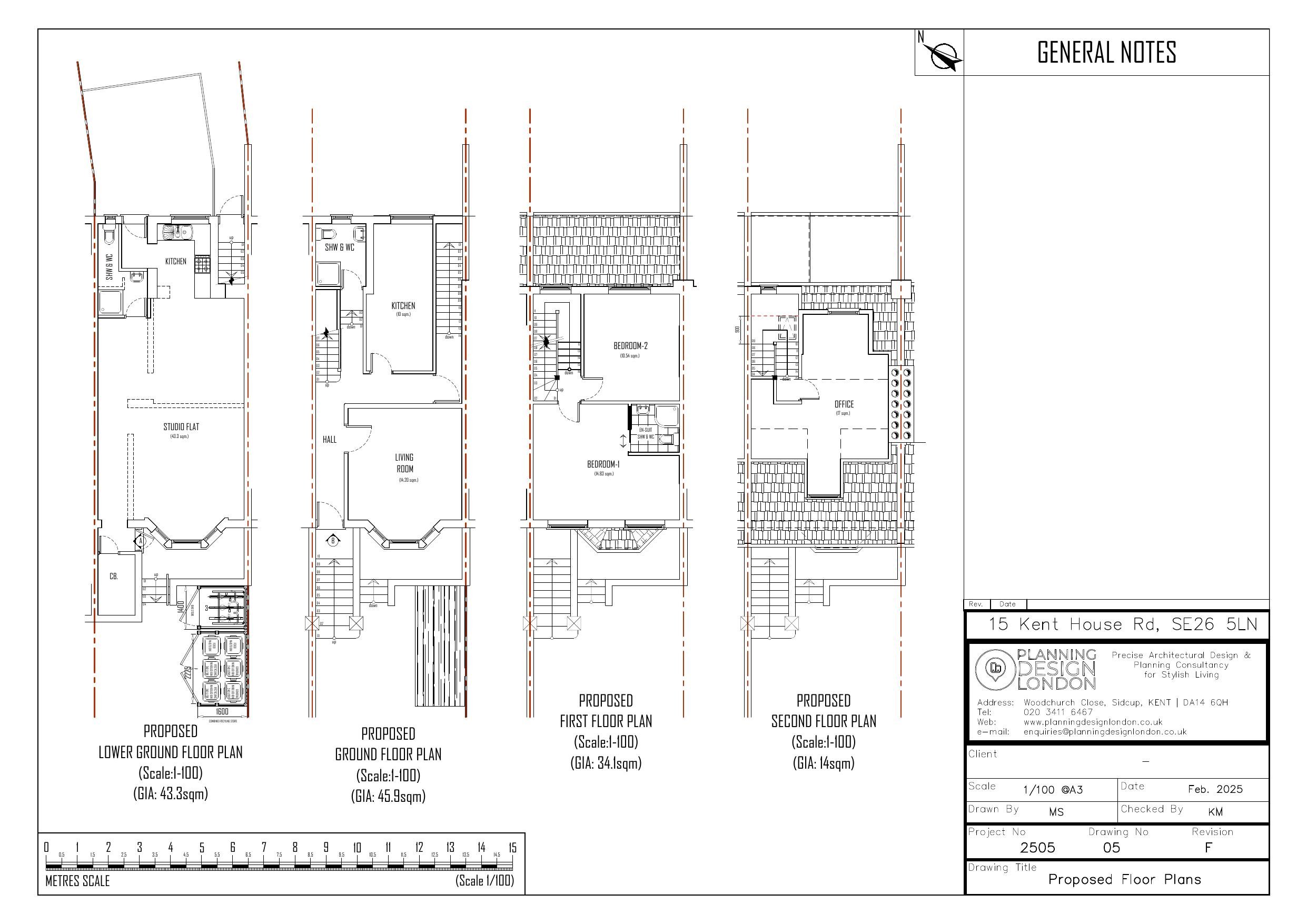
Single‑storey rear and rear roof extension; conversion to provide two self‑contained flats.

Full Proposal

The construction of a single storey rear extension and roof extension to the rear roofslope, inconnection with the alteration and conversion to provide two self-contained flats, together with the installation of a roof light in the rear roof slope, provision of cycle and bin storage in the front garden and all associated works at 15 Kent House Road SE26.

Documents

Air quality statement
Case Copy Documents
Not archived · Council Link
Application form
Application Form
Not archived · Council Link
Block plan (existing)
Case Copy Drawings
Not archived · Council Link
Block plan (proposed)
Case Copy Drawings
Not archived · Council Link
Decision notice
Decision
Not archived · Council Link
Delegated report
Officer Report
Not archived · Council Link
Design & access statement
Case Copy Documents
Not archived · Council Link
Existing cross-section through staircase
Case Copy Drawings
Not archived · Council Link
Existing floor plans
Case Copy Drawings
Not archived · Council Link
Existing front & side elevations
Case Copy Drawings
Not archived · Council Link
Existing rear & side elevations
Case Copy Drawings
Not archived · Council Link
Location plan
Superseded Document
Not archived · Council Link
Planning statement
Case Copy Documents
Not archived · Council Link
Proposed cross-section through staircase
Case Copy Drawings
Not archived · Council Link
Superseded Document
Archived · Council Link
Superseded Document
Archived · Council Link
Proposed front & side elevations
Case Copy Drawings
Not archived · Council Link
Case Copy Drawings
Archived · Council Link
Proposed rear & side elevations
Superseded Document
Not archived · Council Link
Proposed rear & side elevations
Case Copy Documents
Not archived · Council Link
Case Copy Documents
Archived · Council Link

Take Action

Make your voice heard. Authorities need to hear from people who support new homes.

✉️ Write Email in Support View on Council Portal