← Back to Lewisham

Status

Registered Change of use
Received
05 Nov 2025
New dwellings
0

Full Proposal

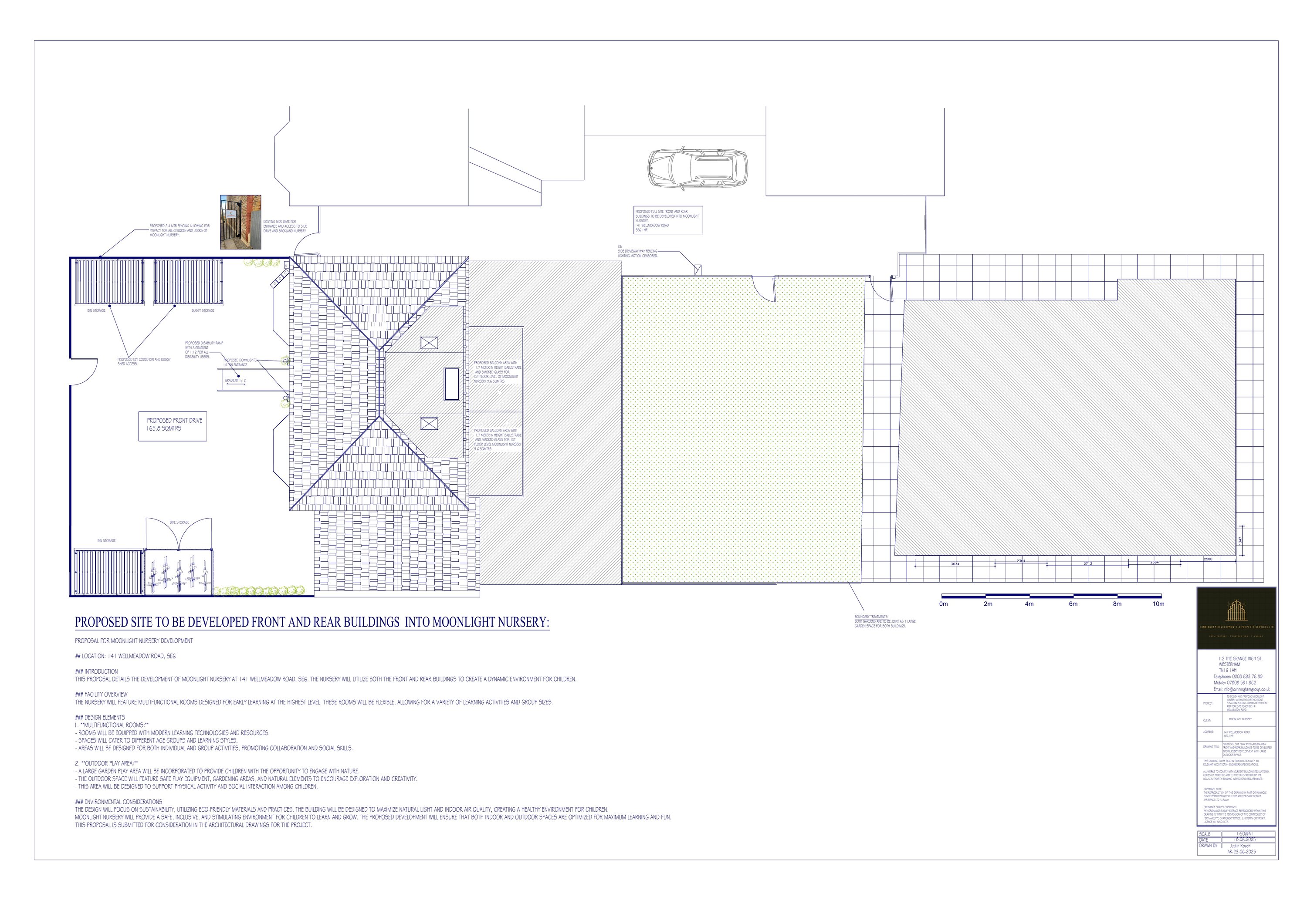
Change of use and alterations of front building at 141 Wellmeadow Road SE6, from residential (Use Class C3) into Nursery (Use Class E), in connection with the existing building at the rear of the site, together the provision of a disabled ramp and bin, buggy and bike storage and all associated works.

Documents

Application form
Application Form
Not archived · Council Link
Design and access statement
Case Copy Documents
Not archived · Council Link
Existing and proposed side section a aa
Case Copy Drawings
Not archived · Council Link
Existing block plan
Case Copy Drawings
Not archived · Council Link
Existing elevations
Case Copy Drawings
Not archived · Council Link
Existing elevations
Case Copy Drawings
Not archived · Council Link
Existing site layout plan
Case Copy Drawings
Not archived · Council Link
Case Copy Drawings
Archived · Council Link
Noise management plan moonlight childcare final
Case Copy Documents
Not archived · Council Link
Noise management plan moonlight childcare final
Case Copy Documents
Not archived · Council Link
Proposed 1st floor level
Case Copy Drawings
Not archived · Council Link
Proposed elevations
Case Copy Drawings
Not archived · Council Link
Proposed front building
Case Copy Drawings
Not archived · Council Link
Proposed loft area
Case Copy Drawings
Not archived · Council Link
Proposed site layout plan
Case Copy Drawings
Not archived · Council Link
Site Location Plan
Archived · Council Link
Transport statement
Case Copy Documents
Not archived · Council Link

Take Action

Make your voice heard. Authorities need to hear from people who support new homes.

✉️ Write Email in Support View on Council Portal