← Back to Lewisham

Status

Registered House extension
Received
12 Dec 2025
New dwellings
0

Summary

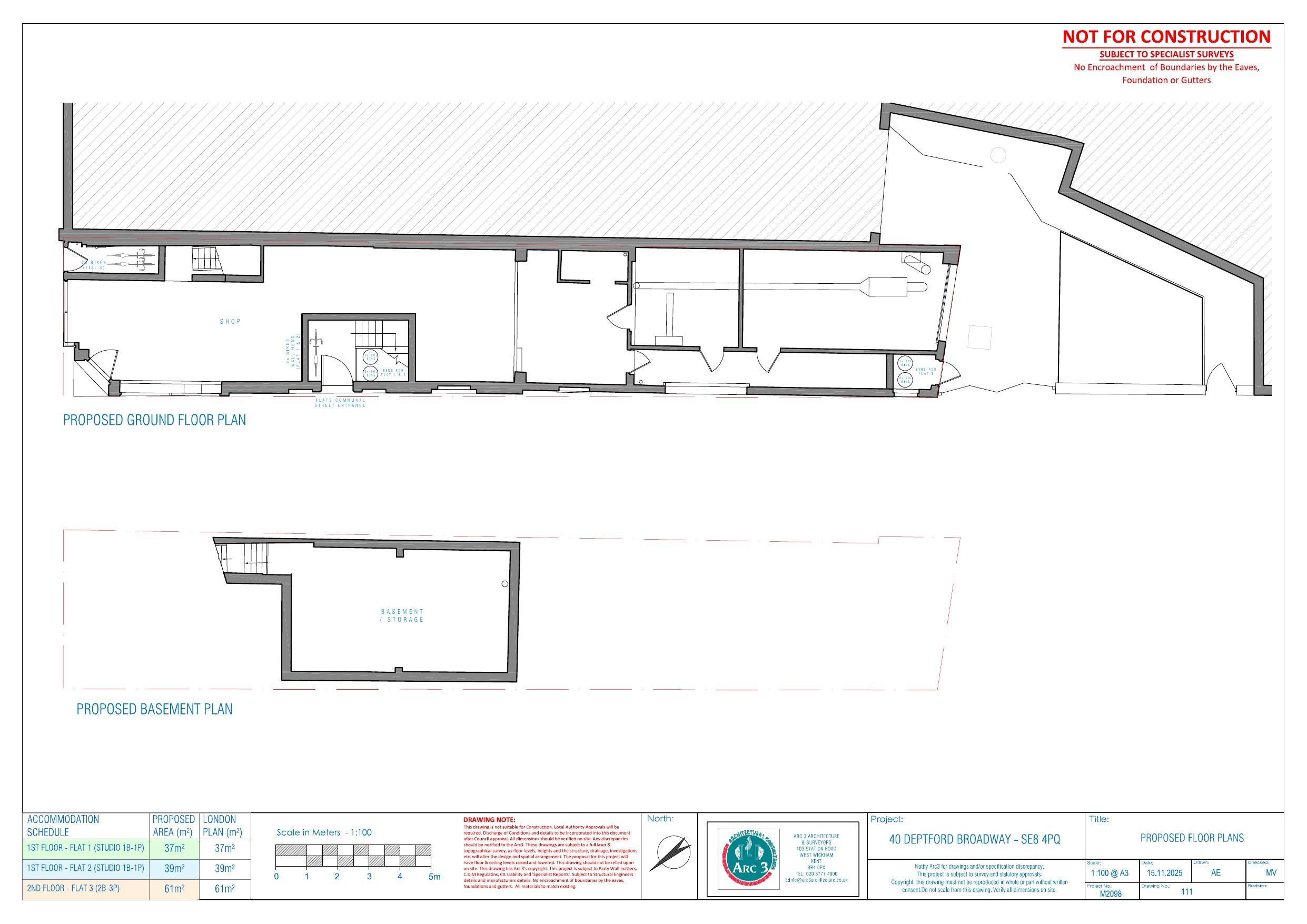
Add additional storey and first-floor rear extension to provide two studios and reconfigure existing flats.

Full Proposal

The construction of an additional storey and a first floor extension to the rear incorporating roof terraces to provide 2 self-contained studios, reconfiguration of the existing flats, alterations to the side elevation for a new communal entrance and staircase and all associated works at 40 Deptford Broadway SE8.

Documents

Application form
Application Form
Not archived · Council Link
Archaeological desktop
Case Copy Documents
Not archived · Council Link
Breeam pre-assessment report
Case Copy Documents
Not archived · Council Link
Comments
Case Copy Documents
Not archived · Council Link
Conservation obj
Case Copy Documents
Not archived · Council Link
Design access statement
Case Copy Documents
Not archived · Council Link
Existing block plan
Case Copy Drawings
Not archived · Council Link
Existing elevations
Case Copy Drawings
Not archived · Council Link
Existing elevations
Case Copy Drawings
Not archived · Council Link
Existing plan
Case Copy Drawings
Not archived · Council Link
Existing plans
Case Copy Drawings
Not archived · Council Link
Fire statement
Case Copy Documents
Not archived · Council Link
Flood risk statement
Case Copy Documents
Not archived · Council Link
Heritage statement
Case Copy Documents
Not archived · Council Link
Location plan
Case Copy Drawings
Not archived · Council Link
Proposed elevations
Case Copy Drawings
Not archived · Council Link
Proposed elevations colour
Case Copy Drawings
Not archived · Council Link
Proposed ogi
Case Copy Drawings
Not archived · Council Link
Case Copy Drawings
Archived · Council Link
Case Copy Drawings
Archived · Council Link
Site photos
Photographs
Not archived · Council Link
Sustability and energy statement
Case Copy Documents
Not archived · Council Link

Take Action

Make your voice heard. Authorities need to hear from people who support new homes.

✉️ Write Email in Support View on Council Portal