← Back to Lewisham

Status

Registered New housing
Received
19 Dec 2025
New dwellings
6

Summary

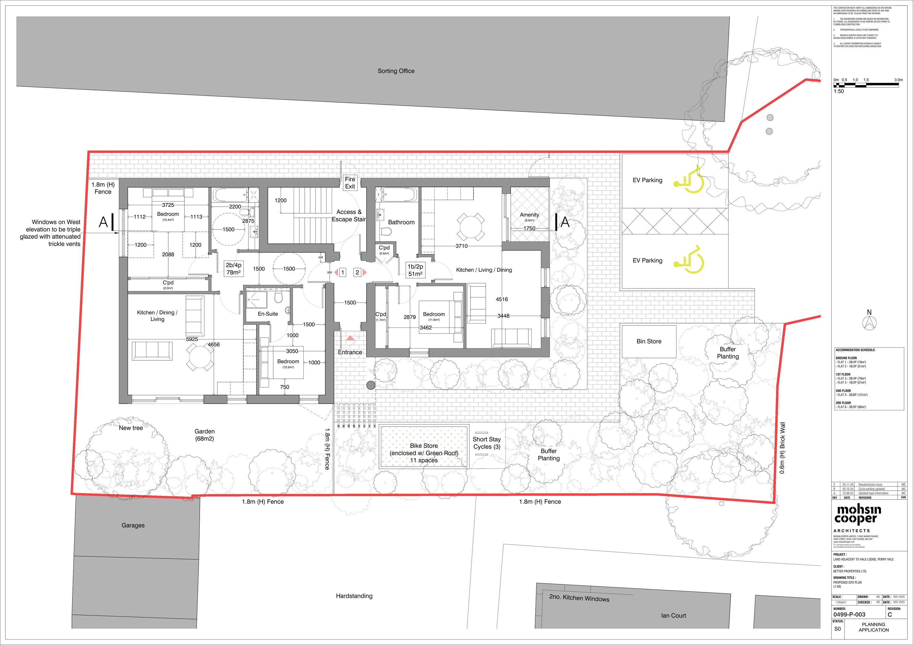
Construct four-storey building providing six self-contained flats with parking, cycles and landscaping.

Full Proposal

Construction of 4 storey building to provide 6 self-contained flats and amenity space, the provision of car parking and cycle spaces, together with refuse storage and landscaping and all associated works on land adjacent to Vale Lodge, Perry Vale SE23.

Documents

Aboricultural -report
Case Copy Documents
Not archived · Council Link
Air quality statement
Case Copy Drawings
Not archived · Council Link
Application formd
Application Form
Not archived · Council Link
Arboricultural strategy
Case Copy Drawings
Not archived · Council Link
Biodivesty net gain
Case Copy Documents
Not archived · Council Link
Comments
Case Copy Documents
Not archived · Council Link
Construction method plan
Case Copy Drawings
Not archived · Council Link
Construction method statement
Case Copy Documents
Not archived · Council Link
Consultee comment
Case Copy Documents
Not archived · Council Link
Daylight report
Case Copy Documents
Not archived · Council Link
Design and access statemen
Case Copy Documents
Not archived · Council Link
Existing topographical survey
Case Copy Drawings
Not archived · Council Link
Location & blocked plan
Case Copy Drawings
Not archived · Council Link
Metric readings
Case Copy Documents
Not archived · Council Link
Noise and vibration impact assessment
Case Copy Documents
Not archived · Council Link
Planning statement final
Case Copy Documents
Not archived · Council Link
Plannting report
Case Copy Documents
Not archived · Council Link
Pre ecological assessment report
Case Copy Drawings
Not archived · Council Link
Proposed 2gf & 3gf plan
Case Copy Drawings
Not archived · Council Link
Proposed coloured site plan
Case Copy Drawings
Not archived · Council Link
Case Copy Drawings
Archived · Council Link
Case Copy Drawings
Archived · Council Link
Proposed ground floor plans
Case Copy Drawings
Not archived · Council Link
Proposed north and west elevation
Case Copy Drawings
Not archived · Council Link
Proposed north and west elevation
Case Copy Drawings
Not archived · Council Link
Proposed north and west elevation
Case Copy Drawings
Not archived · Council Link
Proposed roof plan & section aa
Case Copy Drawings
Not archived · Council Link
Case Copy Drawings
Archived · Council Link
Case Copy Drawings
Archived · Council Link
Proposed south & east elevation
Case Copy Drawings
Not archived · Council Link
Proposed south & east elevation cloured
Case Copy Drawings
Not archived · Council Link
Proposed south & east elevation cloured
Case Copy Drawings
Not archived · Council Link
Transport statement
Case Copy Documents
Not archived · Council Link
Tree planting
Case Copy Drawings
Not archived · Council Link

Take Action

Make your voice heard. Authorities need to hear from people who support new homes.

✉️ Write Email in Support View on Council Portal