← Back to Lichfield District Council
Status
Decided
Change of use
Summary
Alter and extend office to create two 2-bedroom apartments, retaining ground-floor office space.
Full Proposal
Alteration and extension of an office building to create 2 new 2-bedroom residential apartment on the first floor and second floor while altering the layout for the retained office space on the ground floor
Documents
4054 - 23 lombard street lichfield - design and access statement and heritage im
Design and Access Statement
4054-01c-existing floor plans sheet 1 of 2
Existing Plans / Elevations
4054-02c-existing floor plans sheet 2 of 2
Existing Plans / Elevations
4054-03c-existing elevations sheet 1of 2
Existing Plans / Elevations
4054-04c-existing elevations sheet 2 of 2
Existing Plans / Elevations
4054-05c-demo floor plans sheet 1 of 2
Existing Plans / Elevations
4054-06c-demo floor plans sheet 2 of 2
Existing Plans / Elevations
4054-11a-courtyard visual
Additional Information
4054-12a-existing site block plan.pdf
Site Layout Plan
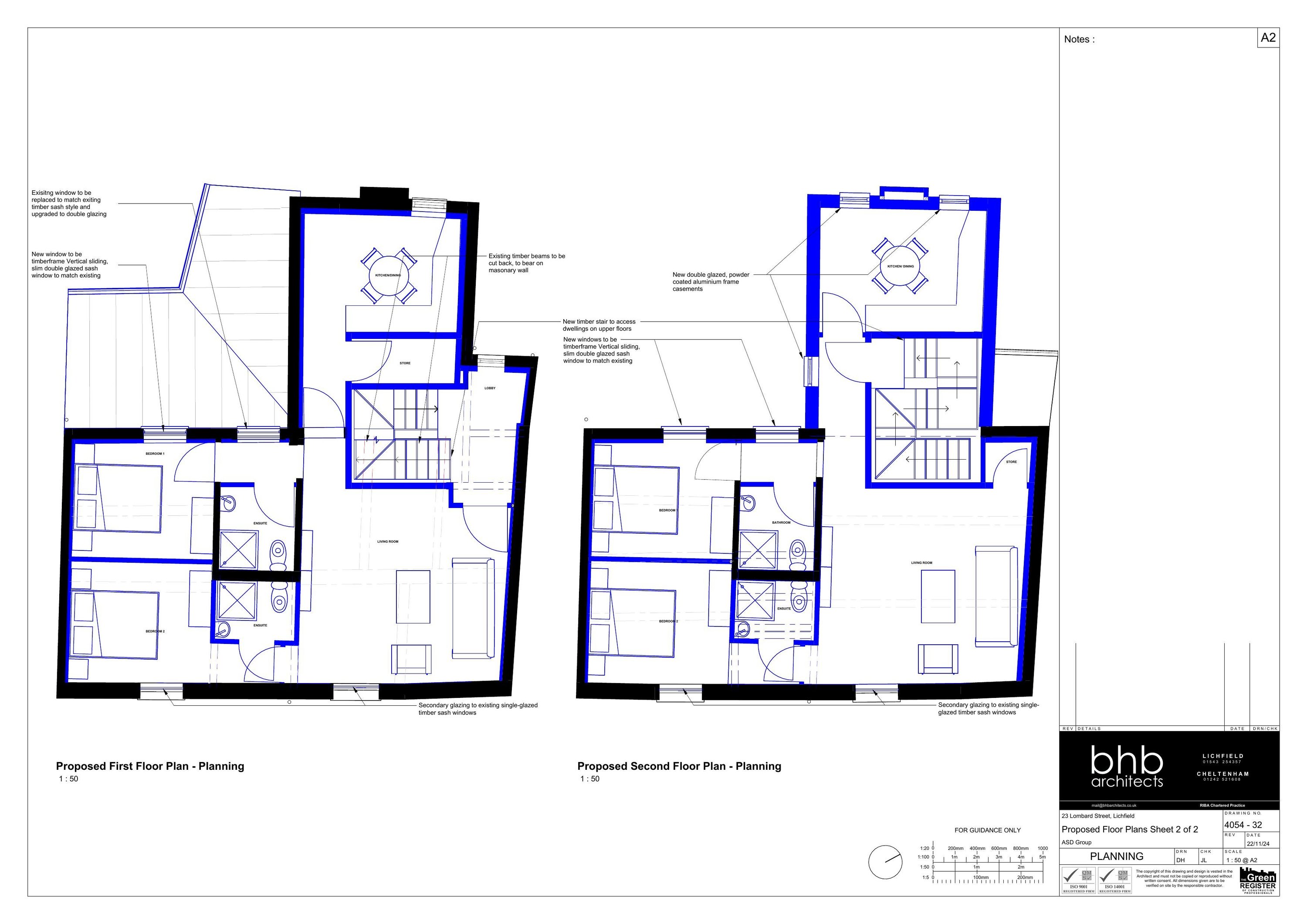
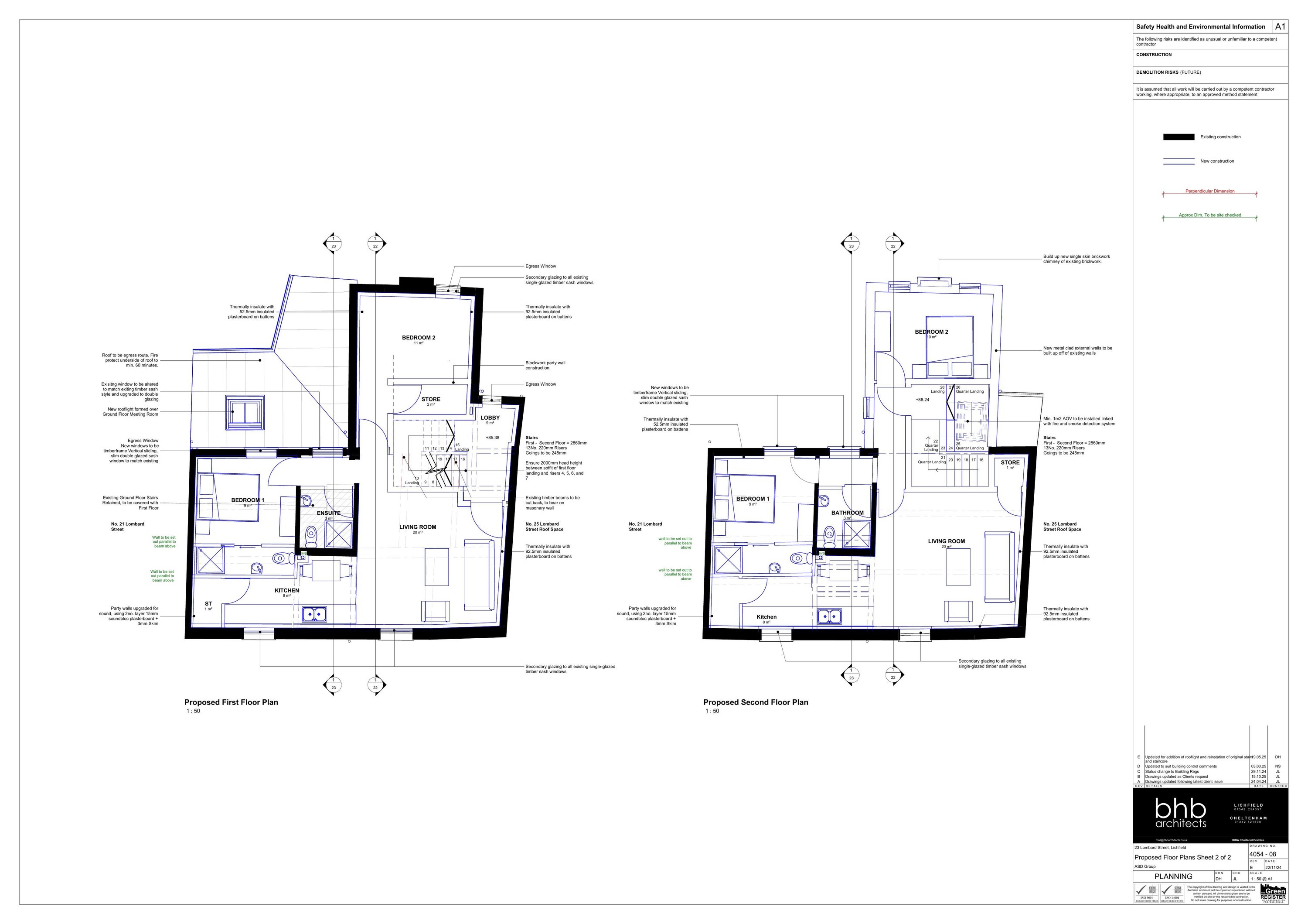
Proposed Plans / Elevations
Proposed Plans / Elevations
4054-33-proposed elevation sheet 1 of 2
Proposed Plans / Elevations
4054-34-proposed elevation sheet 2 of 2
Proposed Plans / Elevations
4054_sustainability statement_rev a
Additional Information
_ conservation officer - ldc
Consultation Responses
_ ecology manager - ldc
Consultation Responses
_ ecology manager - ldc
Consultation Responses
_ ecology manager - ldc
Consultation Responses
_ environmental health officer - ldc
Consultation Responses
_ joint waste officer-ldc
Consultation Responses
_ lichfield city council planning
Consultation Responses
_staffordshire highways
Consultation Responses
Amended application form
Application Form
Approved materials
Conditions - Supporting Information
Approved materials
Conditions - Supporting Information
Disch decision notice
Conditions - Decision Letter
Emergence survey
Ecological Survey / Reports
Ful decision
Decision Notice
Planning report final 1135698.pdf
Planning Report
Pra 23 lombard street lichfield
Ecological Survey / Reports
Proposed elevations
Amended Plans
Proposed roof section
Amended Plans
Staffordshire county council highways
Consultation Responses
Staircase section
Amended Plans
Take Action
Make your voice heard. Authorities need to hear from people who support new homes.