← Back to Lichfield District Council

Status

Decided Listed building
Received
16 Jan 2025
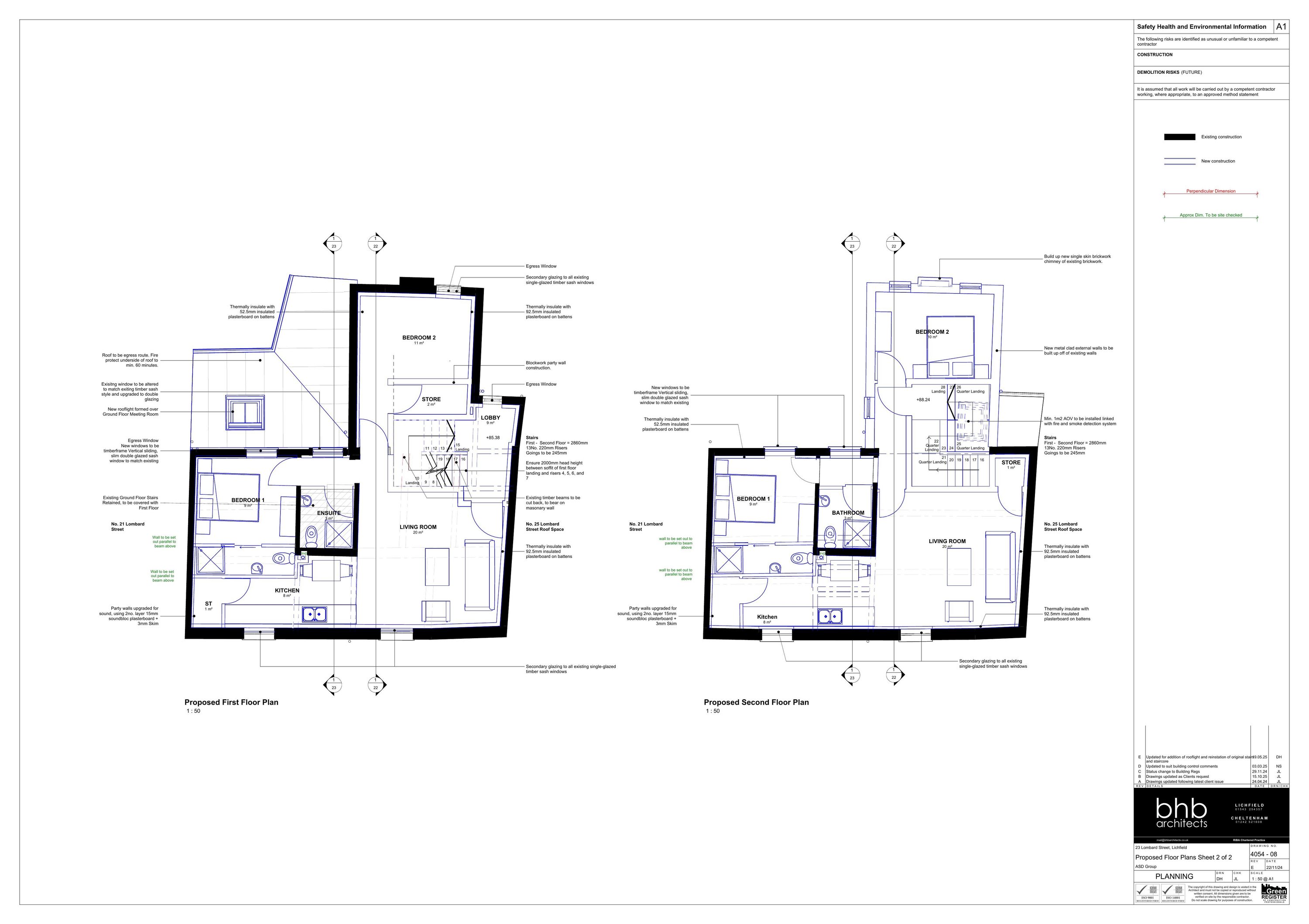
New dwellings
2

Summary

Listed building alterations/extensions to create two 2-bedroom apartments in existing office building.

Full Proposal

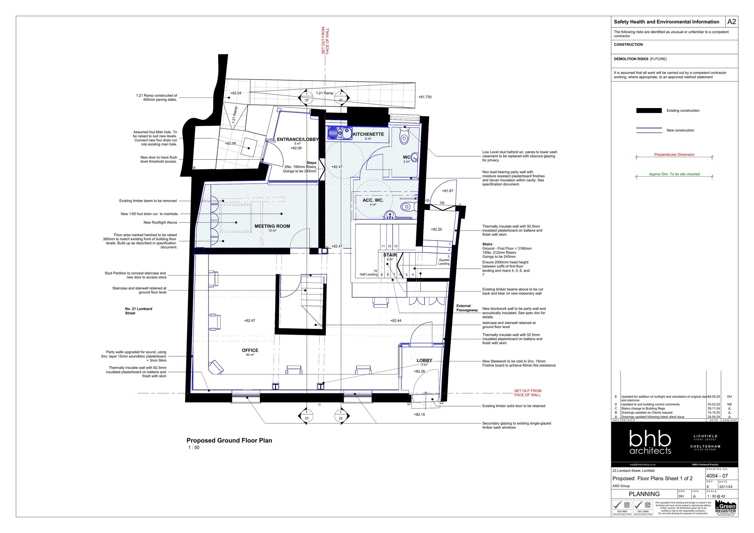
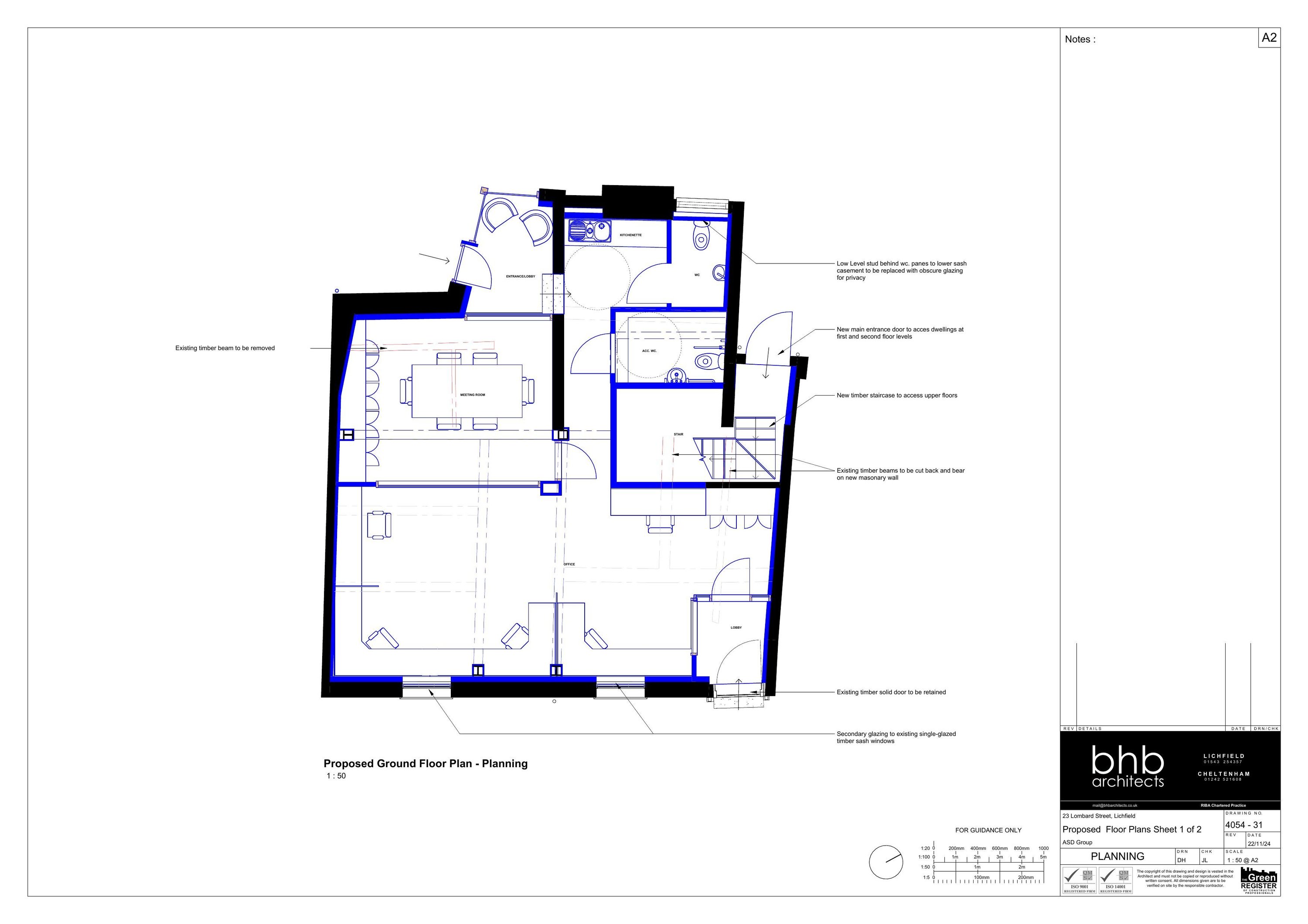
Works to listed building to enable the alteration and extension of an office building to create 2 new 2-bedroom residential apartment on the first floor and second floor while altering the layout for the retained office space on the ground floor

Documents

4054 - 23 lombard street lichfield - design and access statement and heritage im
Design and Access Statement
Not archived · Council Link
Location / Site Plan
Archived · Council Link
4054-01c-existing floor plans sheet 1 of 2
Existing Plans / Elevations
Not archived · Council Link
4054-02c-existing floor plans sheet 2 of 2
Existing Plans / Elevations
Not archived · Council Link
4054-03c-existing elevations sheet 1of 2
Existing Plans / Elevations
Not archived · Council Link
4054-04c-existing elevations sheet 2 of 2
Existing Plans / Elevations
Not archived · Council Link
4054-05c-demo floor plans sheet 1 of 2
Existing Plans / Elevations
Not archived · Council Link
4054-06c-demo floor plans sheet 2 of 2
Existing Plans / Elevations
Not archived · Council Link
4054-11a-courtyard visual
Additional Information
Not archived · Council Link
4054-12a-existing site block plan.pdf
Site Layout Plan
Not archived · Council Link
4054-13a-proposed site block plan.pdf
Site Layout Plan
Not archived · Council Link
Proposed Plans / Elevations
Archived · Council Link
Proposed Plans / Elevations
Archived · Council Link
4054-33-proposed elevation sheet 1 of 2
Proposed Plans / Elevations
Not archived · Council Link
4054-34-proposed elevation sheet 2 of 2
Proposed Plans / Elevations
Not archived · Council Link
4054_sustainability statement_rev a
Additional Information
Not archived · Council Link
_ conservation officer - ldc
Consultation Responses
Not archived · Council Link
_ lichfield city council planning
Consultation Responses
Not archived · Council Link
Amended application form
Application Form
Not archived · Council Link
Emergence survey
Ecological Survey / Reports
Not archived · Council Link
Lbc decision
Decision Notice
Not archived · Council Link
Planning report final 1135713.pdf
Planning Report
Not archived · Council Link
Pra 23 lombard street lichfield
Ecological Survey / Reports
Not archived · Council Link
Proposed elevations
Amended Plans
Not archived · Council Link
Amended Plans
Archived · Council Link
Amended Plans
Archived · Council Link
Proposed roof section
Amended Plans
Not archived · Council Link
Staircase section
Amended Plans
Not archived · Council Link
Staircase section
Amended Plans
Not archived · Council Link

Take Action

Make your voice heard. Authorities need to hear from people who support new homes.

✉️ Write Email in Support View on Council Portal