← Back to Lichfield District Council

Status

Decided Change of use
Received
24 Sep 2025
New dwellings
4

Summary

Conversion of existing barns into four dwellings with gardens and associated works.

Full Proposal

Conversion of the existing barns into four dwellings with gardens and all other associated works

Documents

03 existing buildings.pdf
Existing Plans / Elevations
Not archived · Council Link
13813 burntwood - atc data
Transport Assessment
Not archived · Council Link
240904 topographical survey
Topographical Survey
Not archived · Council Link
2860.new.structural report.pdf
Structural Survey
Not archived · Council Link
3394 pea with pra - the barn burntwood revised redline
Ecological Survey / Reports
Not archived · Council Link
_ arboricultural officer - ldc
Consultation Responses
Not archived · Council Link
_ burntwood town council
Consultation Responses
Not archived · Council Link
_ ecology manager - ldc
Consultation Responses
Not archived · Council Link
_ environmental health officer - ldc
Consultation Responses
Not archived · Council Link
_ joint waste officer-ldc
Consultation Responses
Not archived · Council Link
_ spatial policy and delivery officer - ldc
Consultation Responses
Not archived · Council Link
_ staffordshire county council rights of way
Consultation Responses
Not archived · Council Link
_ staffordshire highways
Consultation Responses
Not archived · Council Link
_national england
Consultation Responses
Not archived · Council Link
_natural england
Consultation Responses
Not archived · Council Link
Applicationformredacted
Application Form
Not archived · Council Link
Clpd 253 p01 landscape masterplan_27.08.2025
Landscaping
Not archived · Council Link
Cou decision
Decision Notice
Not archived · Council Link
Cover letter
Covering Letter
Not archived · Council Link
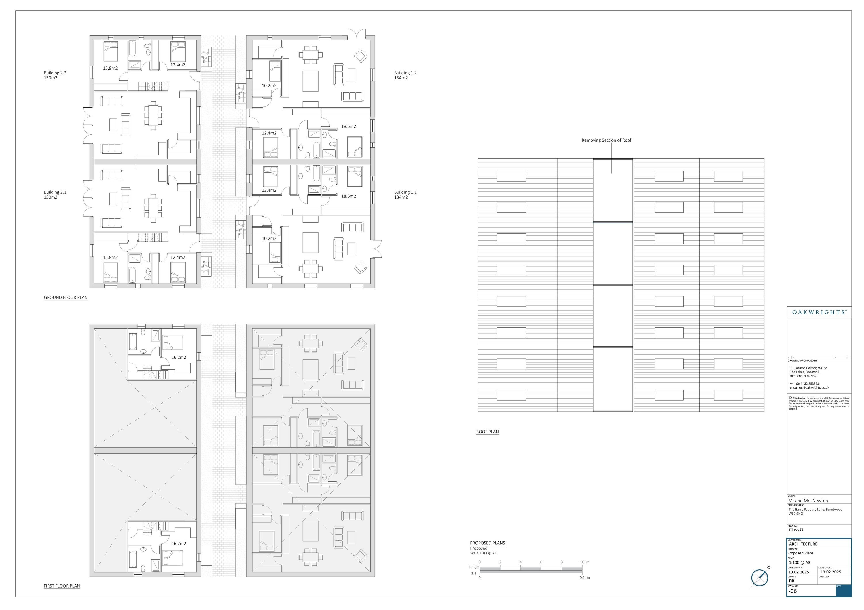
Proposed Plans / Elevations
Archived · Council Link
Dr 07 proposed elevations
Proposed Plans / Elevations
Not archived · Council Link
Draft unilateral undertaking
Legal Agreement
Not archived · Council Link
Hra
Ecological Survey / Reports
Not archived · Council Link
Existing Plans / Elevations
Archived · Council Link
Existing Plans / Elevations
Archived · Council Link
Proposed Plans / Elevations
Archived · Council Link
Proposed Plans / Elevations
Archived · Council Link
New.07.proposed elevations.pdf
Proposed Plans / Elevations
Not archived · Council Link
Planning report final 1186721.pdf
Planning Report
Not archived · Council Link
Planning statement
Planning Statement
Not archived · Council Link
Revised redline statutory metric_the barn burntwood
Biodiversity metric calculation tool
Not archived · Council Link

Take Action

Make your voice heard. Authorities need to hear from people who support new homes.

✉️ Write Email in Support View on Council Portal