← Back to Luton Borough Council

Status

PER - Application Permitted Change of use
Received
07 Nov 2024
New dwellings
0

Full Proposal

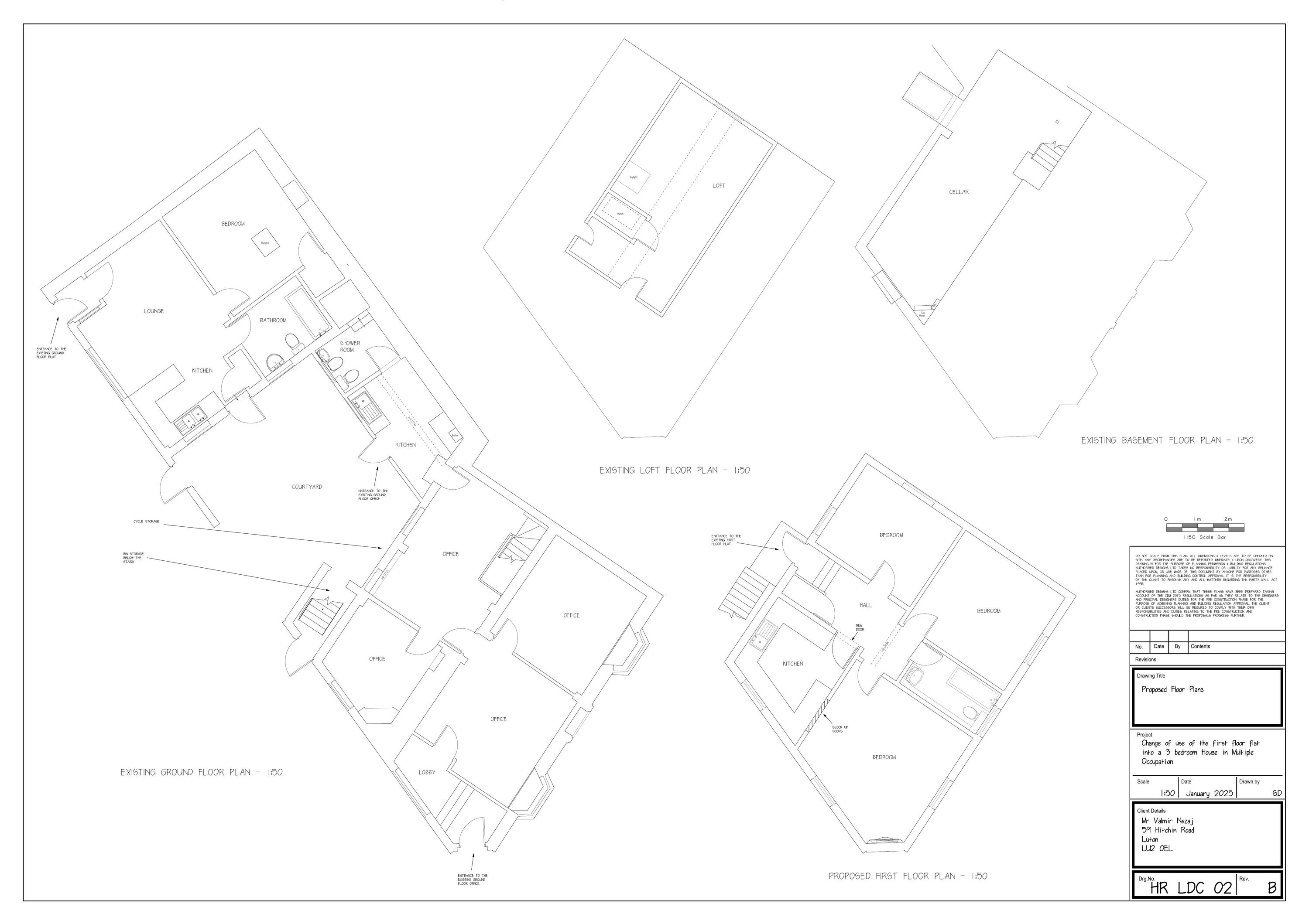
Conversion and change of use of a two bedroom flat on the first floor to a three bedroom, three person (HMO) House in Multiple Occupation (Class C4)

Documents

APPLICATION FORM
Application Form
Not archived · Council Link
Case Officer Report
Case Officer Report
Not archived · Council Link
DC01 - DESIGN & ACCESS STATEMENT
Current Docs
Not archived · Council Link
Decision Notice
Decision Notice
Not archived · Council Link
ENVIRONMENTAL PROTECTION
Comment - Consultee
Not archived · Council Link
Current Docs - AMENDED
Archived · Council Link
Current Docs - AMENDED
Archived · Council Link
HR-LDC-01A - EXISTING FLOOR PLANS
Current Docs
Not archived · Council Link
Current Docs - SUPERSEDED
Archived · Council Link
HR-LDC-03A - SITE LOCATION & BLOCK PLANS
Current Docs - SUPERSEDED
Not archived · Council Link

Take Action

Make your voice heard. Authorities need to hear from people who support new homes.

✉️ Write Email in Support View on Council Portal