← Back to Luton Borough Council

Status

PER - Application Permitted New housing
Received
26 Nov 2024
New dwellings
1

Full Proposal

Erection of a single and two storey building to form a three bedroom dwellinghouse bedroom with two onsite carparking space and associated bin and bike storage.

Documents

340 24/002A - EXISTING BLOCK PLAN
Current Docs
Not archived · Council Link
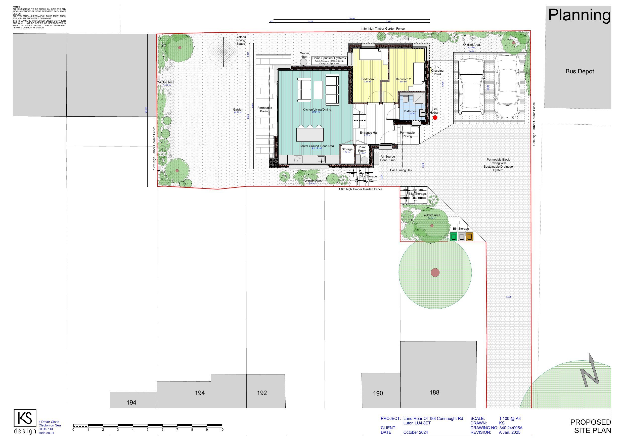
340 24/003A - PROPOSED BLOCK PLAN
Current Docs
Not archived · Council Link
340 24/010 - PROPOSED GROUND FLOOR PLAN
Current Docs
Not archived · Council Link
340 24/011 - PROPOSED FIRST FLOOR PLAN
Current Docs
Not archived · Council Link
340 24/012 - PROPOSED ROOF PLAN
Current Docs
Not archived · Council Link
340 24/020 - PROPOSED EAST ELEVATION
Current Docs
Not archived · Council Link
340 24/021 - PROPOSED SOUTH ELEVATION
Current Docs
Not archived · Council Link
340 24/022 - PROPOSED WEST ELEVATION
Current Docs
Not archived · Council Link
340 24/023 - PROPOSED NORTH ELEVATION
Current Docs
Not archived · Council Link
340 24/025 - PROPOSED STREET SCENE
Current Docs
Not archived · Council Link
340 24/030 - PROPOSED SECTION AA
Current Docs
Not archived · Council Link
340 24/031 - PROPOSED SECTION BB
Current Docs
Not archived · Council Link
340 24/050 - PARKING PLAN
Current Docs
Not archived · Council Link
340 24/051A - SITE WASTE MANAGEMENT PLAN
Current Docs
Not archived · Council Link
340 24/060 - SITE PHOTOS 1
Current Docs
Not archived · Council Link
340 24/062 - SITE PHOTOS 2
Current Docs
Not archived · Council Link
APPEAL FORM
Appeal Form
Not archived · Council Link
APPLICATION FORM
Application Form
Not archived · Council Link
CASE OFFICER REPORT
Case Officer Report
Not archived · Council Link
DC01 - DESIGN & ACCESS STATEMENT
Current Docs
Not archived · Council Link
DC02 - PLANNING STATEMENT
Current Docs
Not archived · Council Link
DC03 - BIODIVERSITY GAIN PLAN
Current Docs
Not archived · Council Link
DC04 - BIODIVERSITY MAPS
Current Docs
Not archived · Council Link
DC05 - METRIC
Current Docs
Not archived · Council Link
DECISION NOTICE
Decision Notice
Not archived · Council Link
Ecology Comments
Comment - Consultee
Not archived · Council Link
Parking Plan RevA Jan25
Current Docs - AMENDED
Not archived · Council Link
Proposed 1st Floor Plan RevA Jan25
Current Docs - AMENDED
Not archived · Council Link
Proposed Bock Plan RevB Jan25
Current Docs - AMENDED
Not archived · Council Link
Proposed East Elevation RevA Jan25
Current Docs - AMENDED
Not archived · Council Link
Proposed Ground Floor Plan RevA Jan25
Current Docs - AMENDED
Not archived · Council Link
Proposed North Elevation RevA Jan25
Current Docs - AMENDED
Not archived · Council Link
Proposed Roof Plan RevA Jan25
Current Docs - AMENDED
Not archived · Council Link
Proposed Section AA RevA Jan25
Current Docs - AMENDED
Not archived · Council Link
Proposed Section BB RevA Jan25
Current Docs - AMENDED
Not archived · Council Link
Proposed Site Elevation RevA Jan25
Current Docs - AMENDED
Not archived · Council Link
Current Docs - AMENDED
Archived · Council Link
Proposed South Elevation RevA Jan25
Current Docs - AMENDED
Not archived · Council Link
Proposed West Elevation RevA Jan25
Current Docs - AMENDED
Not archived · Council Link
Site Waste Management Plan RevB Jan25
Current Docs - AMENDED
Not archived · Council Link
Tree Survey Report
Current Docs - ADDITIONAL
Not archived · Council Link

Take Action

Make your voice heard. Authorities need to hear from people who support new homes.

✉️ Write Email in Support View on Council Portal