← Back to Luton Borough Council

Status

PER - Application Permitted Change of use
Received
27 Feb 2025
New dwellings
0

Summary

Change of ground-floor use from Class E(a) commercial back to one dwelling with raised roof.

Full Proposal

Change of use of the ground floor from Class E(a) (commercial) back to Class C3 (dwellinghouse), alongside a proposed raised roof with dormer windows.

Documents

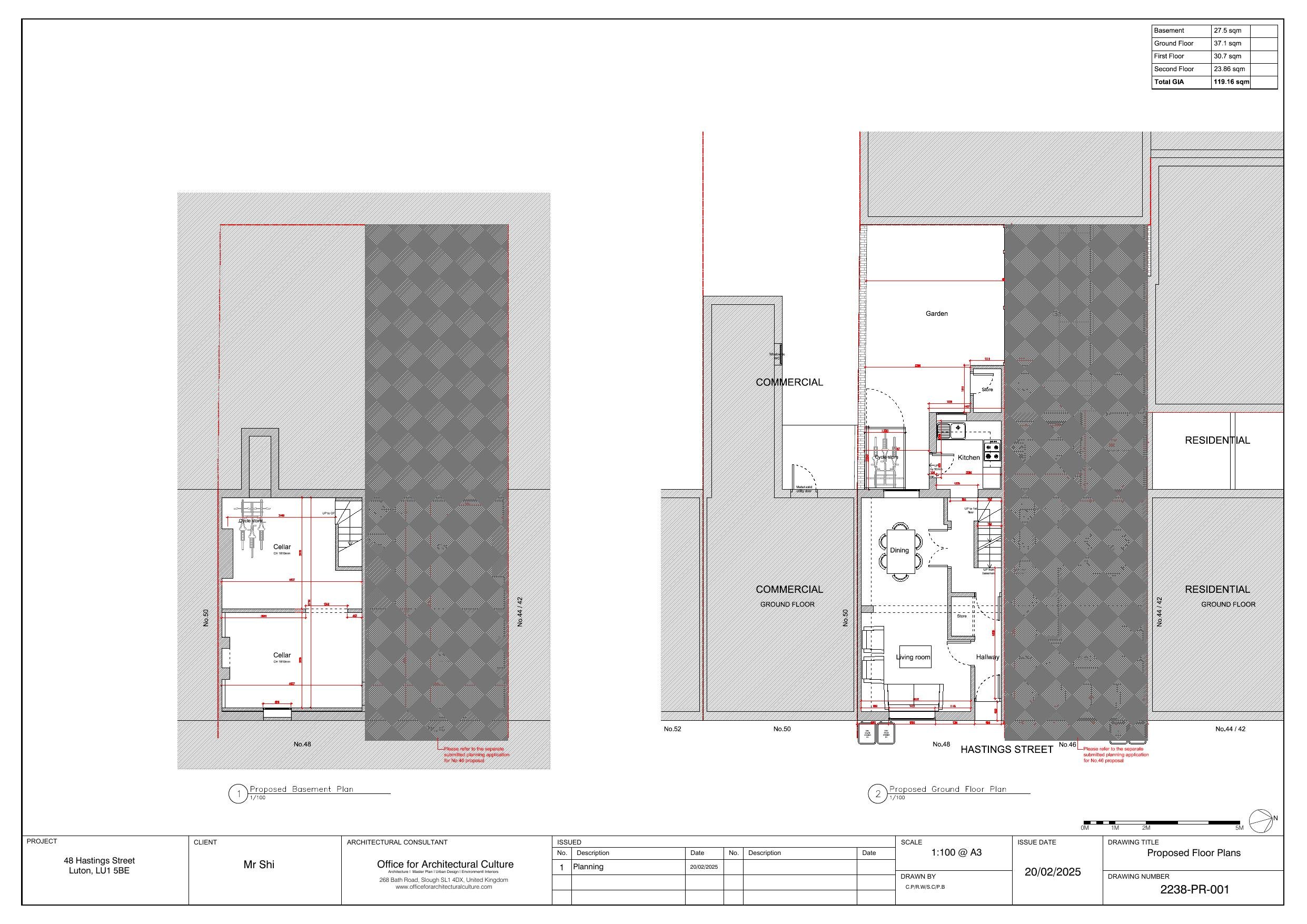
2238-EX-001 EXISTING FLOOR PLANS
Current Docs
Not archived · Council Link
2238-EX-002 EXISTING FIRST FLOOR & LOFT PLANS
Current Docs
Not archived · Council Link
2238-EX-003 EXISTING ROOF PLAN
Current Docs
Not archived · Council Link
2238-EX-101 EXISTING FRONT & REAR ELEVATION
Current Docs
Not archived · Council Link
2238-EX-102 EXISTING ELEVATION/SECTIONS
Current Docs
Not archived · Council Link
Current Docs
Archived · Council Link
2238-PR-002 PROPOSED FIRST & SECOND FLOOR PLAN
Current Docs
Not archived · Council Link
2238-PR-003 PROPOSED ROOF PLAN
Current Docs
Not archived · Council Link
2238-PR-101 PROPOSED FRONT & REAR ELEVATION
Current Docs
Not archived · Council Link
2238-PR-102 PROPOSED SECTION/ELEVATIONS
Current Docs
Not archived · Council Link
2238-PR-SBP PROPOSED BLOCK PLAN
Current Docs
Not archived · Council Link
APPLICATION FORM
Application Form
Not archived · Council Link
CASE OFFICER REPORT
Case Officer Report
Not archived · Council Link
DC01 BNG EXEMPTION STATEMENT
Current Docs
Not archived · Council Link
DC02 DESIGN AND ACCESS STATEMENT
Current Docs
Not archived · Council Link
DC03 PARKING PROVISION
Current Docs
Not archived · Council Link
Current Docs
Archived · Council Link
DC05 PLANNING STATEMENT
Current Docs
Not archived · Council Link
DC06 WASTE MANAGEMENT PLAN
Current Docs
Not archived · Council Link
DECISION NOTICE
Decision Notice
Not archived · Council Link

Take Action

Make your voice heard. Authorities need to hear from people who support new homes.

✉️ Write Email in Support View on Council Portal