← Back to Luton Borough Council

Status

Awaiting decision New housing
Received
04 Apr 2025
New dwellings
14

Summary

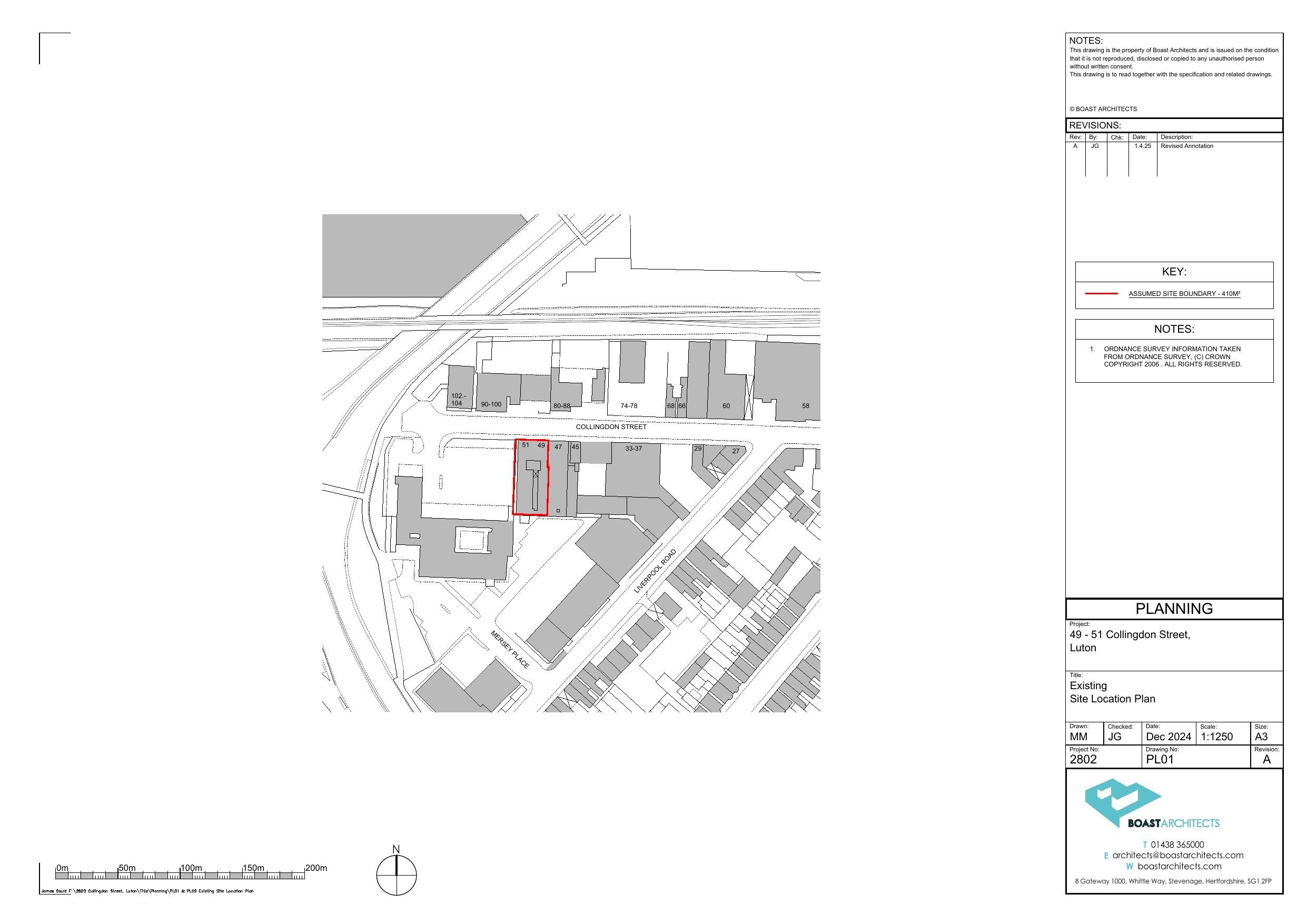
Six-storey residential development of 14 apartments with associated amenity spaces.

Full Proposal

Erection of a six storey residential development with set-back upper storeys and associated amenity spaces, comprising of 14 apartments; four No. 1 bed and ten No. 2 bed

Documents

2802-DESIGN AND ACCESS STATEMENT-1-15
Current Docs
Not archived · Council Link
2802-DESIGN AND ACCESS STATEMENT-16-32
Current Docs
Not archived · Council Link
2802-DESIGN AND ACCESS STATEMENT-PART 1
Current Docs
Not archived · Council Link
2802-DESIGN AND ACCESS STATEMENT-PART 2
Current Docs
Not archived · Council Link
2802-PL05- SITE CONSTRAINTS AND OPPORTUNITIES PLAN
Current Docs
Not archived · Council Link
Current Docs
Archived · Council Link
2802-PL07A PROPOSED STREET SCENES
Current Docs
Not archived · Council Link
2802-PL07B PROPOSED STREET SCENES
Current Docs
Not archived · Council Link
2802-PL08B PROPOSED GROUND FLOOR AND FIRST FLOOR PLAN
Current Docs
Not archived · Council Link
2802-PL08D PROPOSED GROUND FLOOR AND FIRST FLOOR PLAN
Current Docs
Not archived · Council Link
2802-PL09A PROPOSED SECOND FLOOR AND THIRD FLOOR PLAN
Current Docs
Not archived · Council Link
2802-PL09C PROPOSED SECOND FLOOR AND THIRD FLOOR PLAN
Current Docs
Not archived · Council Link
2802-PL10A PROPOSED FOURTH FLOOR AND FIFTH FLOOR PLAN
Current Docs
Not archived · Council Link
2802-PL10C PROPOSED FOURTH FLOOR AND FIFTH FLOOR PLAN
Current Docs
Not archived · Council Link
2802-PL11C PROPOSED ELEVATIONS
Current Docs
Not archived · Council Link
2802-PL11E PROPOSED ELEVATIONS
Current Docs
Not archived · Council Link
2802-PL12- 3D VISUAL LOOKING SOUTH-WEST ON COLLINGDON STREET
Current Docs
Not archived · Council Link
2802-PL12A 3D VISUAL LOOKING SOUTH-WEST ON COLLINGDON STREET
Current Docs
Not archived · Council Link
2802-PL13- 3D VISUAL LOOKING SOUTH-EAST ON COLLINGDON STREET
Current Docs
Not archived · Council Link
2802-PL13A 3D VISUAL LOOKING SOUTH-EAST ON COLLINGDON STREET
Current Docs
Not archived · Council Link
2802-PL14- 3D VISUAL LOOKING NORTH-EAST ON MERCY PLACE
Current Docs
Not archived · Council Link
2802-PL14A 3D VISUAL LOOKING NORTH-EAST ON MERCY PLACE
Current Docs
Not archived · Council Link
2802-PL15- 3D VISUAL LOOKING NORTH-WEST ON MERCY PLACE
Current Docs
Not archived · Council Link
2802-PL15A 3D VISUAL LOOKING NORTH-WEST ON MERCY PLACE
Current Docs
Not archived · Council Link
2802-PL16- 3D VISUAL FROM MERSEY PLACE
Current Docs
Not archived · Council Link
2802-PL16A 3D VISUAL FROM MERSEY PLACE
Current Docs
Not archived · Council Link
3D Visual Looking North-East on Mercy Place
Current Docs - AMENDED
Not archived · Council Link
3D Visual Looking South-East on Collingdon Street
Current Docs - AMENDED
Not archived · Council Link
3D Visual Looking South-West on Collingdon St
Current Docs - AMENDED
Not archived · Council Link
APPLICATION FORM
Application Form
Not archived · Council Link
BEDFORDSHIRE FIRE AND RESCUE COMMENTS
Comment - Consultee
Not archived · Council Link
Cover letter
Current Docs - ADDITIONAL
Not archived · Council Link
Daylight Report
Current Docs - ADDITIONAL
Not archived · Council Link
DC01 SURFACE WATER DRAINAGE STRATEGY
Current Docs
Not archived · Council Link
DC02 AIR QUALITY ASSESSMENT
Current Docs
Not archived · Council Link
DC03 LANDSCAPE STATEMENT
Current Docs
Not archived · Council Link
DC04 REPORT AND VALUATION
Current Docs
Not archived · Council Link
DC05 NOISE RISK ASSESSMENT
Current Docs
Not archived · Council Link
DC06 PLANNING STATEMENT
Current Docs
Not archived · Council Link
DC07 ARBORICULTURAL ASSESSMENT
Current Docs
Not archived · Council Link
DC08 ENERGY & SUSTAINABILITY STATEMENT
Current Docs
Not archived · Council Link
Education comments
Comment - Consultee
Not archived · Council Link
ENVIRONMENTAL PROTECTION
Comment - Consultee
Not archived · Council Link
ENVIRONMENTAL PROTECTION
Comment - Consultee
Not archived · Council Link
Flood Water Correspondence
Current Docs - ADDITIONAL
Not archived · Council Link
Flood Water Correspondence
Current Docs - ADDITIONAL
Not archived · Council Link
LLFA comments
Comment - Consultee
Not archived · Council Link
LP/4951CSLB/020B LANDSCAPE PLAN
Current Docs
Not archived · Council Link
PL07C Proposed Street Scene
Current Docs - AMENDED
Not archived · Council Link
Proposed Block Plan
Current Docs - AMENDED
Not archived · Council Link
Proposed Elevations
Current Docs - AMENDED
Not archived · Council Link
Proposed Ground Floor & First Floor Pla
Current Docs - AMENDED
Not archived · Council Link
Proposed Roof Plan
Current Docs - AMENDED
Not archived · Council Link
Proposed Second Floor & Third Floor Pla
Current Docs - AMENDED
Not archived · Council Link
Current Docs - AMENDED
Archived · Council Link
Proposed Site Section
Current Docs - AMENDED
Not archived · Council Link
TPP/4951CSLB/010B TREE PROTECTION PLAN - TPP_4951CSLB_010 B
Current Docs
Not archived · Council Link

Take Action

Make your voice heard. Authorities need to hear from people who support new homes.

✉️ Write Email in Support View on Council Portal