← Back to Luton Borough Council

Status

PER - Application Permitted House extension
Received
13 May 2025
New dwellings
0

Summary

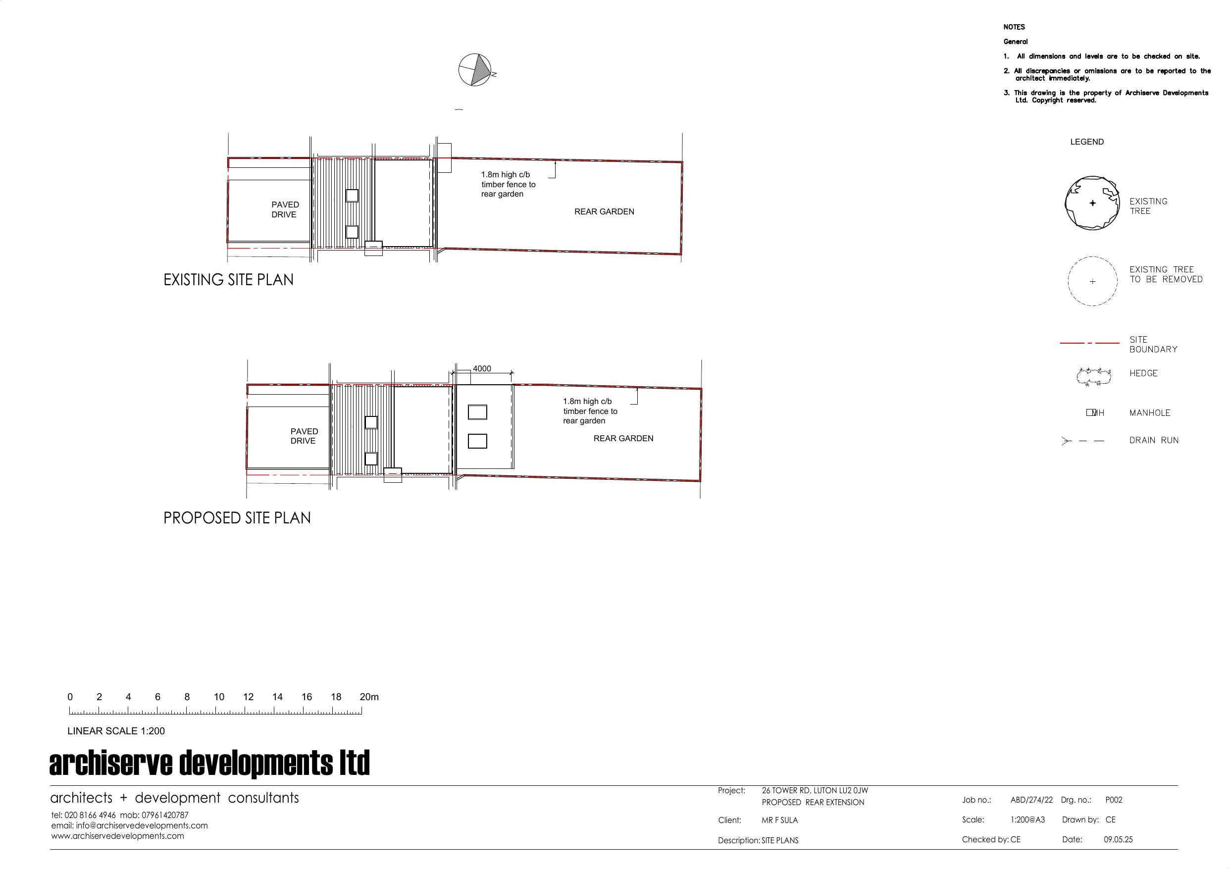
Erection of a single storey rear extension to existing house.

Full Proposal

Erection of a single storey rear extension to existing house.

Documents

APPLICATION FORM
Application Form
Not archived · Council Link
Current Docs - SUPERSEDED
Archived · Council Link
CASE OFFICER REPORT
Case Officer Report
Not archived · Council Link
DECISION NOTICE
Decision Notice
Not archived · Council Link
DESIGN AND ACCESS STATEMENT
Current Docs
Not archived · Council Link
ELEVATIONS EXISTING
Current Docs
Not archived · Council Link
ELEVATIONS PROPOSED
Current Docs - SUPERSEDED
Not archived · Council Link
FORM_1_CIL_ADDITIONAL_INFORMATION_3
The BackGround Papers
Not archived · Council Link
GROUND AND FIRST FLOOR PLANS EXISTING
Current Docs
Not archived · Council Link
GROUND AND FIRST FLOOR PLANS PROPOSED
Current Docs - SUPERSEDED
Not archived · Council Link
LOCATION PLAN
Current Docs
Not archived · Council Link
Current Docs - AMENDED
Archived · Council Link
P101A-PROPOSED FLOORS PLAN
Current Docs - AMENDED
Not archived · Council Link
P102A-EXISTING AND PROPOSED ROOF PLAN
Current Docs - AMENDED
Not archived · Council Link
P201A-PROPOSED ELEVATIONS
Current Docs - AMENDED
Not archived · Council Link
PARKING PROVISION PLAN
Current Docs
Not archived · Council Link
ROOF PLANS EXISTING AND PROPOSED
Current Docs - SUPERSEDED
Not archived · Council Link
SECTIONS EXISTING AND PROPOSED
Current Docs - SUPERSEDED
Not archived · Council Link

Take Action

Make your voice heard. Authorities need to hear from people who support new homes.

✉️ Write Email in Support View on Council Portal