← Back to Luton Borough Council

Status

REF - Application Refused New housing
Received
09 Jul 2025
New dwellings
7

Summary

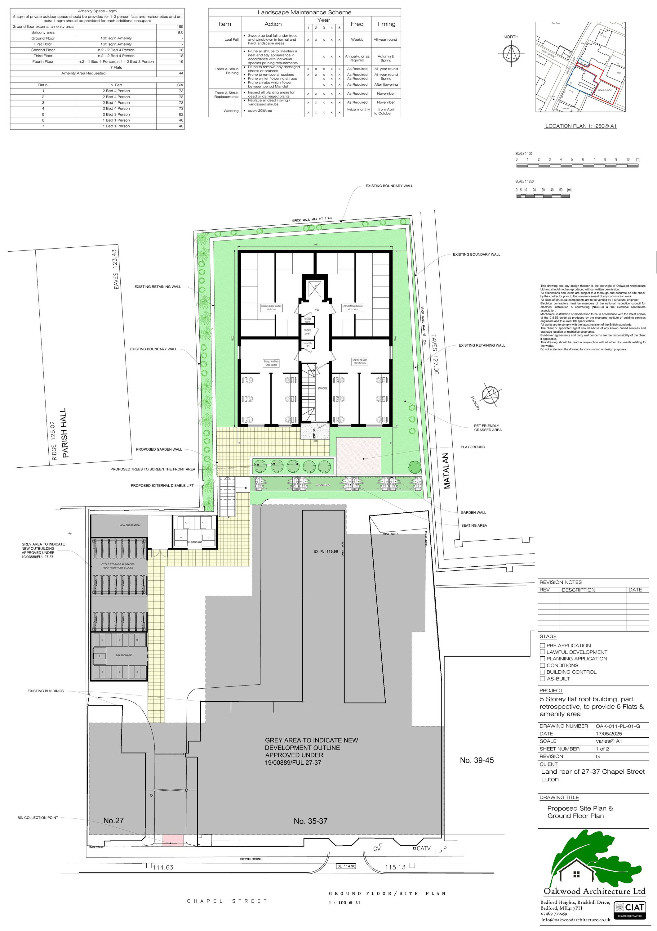
Erect five-storey building providing seven flats with resident office, storage, gym and laundry.

Full Proposal

Erection of a five-storey flat roof building to provide 7no. flats (5 x 2 bedroom and 2 x 1 bed) with associated office space for residents, storage and shared gym and laundry facilities - Part retrospective.

Documents

21020 101-REVC DRAINAGE PROPOSALS
Current Docs
Not archived · Council Link
APPLICATION FORM
Application Form
Not archived · Council Link
Case Officer Report
Case Officer Report
Not archived · Council Link
DC01 HERITAGE STATEMENT
Current Docs
Not archived · Council Link
DC02 DESIGN AND ACCESS STATEMENT
Current Docs
Not archived · Council Link
DC03 TECHNICAL SPECIFICATION
Current Docs
Not archived · Council Link
DC04 HYDRAULIC CHARACTERISTICS
Current Docs
Not archived · Council Link
DC05 DRAINAGE REPORT
Current Docs
Not archived · Council Link
DC06 DAYLIGHT & SUNLIGHT ASSESSMENT
Current Docs
Not archived · Council Link
DC07 NOISE IMPACT ASSESSMENT
Current Docs
Not archived · Council Link
Decision Notice
Decision Notice
Not archived · Council Link
ENVIRONMENTAL PROTECTION COMMENTS
Comment - Consultee
Not archived · Council Link

Take Action

Make your voice heard. Authorities need to hear from people who support new homes.

✉️ Write Email in Support View on Council Portal