← Back to Luton Borough Council

Status

Awaiting decision Change of use
Received
10 Oct 2025
New dwellings
0

Summary

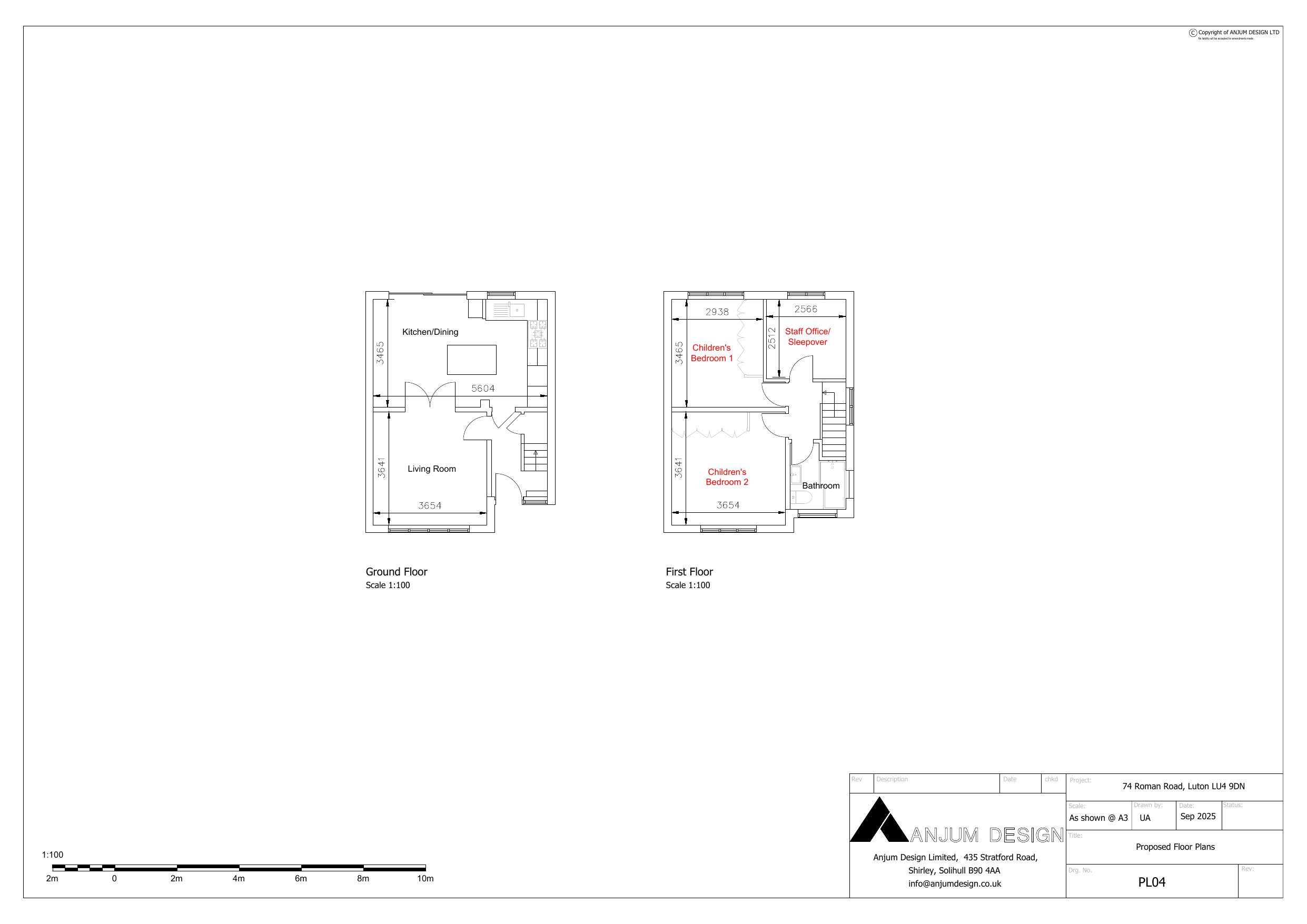
Change of a three-bedroom house to a children's care home (Class C2) for up to two children.

Full Proposal

Conversion and change of use from a 3 bedroom dwellinghouse (Class C3) to a children's care home Class (C2 residential institution) for up to two children.

Documents

APPLICATION FORM
Application Form
Not archived · Council Link
DC01 DESIGN AND ACCESS STATEMENT
Current Docs
Not archived · Council Link
DC02 WASTE MANAGEMENT PLAN
Current Docs
Not archived · Council Link
ENVIRONMENTAL PROTECTION COMMENTS
Comment - Consultee
Not archived · Council Link
Current Docs
Archived · Council Link
PL02 BLOCK PLAN
Current Docs
Not archived · Council Link
PL03 EXISTING FLOOR PLANS
Current Docs
Not archived · Council Link
Current Docs
Archived · Council Link

Take Action

Make your voice heard. Authorities need to hear from people who support new homes.

✉️ Write Email in Support View on Council Portal