← Back to Luton Borough Council

Status

Awaiting decision Change of use
Received
28 Nov 2025
New dwellings
0

Full Proposal

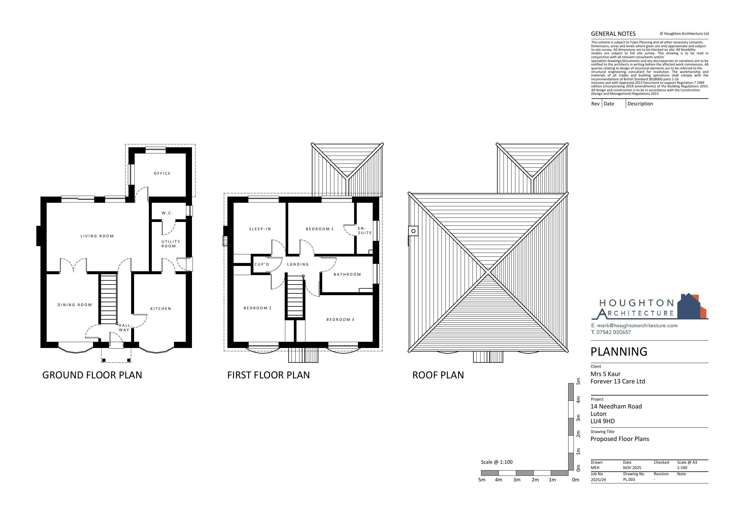
Conversion and change of use of existing dwelling (Use Class C3(a)) to use as a children's home (Use Class C2) for up to three children and erection of associated bin and cycle stores.

Documents

APPLICATION FORM REDACTED
Application Form
Not archived · Council Link
DC01 - PLANNING, DESIGN AND ACCESS STATEMENT
Current Docs
Not archived · Council Link
DC02 - OPERATIONAL MANAGEMENT PLAN NO.14
Current Docs - SUPERSEDED
Not archived · Council Link
DC02 - REV C - OPERATIONAL MANAGEMENT PLAN.
Current Docs - AMENDED
Not archived · Council Link
DC02 -REV - OPERATIONAL MANAGEMENT PLAN.P
Current Docs - SUPERSEDED
Not archived · Council Link
DC02 -REV B - OPERATIONAL MANAGEMENT PLAN
Current Docs - SUPERSEDED
Not archived · Council Link
NOTICE 1 ARTICLE 13 SIGNED
Current Docs
Not archived · Council Link
PL.001 - EXISTING SITE AND LOCATION PLANS
Current Docs - SUPERSEDED
Not archived · Council Link
PL.002 - EXISTING FLOOR PLANS
Current Docs
Not archived · Council Link
Current Docs
Archived · Council Link
Current Docs - SUPERSEDED
Archived · Council Link
PL.005 - PROPOSED BIN STORE
Current Docs
Not archived · Council Link
PL.006 - PROPOSED BICYCLE STORE
Current Docs
Not archived · Council Link
PL001 -A - EXISTING SITE & LOCATION PLANS
Current Docs - AMENDED
Not archived · Council Link
Current Docs - AMENDED
Archived · Council Link

Take Action

Make your voice heard. Authorities need to hear from people who support new homes.

✉️ Write Email in Support View on Council Portal