← Back to Luton Borough Council

Status

Awaiting decision House extension
Received
22 Dec 2025
New dwellings
0

Full Proposal

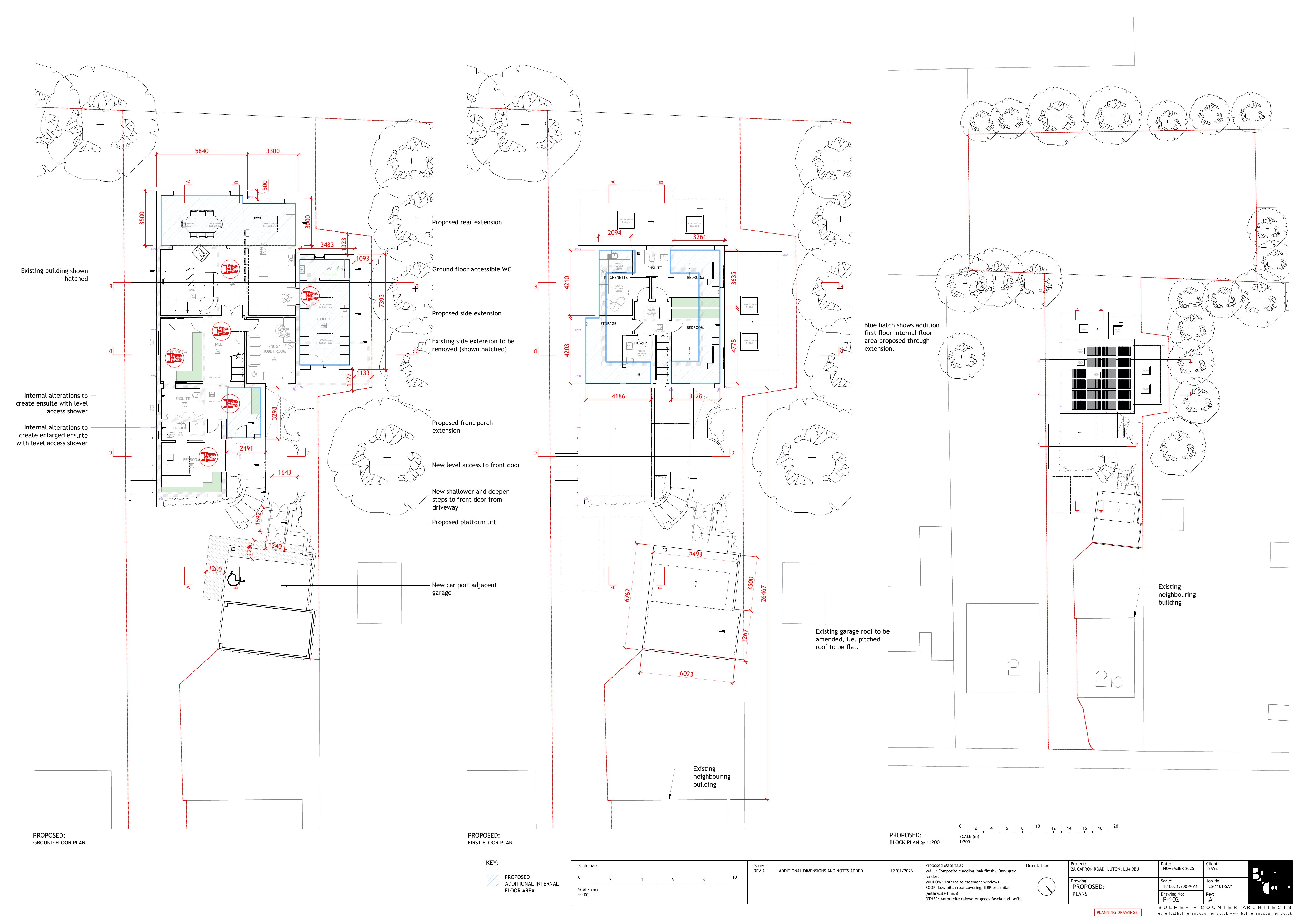
Erection of a first floor extension with monopitched roof, three rooflights and solar panels, single storey side and rear extensions, front/side porch, a platform lift and level access, alteration of roofs to monopitched, a carport attached to garage and alteration of garage roof to flat roof. Installation of external insulation, render and timber cladding and alterations to fenestration of dwellinghouse.

Documents

APPLICATION FORM
Application Form
Not archived · Council Link
Current Docs
Archived · Council Link
E-101 - EXISTING BLOCK PLAN
Current Docs
Not archived · Council Link
E-102 - EXISTING PLANS AND ELEVATIONS
Current Docs
Not archived · Council Link
E-103 - EXISTING SECTIONS
Current Docs
Not archived · Council Link
P-101A - PROPOSED BLOCK PLAN
Current Docs
Not archived · Council Link
Current Docs
Archived · Council Link
P-103A - PROPOSED ELEVATIONS
Current Docs
Not archived · Council Link
P-104 - PROPOSED ELEVATIONS - COLOUR
Current Docs
Not archived · Council Link
P-105A - PROPOSED SECTIONS
Current Docs
Not archived · Council Link
P-106 - STREETSCENES
Current Docs
Not archived · Council Link
P-107 - PV PANELS
Current Docs
Not archived · Council Link
PL01 - DESIGN AND ACCESS STATEMENT
Current Docs
Not archived · Council Link

Take Action

Make your voice heard. Authorities need to hear from people who support new homes.

✉️ Write Email in Support View on Council Portal