← Back to Luton Borough Council

Status

Awaiting decision Change of use
Received
Last month
New dwellings
0

Full Proposal

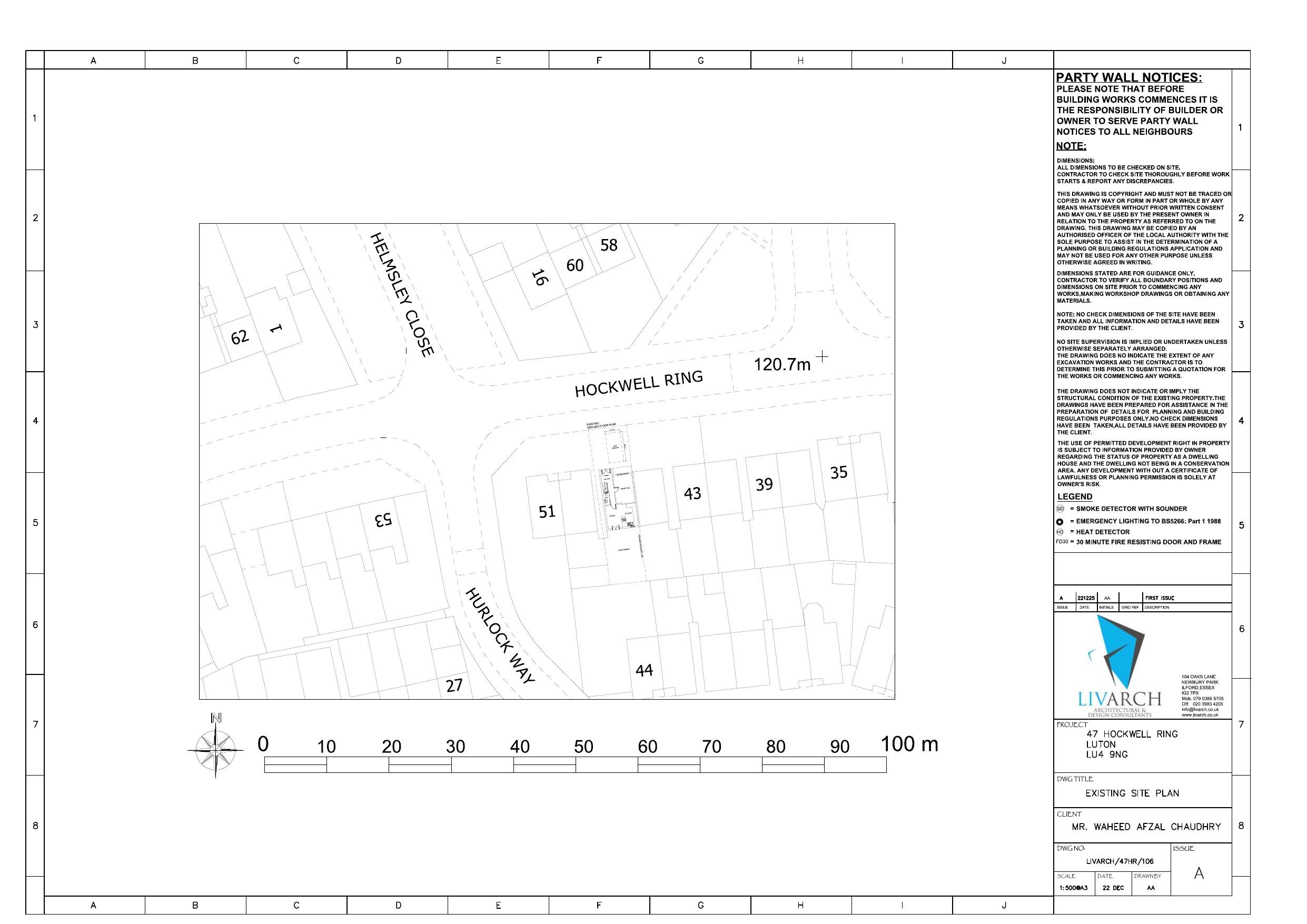
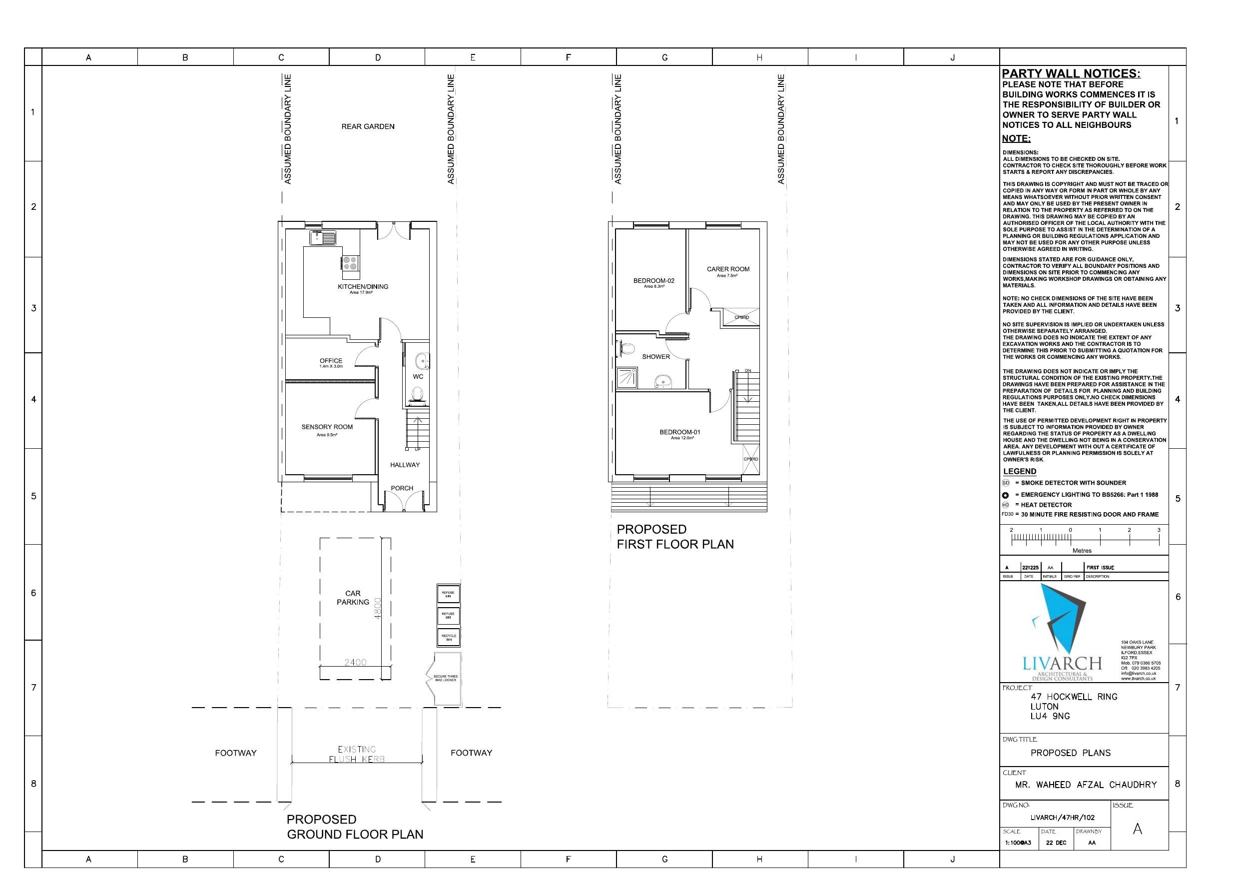
Change of use from C3 dwellinghouse to a children's residential care home (Use Class C2) for up to two children (aged 8-17 years) with care provided by a minimum of two staff members at all times, including one waking night and one sleep-in staff overnight, operating on a rota basis.

Documents

APPLICATION FORM
Application Form
Not archived · Council Link
ENVIRONMENTAL PROTECTION COMMENTS
Comment - Consultee
Not archived · Council Link
LIVARCH/47HR/101/A - EXISTING FLOOR PLANS
Current Docs
Not archived · Council Link
LIVARCH/47HR/103/A - EXISTING ELEVATIONS
Current Docs
Not archived · Council Link
LIVARCH/47HR/104/A - PROPOSED ELEVATIONS
Current Docs
Not archived · Council Link
LIVARCH/47HR/105/A - ROOF PLANS
Current Docs
Not archived · Council Link
LIVARCH/47HR/108/A - PARKING PLANS
Current Docs
Not archived · Council Link
PL01 - DESIGN AND ACCESS STATEMENT
Current Docs
Not archived · Council Link
PL02 - PLANNING STATEMENT
Current Docs
Not archived · Council Link
PL03 - STAFFING MANAGEMENT PLAN
Current Docs
Not archived · Council Link
PL04 - WASTE MANAGEMENT PLAN
Current Docs
Not archived · Council Link

Take Action

Make your voice heard. Authorities need to hear from people who support new homes.

✉️ Write Email in Support View on Council Portal