← Back to Maidstone Borough Council

Status

Decided Change of use
Received
n/a
New dwellings
0

Summary

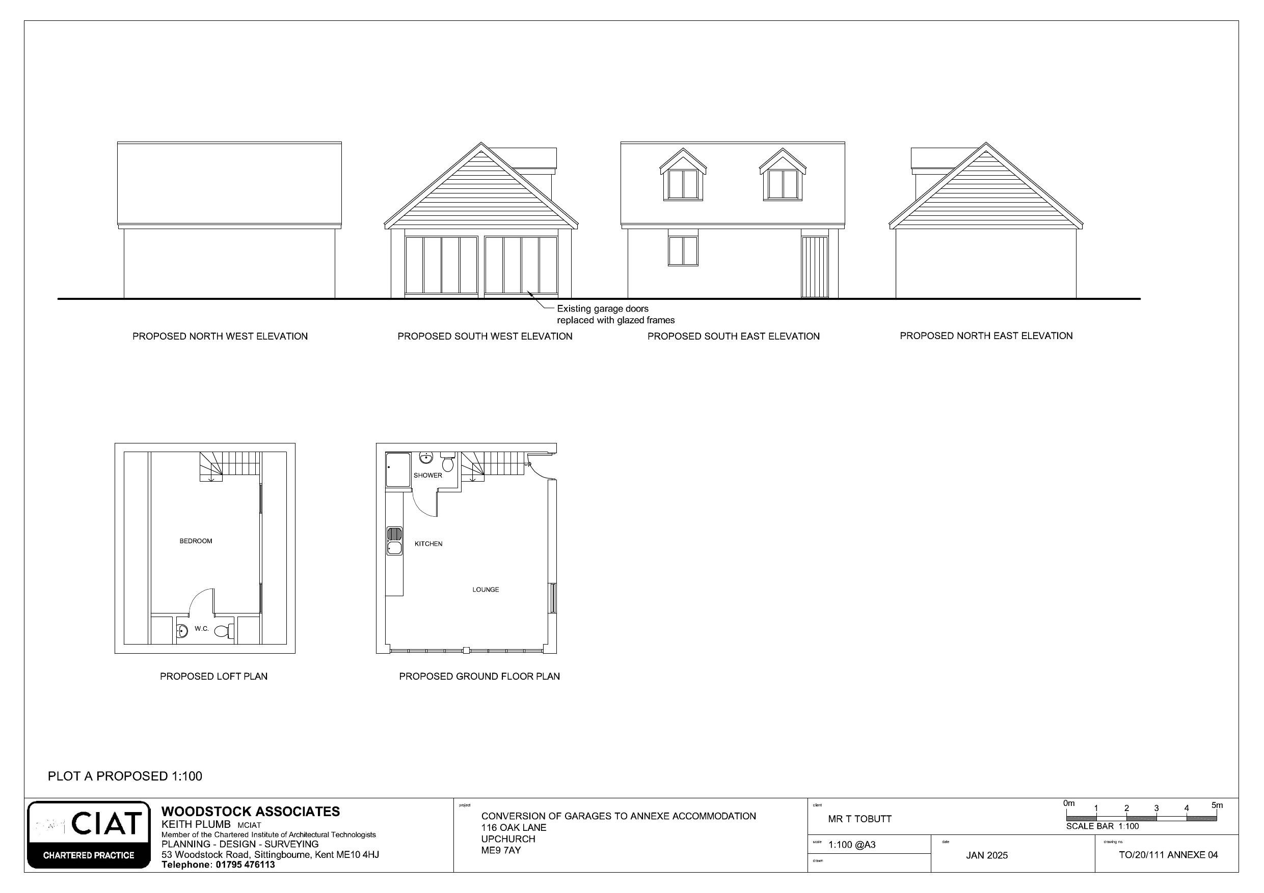
Conversion of two detached garages into annexe accommodation ancillary to plots A and B.

Full Proposal

Conversion of 2 no. detached garages into annexe accommodation ancillary to dwellinghouses plots A and B.

Documents

. Upchurch Parish Council
Consultee Comment
Not archived · Council Link
ApplicationFormRedacted
Application Details
Not archived · Council Link
Block Plan Showing Parking
Amendment
Not archived · Council Link
Delegated Report
Delegated Report
Not archived · Council Link
Existing and Proposed Site Location and Block Plans
Superseded Documents
Not archived · Council Link
Existing Floor Plans and Elevations Plot A
Plan / Drawing
Not archived · Council Link
Existing Floor Plans and Elevations Plot B
Plan / Drawing
Not archived · Council Link
Granted/ Permitted
Decision
Not archived · Council Link
KCC Highways and Transportation
Consultee Comment
Not archived · Council Link
Natural England
Consultee Comment
Not archived · Council Link
Natural England - Annex A
Consultee Comment
Not archived · Council Link
Online Comment
Neighbour Comments
Not archived · Council Link
Online Comment
Neighbour Comments
Not archived · Council Link

Take Action

Make your voice heard. Authorities need to hear from people who support new homes.

✉️ Write Email in Support View on Council Portal