← Back to Maidstone Borough Council

Status

Awaiting decision New housing
Received
n/a
New dwellings
18

Summary

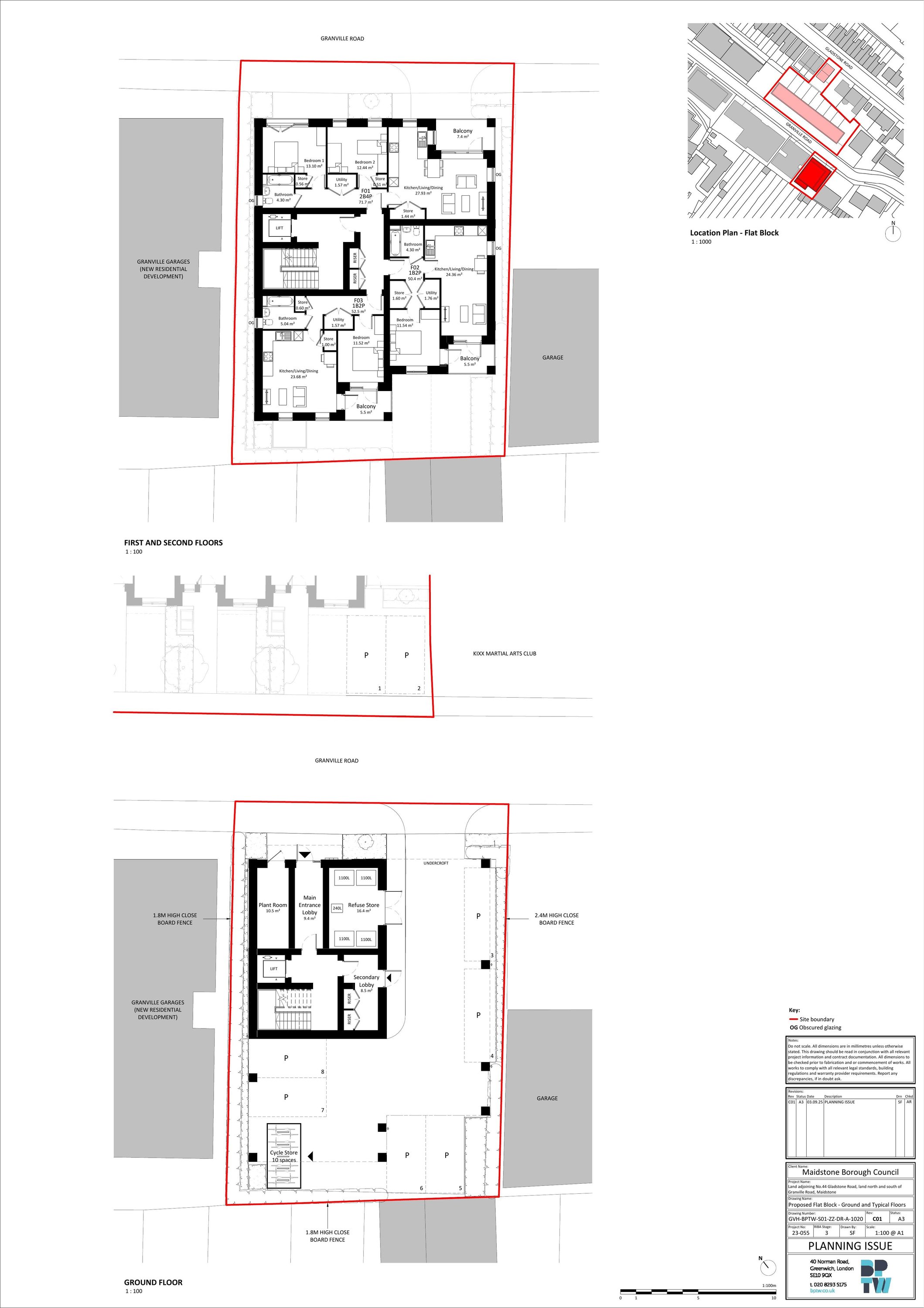
Demolition and erection of 18 dwellings comprising terraces, detached house and eight apartments, with parking.

Full Proposal

Demolition of existing buildings and the erection of 9 two storey terrace dwellings, 1 two storey detached dwelling, four storey building with 8 apartments (18 dwellings in total), and parking.

Documents

. Environmental Protection Team MIDKENT Environmental Health
Consultee Comment
Not archived · Council Link
Acoustic Assessment
Supporting Documents
Not archived · Council Link
Additional Information
Additional Information
Not archived · Council Link
Additional Information
Additional Information
Not archived · Council Link
Advert in Paper - Kent Messenger
Planning Notice
Not archived · Council Link
and Drainage Strategy
Flood Risk Assessment
Not archived · Council Link
ApplicationFormRedacted
Application Details
Not archived · Council Link
Asbestos Refurbishment and Demolition Survey
Supporting Documents
Not archived · Council Link
Biodiversity Gain Plan
Biodiversity Report
Not archived · Council Link
BNG metric
Biodiversity Report
Not archived · Council Link
CIL Form 1
Section 106 / CIL Document
Not archived · Council Link
Daylight and Sunlight Assessment
Supporting Documents
Not archived · Council Link
Design and Access Statement
Design and Access Statement
Not archived · Council Link
Ecological Assessment
Supporting Documents
Not archived · Council Link
Energy Statement
Supporting Documents
Not archived · Council Link
Existing Elevations 1 Kingsland North
Plan / Drawing
Not archived · Council Link
Existing Elevations 2 Kingsland South
Plan / Drawing
Not archived · Council Link
Existing First Floor Plan
Plan / Drawing
Not archived · Council Link
Existing Second Floor Plan
Plan / Drawing
Not archived · Council Link
Plan / Drawing
Archived · Council Link
Plan / Drawing
Archived · Council Link
Historic Environment Desk Based Assessment
Heritage Statement
Not archived · Council Link
Including Affordable Housing Statement
Planning Statement
Not archived · Council Link
KCC Ecological Officer
Consultee Comment
Not archived · Council Link
KCC Ecology
Consultee Comment
Not archived · Council Link
KCC Ecology
Consultee Comment
Not archived · Council Link
KCC Flood And Water Management
Consultee Comment
Not archived · Council Link
KCC Highways and Transportation
Consultee Comment
Not archived · Council Link
KCC Highways and Transportation
Consultee Comment
Not archived · Council Link
KCC Infrastructure Appendix 1
Consultee Comment
Not archived · Council Link
KCC Infrastructure Appendix 1A
Consultee Comment
Not archived · Council Link
KCC Infrastructure Appendix 2
Consultee Comment
Not archived · Council Link
KCC Infrastructure Appendix 3
Consultee Comment
Not archived · Council Link
KCC Infrastructure Appendix 4
Consultee Comment
Not archived · Council Link
KCC Parks and Open Spaces
Consultee Comment
Not archived · Council Link
Kent Police
Consultee Comment
Not archived · Council Link
Landscape Planting Plan
Plan / Drawing
Not archived · Council Link
Online Comment
Neighbour Comments
Not archived · Council Link
Online Comment
Neighbour Comments
Not archived · Council Link
Overshadowing Assessment Part 1
Supporting Documents
Not archived · Council Link
Overshadowing Assessment Part 2
Supporting Documents
Not archived · Council Link
Phase 1 Environmental Report
Supporting Documents
Not archived · Council Link
Phase 1 Environmental Report Part 2
Supporting Documents
Not archived · Council Link
Phase 1 Environmental Report Part 3
Supporting Documents
Not archived · Council Link
Phase 1 Environmental Report Part 4
Supporting Documents
Not archived · Council Link
Phase 1 Environmental Report Part 5
Supporting Documents
Not archived · Council Link
Photo Schedule
Photographs
Not archived · Council Link
Planning Drawings List
Supporting Documents
Not archived · Council Link
Proposed Elevations
Plan / Drawing
Not archived · Council Link
Proposed Elevations
Plan / Drawing
Not archived · Council Link
Proposed Elevations
Plan / Drawing
Not archived · Council Link
Plan / Drawing
Archived · Council Link
Proposed Sections
Plan / Drawing
Not archived · Council Link
Proposed Sections
Plan / Drawing
Not archived · Council Link
Proposed Sections
Plan / Drawing
Not archived · Council Link
Plan / Drawing
Archived · Council Link
Proposed Street Floor Plans
Plan / Drawing
Not archived · Council Link
Proposed Street Roof Plans
Plan / Drawing
Not archived · Council Link
Proposed Street Scene
Plan / Drawing
Not archived · Council Link
Proposed Street Scenes
Plan / Drawing
Not archived · Council Link
Proposed Street Second Floor Plan
Plan / Drawing
Not archived · Council Link
Proposed Third Floor and Roof Plans
Plan / Drawing
Not archived · Council Link
Plan / Drawing
Archived · Council Link
Southern Water
Consultee Comment
Not archived · Council Link
Southern Water Plan
Consultee Comment
Not archived · Council Link
Stage 2 Fire Strategy Report
Supporting Documents
Not archived · Council Link
Stage 2 Report
Supporting Documents
Not archived · Council Link
Statement of Community Involvement
Supporting Documents
Not archived · Council Link
Strategic Development
Consultee Comment
Not archived · Council Link
Technical Note
Supporting Documents
Not archived · Council Link
Transport Statement
Transport Assessment
Not archived · Council Link
Uk Power Networks
Consultee Comment
Not archived · Council Link
Viability Assessment
Supporting Documents
Not archived · Council Link
Viability Review for LPA
Correspondence
Not archived · Council Link

Take Action

Make your voice heard. Authorities need to hear from people who support new homes.

✉️ Write Email in Support View on Council Portal