← Back to Maidstone Borough Council

Status

Awaiting decision New housing
Received
n/a
New dwellings
20

Summary

Change of use and erection of 20 residential units with 40% affordable housing.

Full Proposal

Change of use of land and erection of 20(no) residential units comprising 12(no) houses and a single block comprising 8(no) self-contained flats (with communal garden); and on site provision of 40% affordable housing and associated works including play area and land level changes, with vehicle access to and from Forest Hill

Documents

. Environmental Protection Team MIDKENT Environmental Health
Consultee Comment
Not archived · Council Link
. Kent Police
Consultee Comment
Not archived · Council Link
Advert in Paper - Kent Messenger
Planning Notice
Not archived · Council Link
Advert in Paper - Medway Messenger
Planning Notice
Not archived · Council Link
Affordable Housing Statement
Affordable Housing Statement
Not archived · Council Link
ApplicationFormRedacted
Application Details
Not archived · Council Link
Arboricultural Implications Assessment
Arboricultural Report
Not archived · Council Link
CIL Form 1
Section 106 / CIL Document
Not archived · Council Link
Design and Access Statement
Design and Access Statement
Not archived · Council Link
Drainage Strategy
Supporting Documents
Not archived · Council Link
Energy and Sustainability Report
Energy Statement
Not archived · Council Link
Environment Agency
Consultee Comment
Not archived · Council Link
Existing Location and Block Plan
Plan / Drawing
Not archived · Council Link
External Lighting Assessment
Supporting Documents
Not archived · Council Link
Fire Safety Strategy
Supporting Documents
Not archived · Council Link
Flat G and H Second floor and Roof Plan
Plan / Drawing
Not archived · Council Link
Flats A and B Lower Ground Floor Plan
Plan / Drawing
Not archived · Council Link
Flats C and F Ground and First Floor Plan
Plan / Drawing
Not archived · Council Link
House Type D Elevation
Plan / Drawing
Not archived · Council Link
House Type D Proposed Elevation
Plan / Drawing
Not archived · Council Link
Plan / Drawing
Archived · Council Link
House Type E Proposed Elevation
Plan / Drawing
Not archived · Council Link
Plan / Drawing
Archived · Council Link
House Type F Elevation
Plan / Drawing
Not archived · Council Link
House Type F Proposed Elevation
Plan / Drawing
Not archived · Council Link
Plan / Drawing
Archived · Council Link
House Type G Proposed Elevation
Plan / Drawing
Not archived · Council Link
Plan / Drawing
Archived · Council Link
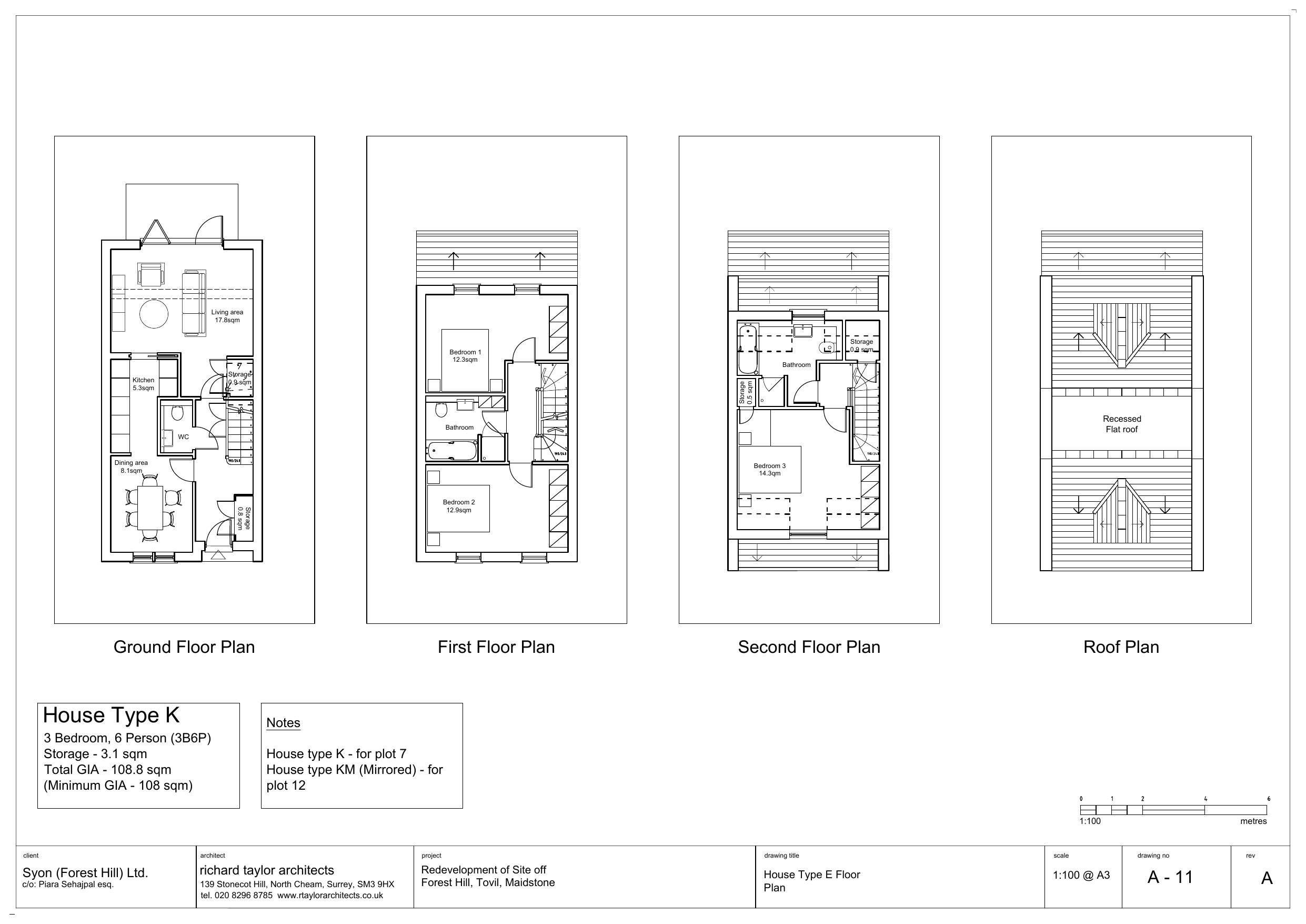
House Type K Proposed Elevation
Plan / Drawing
Not archived · Council Link
Plan / Drawing
Archived · Council Link
KCC Developer Contributions Appendix 1A New School Build Land Costs
Consultee Comment
Not archived · Council Link
KCC Highways and Transportation
Consultee Comment
Not archived · Council Link
KCC Infrastructure
Consultee Comment
Not archived · Council Link
KCC Infrastructure Appendix 1
Consultee Comment
Not archived · Council Link
KCC Infrastructure Appendix 1A
Consultee Comment
Not archived · Council Link
KCC Infrastructure Appendix 2
Consultee Comment
Not archived · Council Link
KCC Infrastructure Appendix 3
Consultee Comment
Not archived · Council Link
KCC Infrastructure Appendix 4
Consultee Comment
Not archived · Council Link
KCC Parks and Open Spaces
Consultee Comment
Not archived · Council Link
MBC Housing
Consultee Comment
Not archived · Council Link
Neighbour Comment
Neighbour Comments
Not archived · Council Link
Neighbour Comment
Neighbour Comments
Not archived · Council Link
Neighbour Comments
Neighbour Comments
Not archived · Council Link
Neighbour Comments
Neighbour Comments
Not archived · Council Link
Noise Impact Assessment
Supporting Documents
Not archived · Council Link
North and North East Elevations for Flats
Plan / Drawing
Not archived · Council Link
Notice Photo
Planning Notice
Not archived · Council Link
Online Comment
Neighbour Comments
Not archived · Council Link
Online Comment
Neighbour Comments
Not archived · Council Link
Online Comment
Neighbour Comments
Not archived · Council Link
Online Comment
Neighbour Comments
Not archived · Council Link
Online Comment
Neighbour Comments
Not archived · Council Link
Online Comment
Neighbour Comments
Not archived · Council Link
Online Comment
Neighbour Comments
Not archived · Council Link
Online Comment
Neighbour Comments
Not archived · Council Link
Online Comment
Neighbour Comments
Not archived · Council Link
Online Comment
Neighbour Comments
Not archived · Council Link
Online Comment
Neighbour Comments
Not archived · Council Link
PEA and BNG Assessment Report
Biodiversity Survey/Report
Not archived · Council Link
Proposed East Site Elevation
Plan / Drawing
Not archived · Council Link
Proposed North and South Site Elevation
Plan / Drawing
Not archived · Council Link
Proposed Site Levels
Plan / Drawing
Not archived · Council Link
Proposed West Site Elevation
Plan / Drawing
Not archived · Council Link
Redevelopment of site-Comparison of Areas
Supporting Documents
Not archived · Council Link
Reptile and Bat Survey and Site Mitigation Proposal
Biodiversity Survey/Report
Not archived · Council Link
Reptile Survey Report Arc Ecology
Biodiversity Survey/Report
Not archived · Council Link
Site Block Plan with Proposed Roof Plan
Plan / Drawing
Not archived · Council Link
Site Investigation and Risk Report 1
Supporting Documents
Not archived · Council Link
Site Investigation and Risk Report 2
Supporting Documents
Not archived · Council Link
Site Investigation and Risk Report 3
Supporting Documents
Not archived · Council Link
Site Investigation and Risk Report 4
Supporting Documents
Not archived · Council Link
Site Investigation and Risk Report 5
Supporting Documents
Not archived · Council Link
Site Investigation and Risk Report 6
Supporting Documents
Not archived · Council Link
Site Investigation and Risk Report 7
Supporting Documents
Not archived · Council Link
Site Investigation and Risk Report 8
Supporting Documents
Not archived · Council Link
Site Levels
Plan / Drawing
Not archived · Council Link
Southern Water
Consultee Comment
Not archived · Council Link
Southern Water Plan
Consultee Comment
Not archived · Council Link
Statutory Biodiversity Metric Calculation Tool
Biodiversity Survey/Report
Not archived · Council Link
Tovil Parish Council
Parish Comments
Not archived · Council Link
Tovil Parish Council
Parish Comments
Not archived · Council Link
Transport Statement
Transport Assessment
Not archived · Council Link
West and South West Elevation for Flats
Plan / Drawing
Not archived · Council Link

Take Action

Make your voice heard. Authorities need to hear from people who support new homes.

✉️ Write Email in Support View on Council Portal