← Back to Maidstone Borough Council

Status

Awaiting decision New housing
Received
n/a
New dwellings
3

Summary

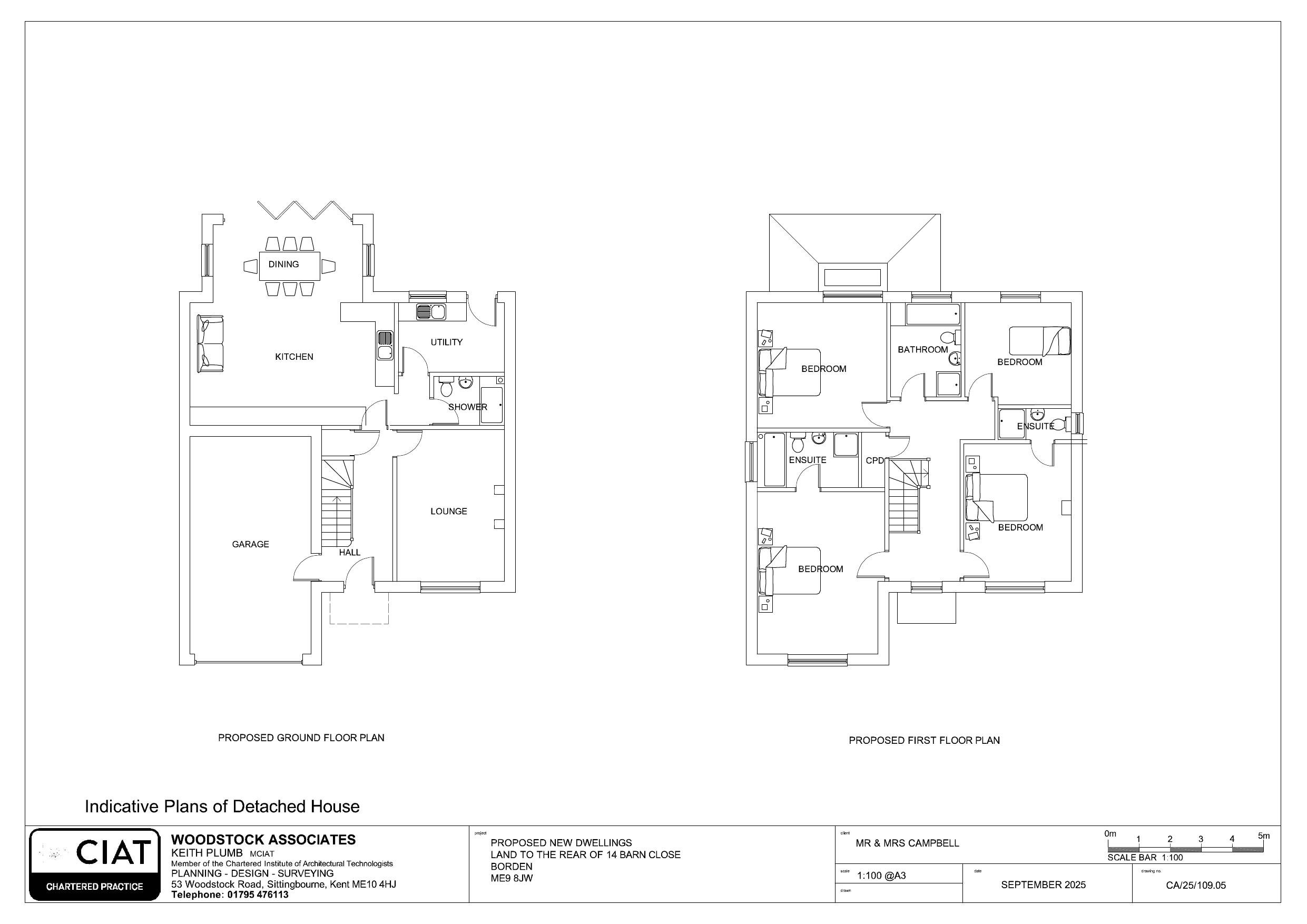
Outline application for three dwellings with garages, parking, access and landscaping; access and layout reserved.

Full Proposal

Outline planning application (with all matters reserved except access and layout) for the erection of three dwellings, with garaging, associated parking, development and landscaping.

Documents

. Borden Parish Council
Consultee Comment
Not archived · Council Link
ApplicationFormRedacted
Application Details
Not archived · Council Link
Bat Survey
Biodiversity Survey/Report
Not archived · Council Link
BNG Ecology Condition Assessment excel
Biodiversity Report
Not archived · Council Link
BNG metric excel spreadsheet
Biodiversity Report
Not archived · Council Link
Borden Parish Council
Parish Comments
Not archived · Council Link
Ecology Condition Assessments
Biodiversity Survey/Report
Not archived · Council Link
Ecology Statutory Metric
Biodiversity Survey/Report
Not archived · Council Link
Existing Block Plan
Plan / Drawing
Not archived · Council Link
KCC Ecological Officer
Consultee Comment
Not archived · Council Link
KCC Highways
Consultee Comment
Not archived · Council Link
Kent Biodiversity Gain Statement
Supporting Documents
Not archived · Council Link
Location Plan
Plan / Drawing
Not archived · Council Link
Neighbour Comment
Neighbour Comments
Not archived · Council Link
Online Comment
Neighbour Comments
Not archived · Council Link
Online Comment
Neighbour Comments
Not archived · Council Link
Online Comment
Neighbour Comments
Not archived · Council Link
Online Comment
Neighbour Comments
Not archived · Council Link
Online Comment
Neighbour Comments
Not archived · Council Link
Online Comment
Neighbour Comments
Not archived · Council Link
Online Comment
Neighbour Comments
Not archived · Council Link
Online Comment
Neighbour Comments
Not archived · Council Link
Online Comment
Neighbour Comments
Not archived · Council Link
Online Comment
Neighbour Comments
Not archived · Council Link
Online Comment
Neighbour Comments
Not archived · Council Link
Online Comment
Neighbour Comments
Not archived · Council Link
Online Comment
Neighbour Comments
Not archived · Council Link
Planning Statement
Planning Statement
Not archived · Council Link
Preliminary Ecological Appraisal
Biodiversity Survey/Report
Not archived · Council Link
Proposed Block Plan
Plan / Drawing
Not archived · Council Link
Proposed Elevations
Plan / Drawing
Not archived · Council Link
Proposed Elevations
Plan / Drawing
Not archived · Council Link
Plan / Drawing
Archived · Council Link
Plan / Drawing
Archived · Council Link
Reptile Report
Biodiversity Survey/Report
Not archived · Council Link
Topographical Survey Plan
Plan / Drawing
Not archived · Council Link
Transport Statement
Transport Assessment
Not archived · Council Link
Transport Statement Appendices
Transport Assessment
Not archived · Council Link
Tree Report
Tree Survey
Not archived · Council Link
Tree Report Plan
Tree Survey
Not archived · Council Link

Take Action

Make your voice heard. Authorities need to hear from people who support new homes.

✉️ Write Email in Support View on Council Portal