← Back to Maidstone Borough Council

Status

Awaiting decision Change of use
Received
n/a
New dwellings
1

Summary

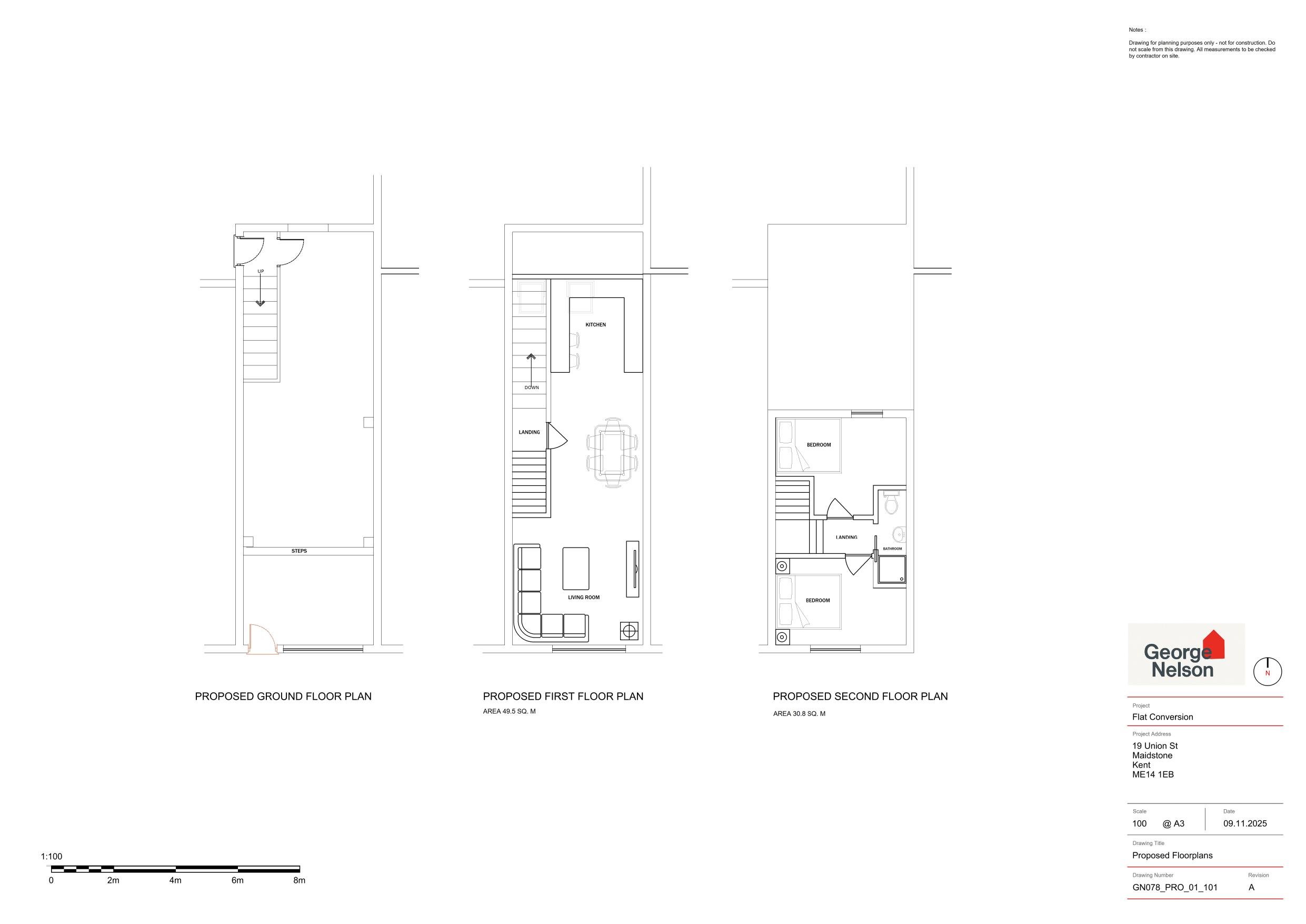
Change of use of first and second floors to a self-contained two-bedroom dwelling.

Full Proposal

Change of use of first and second floors to a self-contained 2-bedroom residential dwelling.

Documents

Advert in Paper - Kent Messenger
Planning Notice
Not archived · Council Link
Advert in Paper - Medway Messenger
Planning Notice
Not archived · Council Link
ApplicationFormRedacted
Application Details
Not archived · Council Link
CIL Form 1
Section 106 / CIL Document
Not archived · Council Link
Conservation Officer
Consultee Comment
Not archived · Council Link
Existing East and North Elevations
Plan / Drawing
Not archived · Council Link
Existing Floor Plans
Plan / Drawing
Not archived · Council Link
Plan / Drawing
Archived · Council Link
Plan / Drawing
Archived · Council Link
Heritage Statement
Heritage Statement
Not archived · Council Link
Notice Photo
Planning Notice
Not archived · Council Link
Proposed East and North Elevations
Plan / Drawing
Not archived · Council Link
Plan / Drawing
Archived · Council Link
Plan / Drawing
Archived · Council Link
Site Photos 15/04/25
Supporting Documents
Not archived · Council Link

Take Action

Make your voice heard. Authorities need to hear from people who support new homes.

✉️ Write Email in Support View on Council Portal