← Back to Maidstone Borough Council
Status
Awaiting decision
Change of use
Full Proposal
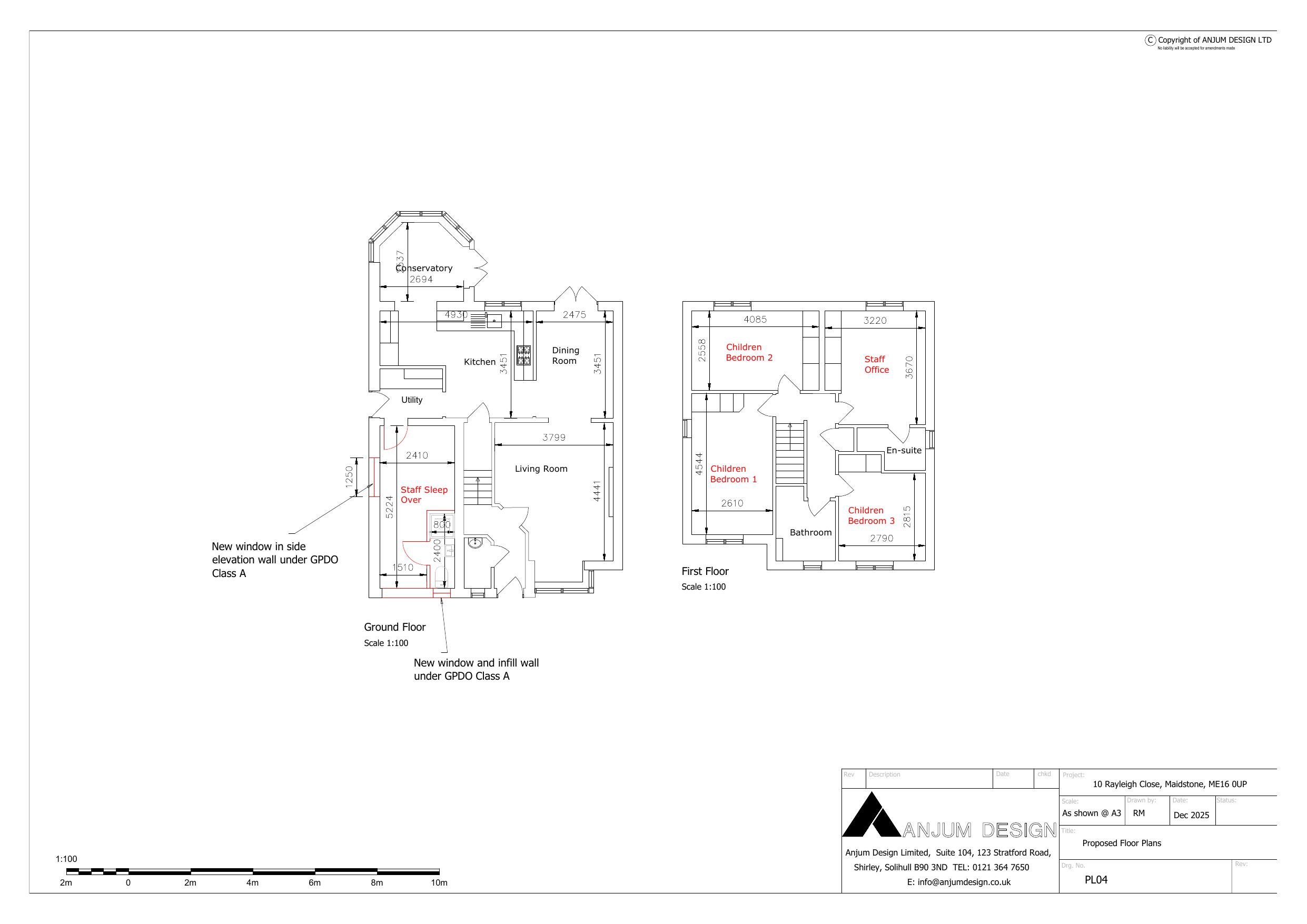
Change of use from residential dwelling (C3) into children home (C2) and alterations to fenestration.
Documents
ApplicationFormRedacted
Application Details
Biodiversity Site Photographs
Photographs
Biodiversity Site Photographs
Photographs
Biodiversity Site Photographs
Photographs
CIL Form 1
Section 106 / CIL Document
Existing and Proposed Elevations
Plan / Drawing
Existing Floor Plans
Plan / Drawing
Online Comment
Neighbour Comments
Online Comment
Neighbour Comments
Online Comment
Neighbour Comments
Online Comment
Neighbour Comments
Online Comment
Neighbour Comments
Online Comment
Neighbour Comments
Online Comment
Neighbour Comments
Online Comment
Neighbour Comments
Online Comment
Neighbour Comments
Online Comment
Neighbour Comments
Online Comment
Neighbour Comments
Planning Statement
Planning Statement
Planning Statement
Superseded Documents
Planning Statement
Amendment
Take Action
Make your voice heard. Authorities need to hear from people who support new homes.