← Back to Mansfield District Council

Status

Awaiting decision New housing
Received
08 Aug 2024
New dwellings
1

Full Proposal

ERECTION OF DETACHED HOUSE

Documents

Amended block plan
AMENDED DRAWING
Not archived · Council Link
Amended block plan
AMENDED DRAWING
Not archived · Council Link
Amended block plan
AMENDED DRAWING
Not archived · Council Link
Amended block plan
AMENDED DRAWING
Not archived · Council Link
Amended existing block plan
AMENDED DRAWING
Not archived · Council Link
Amended proposed elevations
AMENDED DRAWING
Not archived · Council Link
AMENDED DRAWING
Archived · Council Link
AMENDED DRAWING
Archived · Council Link
AMENDED DRAWING
Archived · Council Link
Application form - without personal data
APPLICATION FORM
Not archived · Council Link
Block plan
AMENDED DRAWING
Not archived · Council Link
Block plan 500 - rev b
AMENDED DRAWING
Not archived · Council Link
Block plan of the site
DRAWING
Not archived · Council Link
Bng section
APPLICATION FORM
Not archived · Council Link
Cert b of application form
APPLICATION FORM
Not archived · Council Link
Design and access statement
DRAWING
Not archived · Council Link
Env health comments
CONSULTEE COMMENT
Not archived · Council Link
Mdc ecologist comments
CONSULTEE COMMENT
Not archived · Council Link
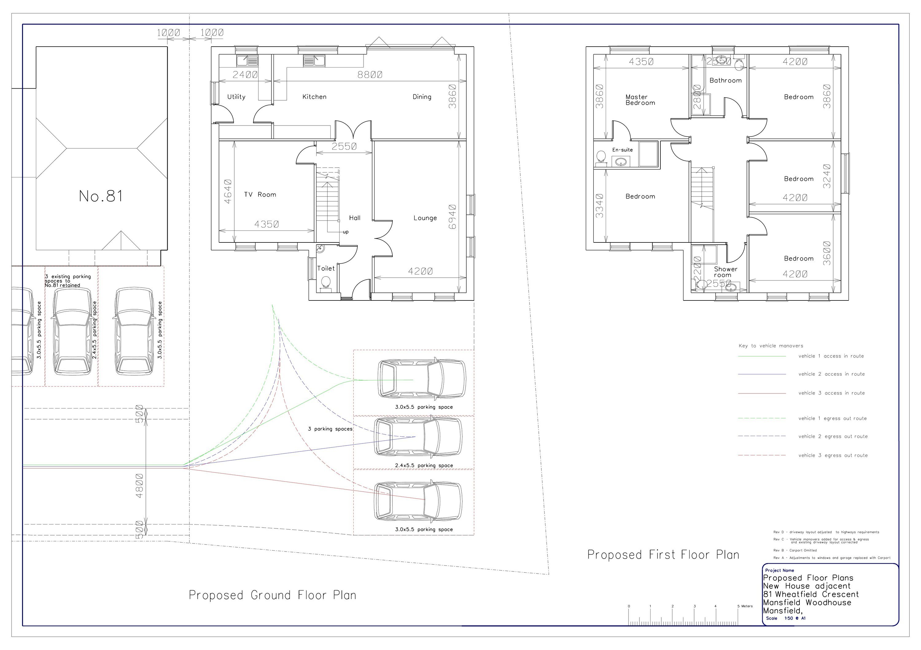
Ncc highways comments
CONSULTEE COMMENT
Not archived · Council Link
Ncc highways comments
CONSULTEE COMMENT
Not archived · Council Link
Ncc highways comments
CONSULTEE COMMENT
Not archived · Council Link
Ncc highways comments
CONSULTEE COMMENT
Not archived · Council Link
Planning statement
SUPPORTING INFORMATION
Not archived · Council Link
Proposed carport elevations
AMENDED DRAWING
Not archived · Council Link
Proposed detached garage elevations
DRAWING
Not archived · Council Link
Proposed elevations
DRAWING
Not archived · Council Link
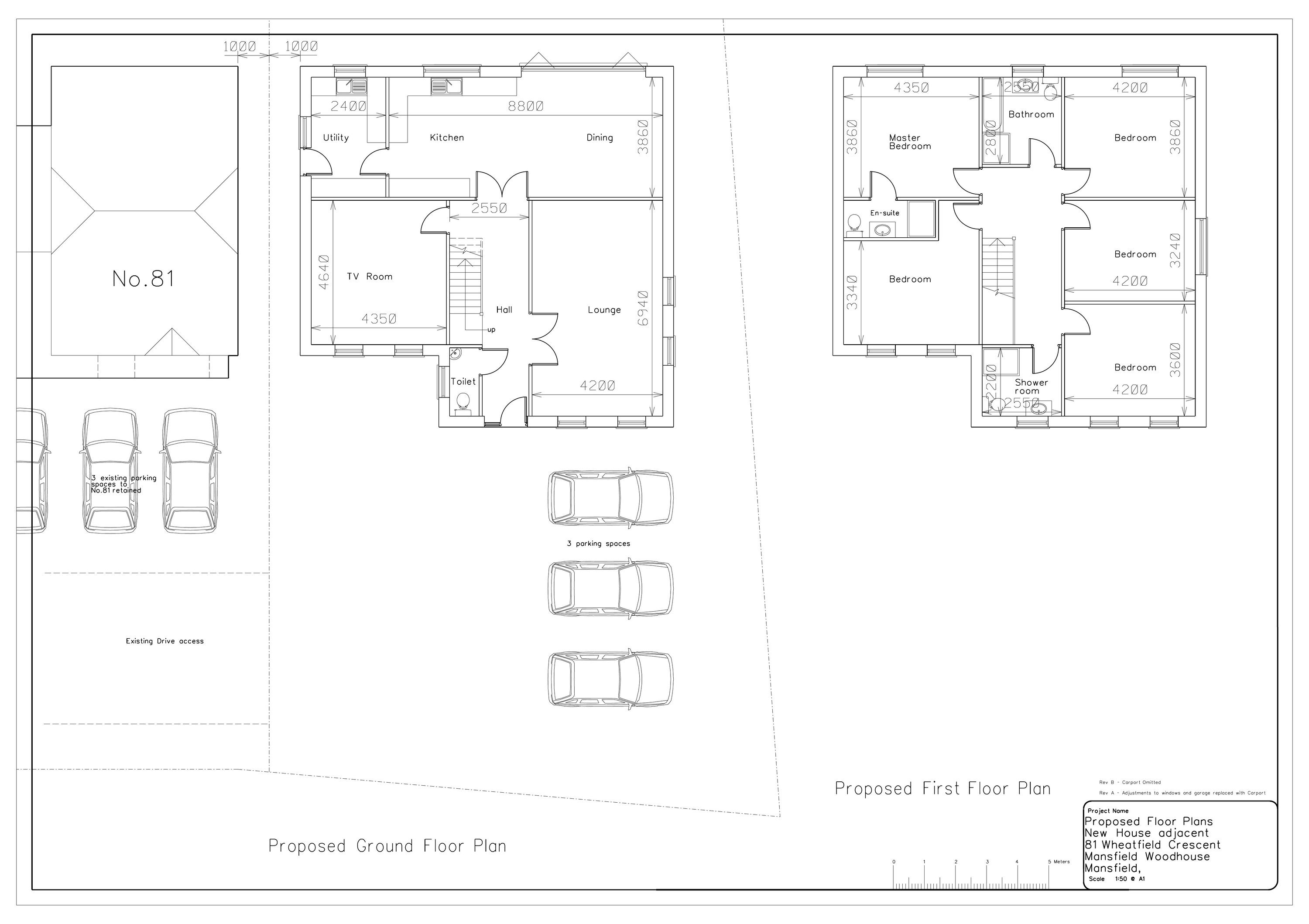
Proposed floor plan
DRAWING
Not archived · Council Link
AMENDED DRAWING
Archived · Council Link
Proposed house elevations rev a
AMENDED DRAWING
Not archived · Council Link
Severn trent
CONSULTEE COMMENT
Not archived · Council Link
AMENDED DRAWING
Archived · Council Link
The location plan
DRAWING
Not archived · Council Link

Take Action

Make your voice heard. Authorities need to hear from people who support new homes.

✉️ Write Email in Support View on Council Portal