← Back to Mansfield District Council

Status

Registered
Received
18 days ago
New dwellings
n/a

Full Proposal

CHANGE OF USE FROM DWELLING HOUSE (USE CLASS C3) TO CHILDRENS HOME (USE CLASS C2) FOR UP TO 3 NO. CHILDREN BETWEEN 4 AND 18 YEARS OLD.

Documents

Application form - without personal data
APPLICATION FORM
Not archived · Council Link
Design and access statement
SUPPORTING INFORMATION
Not archived · Council Link
Existing and proposed block plan - parking
DRAWING
Not archived · Council Link
Existing floor plans
DRAWING
Not archived · Council Link
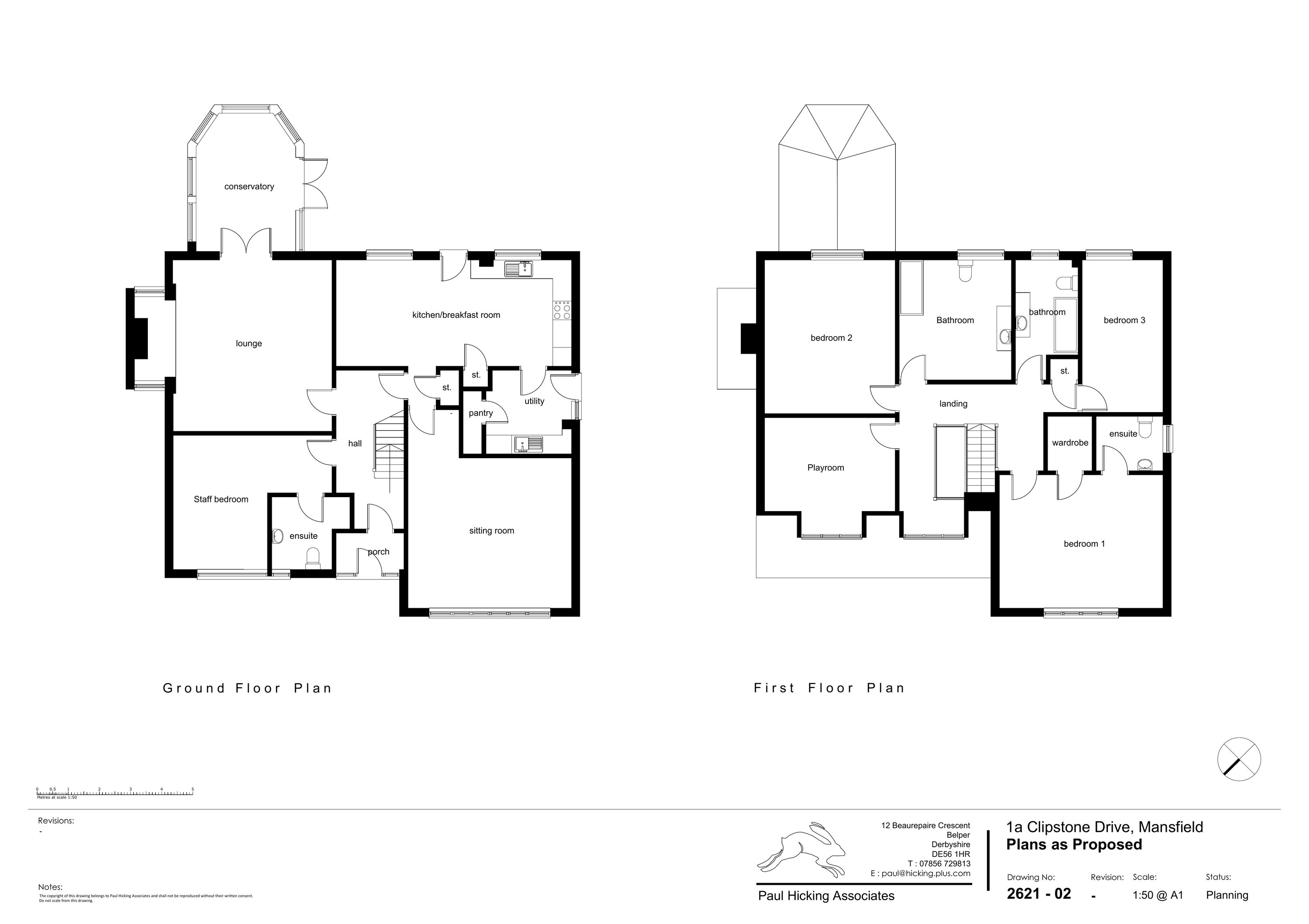
Floor plans
DRAWING
Not archived · Council Link
Planning statement
SUPPORTING INFORMATION
Not archived · Council Link
DRAWING
Archived · Council Link
DRAWING
Archived · Council Link

Take Action

Make your voice heard. Authorities need to hear from people who support new homes.

✉️ Write Email in Support View on Council Portal