← Back to Medway Council

Status

Decided New housing
Received
05 Mar 2025
New dwellings
7

Summary

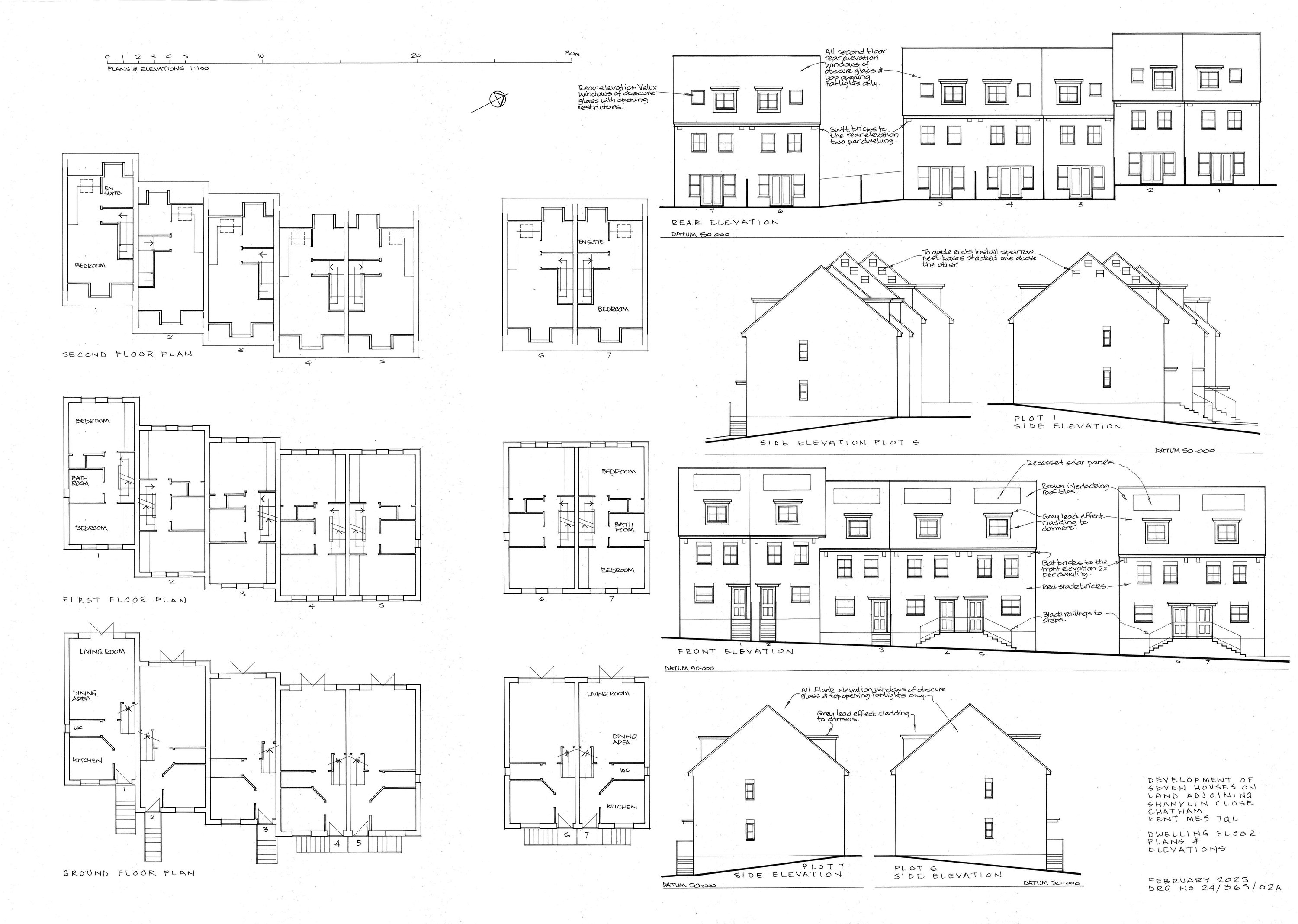
Construction of a terrace of five and a pair of semi-detached houses with parking and landscaping.

Full Proposal

Construction of a terrace of five and a pair of semi-detached houses with associated parking, cycle/refuse store and hard and soft landscaping

Documents

1.8M CLOSEBOARDED FENCE
Drawings
Not archived · Council Link
BAT BRICK
Drawings
Not archived · Council Link
BIODIVERSITY GAIN STATEMENT
Supporting Documents
Not archived · Council Link
BUG HOTEL
Drawings
Not archived · Council Link
Case Officer Report
Case Officer Report
Not archived · Council Link
CLIMATE CHANGE AND ENERGY EFFECIENCY STATEMENT
Supporting Documents
Not archived · Council Link
CYCLE RACK
Drawings
Not archived · Council Link
DESIGN AND ACCESS STATEMENT
Supporting Documents
Not archived · Council Link
Drawings
Archived · Council Link
FULL REFUSAL
Decision Notice
Not archived · Council Link
HABITAT LOG PILE
Drawings
Not archived · Council Link
HARD AND SOFT LANDSCAPING SCHEDULE
Supporting Documents
Not archived · Council Link
LANDSCAPE PLAN
Drawings
Not archived · Council Link
LOCATION PLAN
Drawings
Not archived · Council Link
PLANNING STATEMENT
Supporting Documents
Not archived · Council Link
POD POINT SOLO DOMESTIC CAR CHARGER
Drawings
Not archived · Council Link
POST ELECTRIC CAR CHARGING POINT
Drawings
Not archived · Council Link
Drawings
Archived · Council Link
RECESSED SOLAR PANEL IMAGE
Drawings
Not archived · Council Link
REDACTED
Application Form
Not archived · Council Link
REFUSE STORE
Drawings
Not archived · Council Link
SPARROW TERRACE BRICK
Drawings
Not archived · Council Link
SWIFT BRICK
Drawings
Not archived · Council Link

Take Action

Make your voice heard. Authorities need to hear from people who support new homes.

✉️ Write Email in Support View on Council Portal