MC/25/1813
Medway Council · IDOX
Status
Awaiting decision
New housing
Received
11 Sep 2025
New dwellings
6
Summary
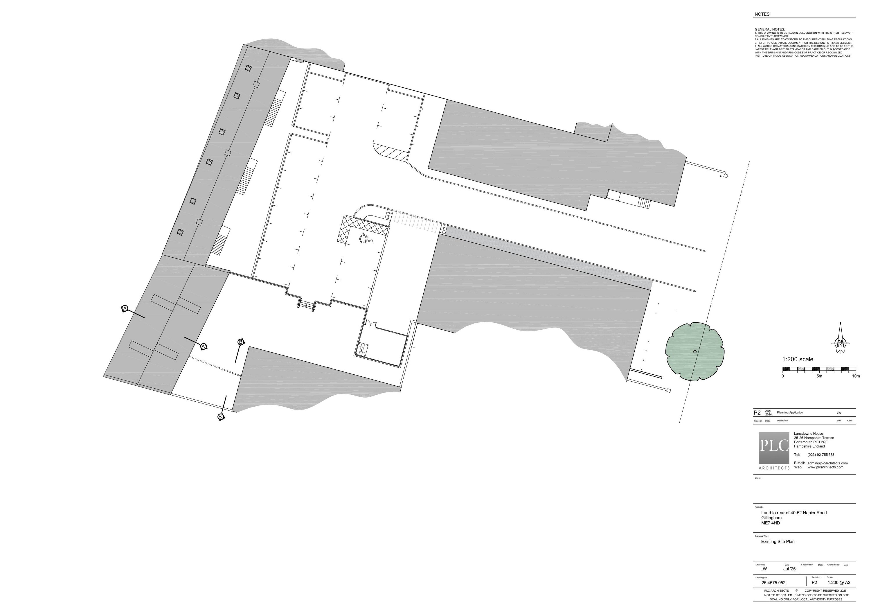
Raise roof and convert commercial first floor to provide six additional residential flats, retaining three ground-floor flats.
Full Proposal
Raising of roof height to part of the existing building to create a first floor for the construction of 3x dwellings and the conversion of the existing commercial building (Class E) to provide an additional 3x flats on the first floor (Class C3),with retention of the 3x existing ground floor flats together with associated external alterations.
Documents
NAPIER ROAD - DAYLIGHT AND SUNLIGHT ASSESSMENT - AUGUST 2025 WITH APPENDICES
Supporting Documents
Not archived
· Council Link
Take Action
Make your voice heard. Authorities need to hear from people who support new homes.