← Back to Medway Council

Status

Registered New housing
Received
24 Nov 2025
New dwellings
1

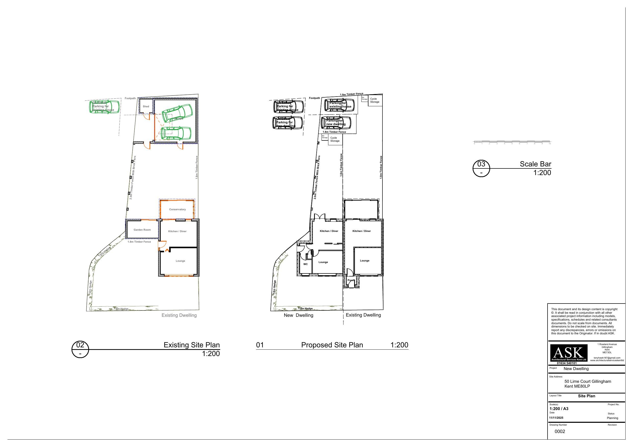
Full Proposal

Construction of an end of terrace dwelling with associated parking, bin and cycle storage

Documents

DESIGN AND ACCESS STATEMENT
Supporting Documents
Not archived · Council Link
DESIGN AND ACCESS STATEMENT
Superseded
Not archived · Council Link
LOCATION PLAN
Drawings
Not archived · Council Link
OBJECTION - ANONYMOUS
Letter of Representation
Not archived · Council Link
OBJECTION - D TAYLOR
Letter of Representation
Not archived · Council Link
OBJECTION - DICKENS COUNTRY PROTECTIONS SOCIETY
Letter of Representation
Not archived · Council Link
OBJECTION - E COLYER
Letter of Representation
Not archived · Council Link
OBJECTION - G WOODBURY
Letter of Representation
Not archived · Council Link
OBJECTION - H TREE
Letter of Representation
Not archived · Council Link
OBJECTION - J CORDINGLEY
Letter of Representation
Not archived · Council Link
OBJECTION - J NOLAN
Letter of Representation
Not archived · Council Link
OBJECTION - J SCUTT
Letter of Representation
Not archived · Council Link
OBJECTION - J SCUTT
Letter of Representation
Not archived · Council Link
OBJECTION - MR & MRS LOW
Letter of Representation
Not archived · Council Link
OBJECTION - R BEAUMONT
Letter of Representation
Not archived · Council Link
OBJECTION - ROSE
Letter of Representation
Not archived · Council Link
OBJECTION - S COLYER
Letter of Representation
Not archived · Council Link
OBJECTION - S COLYER
Letter of Representation
Not archived · Council Link
OBJECTION - S COSTALL
Letter of Representation
Not archived · Council Link
OBJECTION - S DUNCAN
Letter of Representation
Not archived · Council Link
OBJECTION-L REID
Letter of Representation
Not archived · Council Link
Drawings
Archived · Council Link
REDACTED
Application Form
Not archived · Council Link
Drawings
Archived · Council Link
Drawings
Archived · Council Link
STATUTORY - KCC BIODIVERSITY
Letter of Representation
Not archived · Council Link

Take Action

Make your voice heard. Authorities need to hear from people who support new homes.

✉️ Write Email in Support View on Council Portal