MC/25/2342
Medway Council · IDOX
Status
Registered
New housing
Received
28 Nov 2025
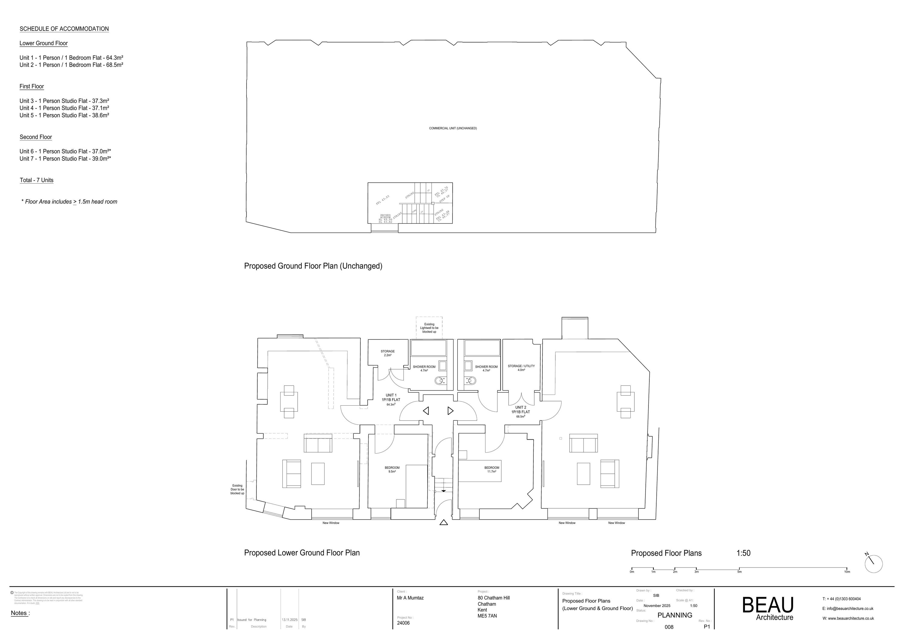
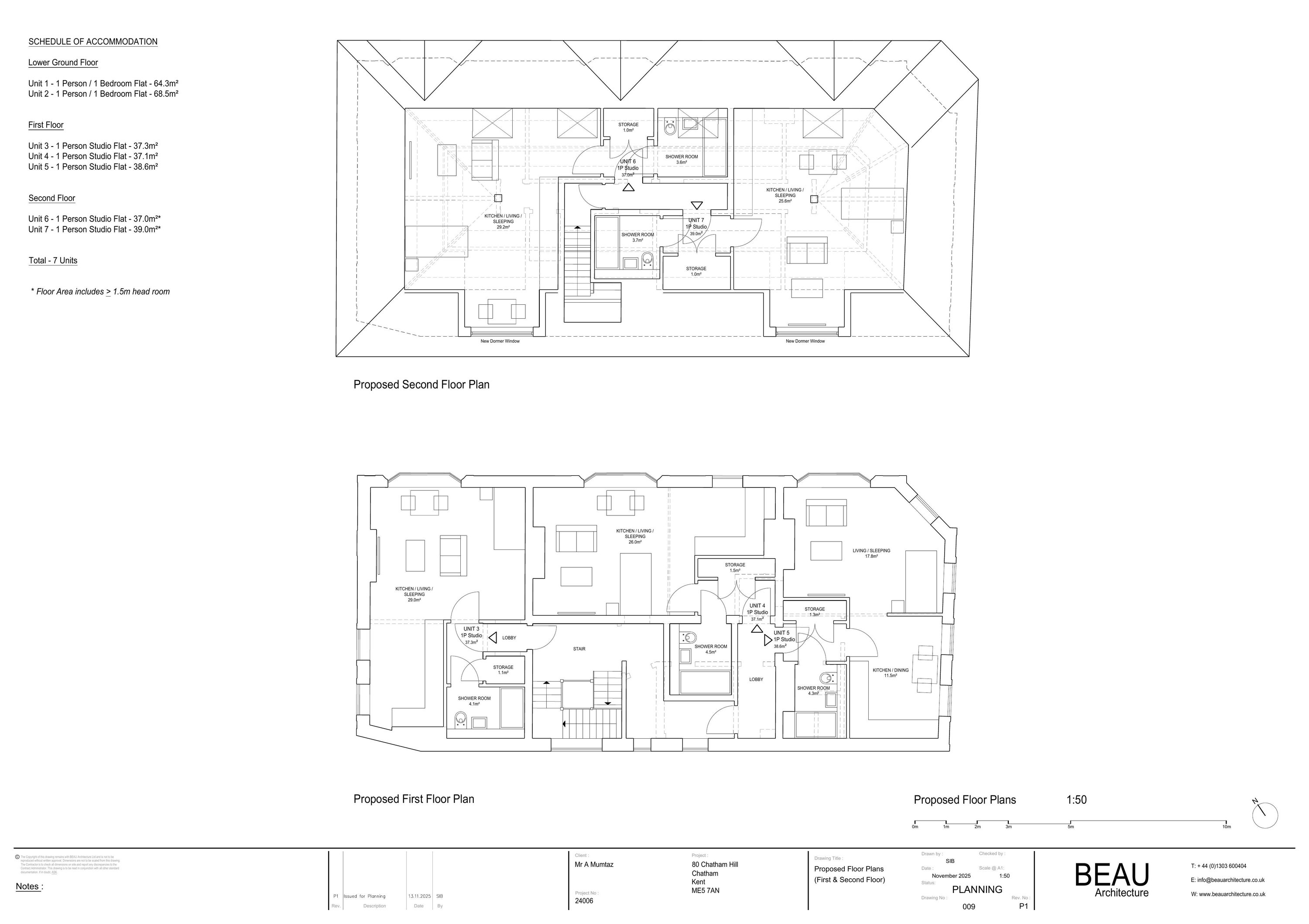
New dwellings
7
Summary
Convert existing floors to flats and add dormer windows for living space.
Full Proposal
Conversion of existing lower ground, first and second floors to seven self-contained flats (Class C3) together with construction of two dormer windows to rear to provide additional living accommodation within roof space and associated external alterations
Documents
Take Action
Make your voice heard. Authorities need to hear from people who support new homes.